| Συνδεθείτε στην Υπηρεσία Νομοσκόπιο | | | | | Νέοι χρήστες | | Εάν είστε νέος χρήστης, θα πρέπει να δημιουργήσετε ένα ΔΩΡΕΑΝ λογαριασμό προκειμένου να φύγει το παράθυρο αυτό και να αποκτήσετε πλήρη πρόσβαση στην υπηρεσία Νομοσκόπιο. | | Δημιουργία νέου λογαριασμού | | |
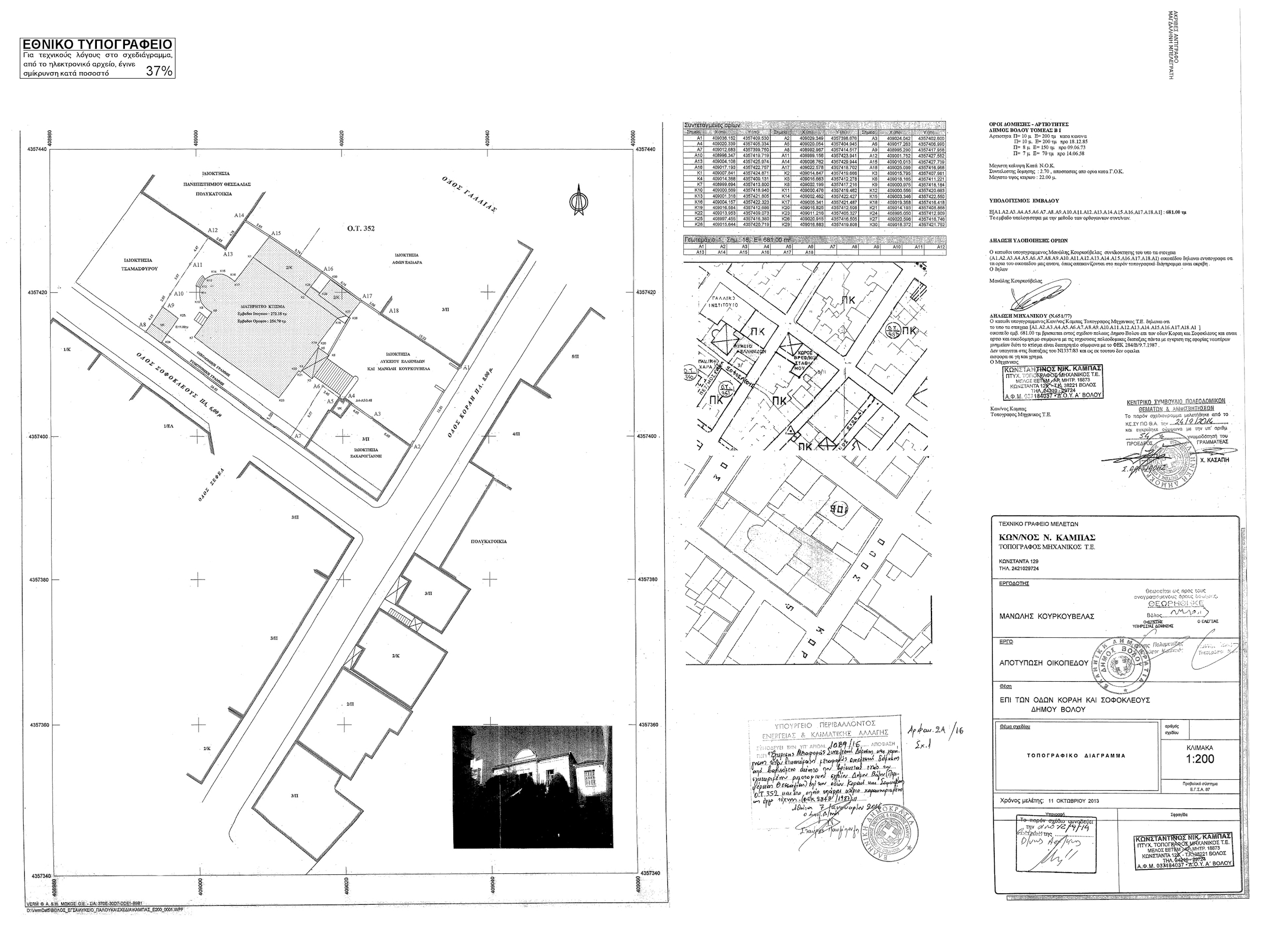
1. Εγκρίνεται η μεταφορά συντελεστή δόμησης από βαρυνόμενο ακίνητο που βρίσκεται εντός του εγκεκριμένου ρυμοτομικού σχεδίου του Δήμου Βόλου (Περιφέρεια Θεσσαλίας) επί των οδών Κοραή και Σοφοκλέους, οικοδομικό τετράγωνο 352 και στο οποίο υπάρχει κτίριο χαρακτηρισμένο ως έργο τέχνης, με την με αριθμό ΥΠΠΟ/ΔΙΛΑΠ/Γ/863/14381/1987 Απόφαση Υπουργού Πολιτισμού (ΦΕΚ 284/B/1987), όπως το βαρυνόμενο αυτό ακίνητο φαίνεται περικλεισμένο με τα στοιχεία (Α1,Α2,Α3,...,Α18,Α1) στο σχετικό πρωτότυπο διάγραμμα σε κλίμακα 1:200 που θεωρήθηκε από τον Προϊστάμενο της Διεύθυνσης Τοπογραφικών Εφαρμογών και Γεωχωρικών Πληροφοριών με την υπ' αριθμόν 1089/2016 πράξη του και του οποίου αντίτυπο σε φωτοσμίκρυνση δημοσιεύεται με την παρούσα απόφαση.
2. Τα ειδικότερα στοιχεία του βαρυνόμενου ακινήτου και της μεταφοράς συντελεστή δόμησης είναι:
α. Θέση οικοπέδου: Περιφερειακή Ενότητα Μαγνησίας, Δήμος Βόλου, επί των οδών Κοραή και Σοφοκλέους, οικοδομικό τετράγωνο 352
β. Εμβαδόν οικοπέδου: 681 m2.
γ. Οι όροι δόμησης της περιοχής που βρίσκεται το βαρυνόμενο ακίνητο σύμφωνα με το από 24-10-2013 θεωρημένο τοπογραφικό διάγραμμα από την Υπηρεσία Δόμησης Δήμου Βόλου είναι:
Ι. Ισχύων συντελεστής δόμησης: 2.7
II. Ποσοστό επιτρεπόμενης κάλυψης: 60%
δ. Συνολικά καλυπτόμενη επιφάνεια (υπάρχουσα κάλυψη): 283.22 m2.
ε. Σύνολο δομημένων επιφανειών (υπάρχουσα δόμηση): 543.52 m2.
στ. Μη προσμετρούμενα στο συντελεστή δόμησης υπόγειο προοριζόμενο αποκλειστικά για βοηθητική χρήση: 198.00 m2.
ζ. Την έγκριση χορήγησης τίτλου μεταφοράς συντελεστή δόμησης αιτούνται οι έχοντες το δικαίωμα επί του 50% στο ανωτέρω διατηρητέο ακίνητο, επομένως οι προς μεταφορά επιφάνειες είναι: 1295.18 m2 Χ 50% = 647.59 m2 ήτοι 125.38 m2 Χ 50% = 62,69 m2 από ισόγειο και 1169.80 x 50% = 584.90 m2 από ορόφους. Η επιφάνεια αυτή αντιστοιχεί σε συντελεστή δόμησης 0.951 που αφαιρείται οριστικώς από το βαρυνόμενο ακίνητο.
