| Συνδεθείτε στην Υπηρεσία Νομοσκόπιο | | | | | Νέοι χρήστες | | Εάν είστε νέος χρήστης, θα πρέπει να δημιουργήσετε ένα ΔΩΡΕΑΝ λογαριασμό προκειμένου να φύγει το παράθυρο αυτό και να αποκτήσετε πλήρη πρόσβαση στην υπηρεσία Νομοσκόπιο. | | Δημιουργία νέου λογαριασμού | | |
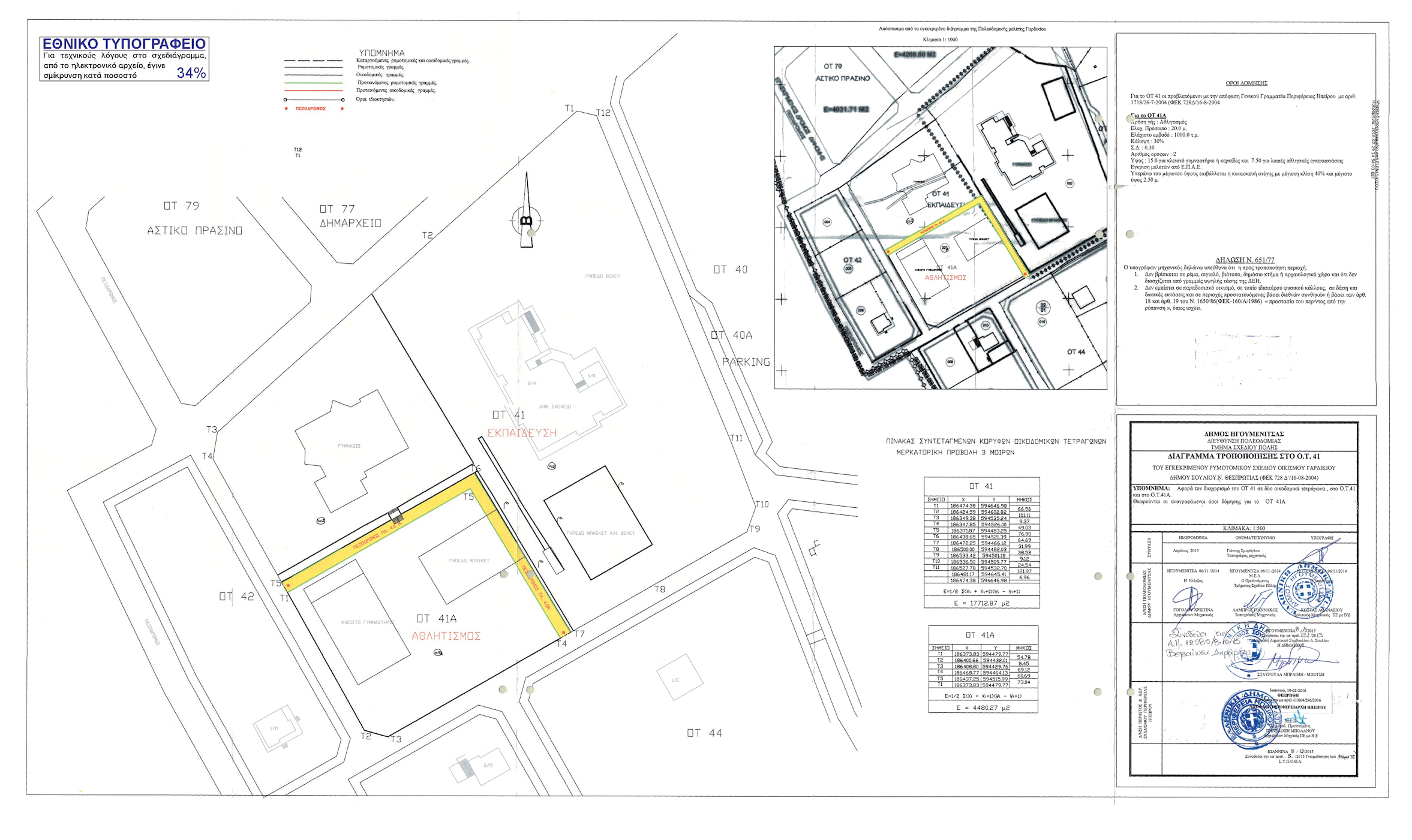
Απόφαση 11064/296/2016: Τροποποίηση του εγκεκριμένου ρυμοτομικού σχεδίου οικισμού Γαρδικίου Δήμου Σουλίου νομού Θεσπρωτίας, με τον διαχωρισμό του οικοδομικού τετραγώνου 41 σε δύο, στο οικοδομικό τετράγωνο 41 με χρήση εκπαίδευση και στο οικοδομικό τετράγωνο 41Α με χρήση αθλητισμός, (ΦΕΚ 44/ΑΑΠ/2016), 18-03-2016.
Ο Περιφερειάρχης Ηπείρου
Έχοντας υπόψη:
1. Τις διατάξεις των άρθρων 152 (παράγραφοι 1, 2, 6 και 10), 154, 160, 161 (παράγραφος 1), 248, 249 και 250 του Κώδικα Βασικής Πολεοδομικής Νομοθεσίας που κυρώθηκε με το άρθρο πρώτο του από 14-07-1999 προεδρικού διατάγματος (ΦΕΚ 580/Δ/1999), όπως τα άρθρα 248, 249 και 250 τροποποιήθηκαν με τα άρθρα 5, 6 και 7 αντίστοιχα του νόμου 2831/2000 Τροποποίηση των διατάξεων του 1577/1985 Γενικός Οικοδομικός Κανονισμός και άλλες πολεοδομικές διατάξεις (ΦΕΚ 140/Α/2000).
2. Τις διατάξεις του άρθρου 31 του νόμου 4067/2012 (ΦΕΚ 79/Α/2012) Νέος Οικοδομικός Κανονισμός.
3. Τις διατάξεις των άρθρων 30 και 31 του νόμου 4030/2011 Νέος τρόπος έκδοσης αδειών δόμησης, ελέγχου κατασκευών και λοιπές διατάξεις (ΦΕΚ 249/Α/2011).
4. Τις διατάξεις του νόμου 3852/2010 για τη Νέα Αρχιτεκτονική της Αυτοδιοίκησης και της Αποκεντρωμένης Διοίκησης - Πρόγραμμα Καλλικράτης (ΦΕΚ 87/Α/2010) και συγκεκριμένα το άρθρο 186, παράγραφος ΣΤ, στοιχείο 39 αυτού.
5. Το προεδρικό διάταγμα 140/2010 (ΦΕΚ 233/Α/2010) Οργανισμός της Περιφέρειας Ηπείρου.
6. Την υπ' αριθμόν 1718/2004 απόφαση Γενικού Γραμματέα Περιφέρειας Ηπείρου (ΦΕΚ 728/Δ/2004) περί έγκρισης της Πολεοδομικής Μελέτης οικισμού Γαρδικίου Δήμου Σουλίου (πρώην Δήμου Αχέροντα) νομού Θεσπρωτίας, όπως μεταγενέστερα τροποποιήθηκε και ισχύει.
7. Τα κτηματογραφικά διαγράμματα της υπ' αριθμόν 2/2008 πράξη εφαρμογής όπως αυτά διορθώθηκαν και συμπληρώθηκαν μετά την επεξεργασία των δηλώσεων ιδιοκτησίας.
8. Την υπ' αριθμόν 1404/2009 απόφαση Νομάρχη Θεσπρωτίας με την οποία κυρώθηκε η υπ' αριθμόν 2/2008 πράξη εφαρμογής Γαρδικίου.
9. Την με αριθμό 131/2013 απόφαση Δημοτικού Συμβουλίου Δήμου Σουλίου περί της έγκρισης της με αριθμό 15/2013 απόφασης - εισήγησης της Επιτροπής Ποιότητας Ζωής, με την οποία γνωμοδότησε ομόφωνα θετικά υπέρ της τροποποίησης του εγκεκριμένου ρυμοτομικού σχεδίου οικισμού Γαρδικίου με τον διαχωρισμό του οικοδομικού τετραγώνου-41 σε δύο, στο οικοδομικό τετράγωνο-41 με χρήση εκπαίδευση και στο οικοδομικό τετράγωνο-41Α με χρήση αθλητισμός.
10. Την υπ' αριθμόν 107530/3452/2015 εισήγηση της Διεύθυνσης Περιβάλλοντος και Χωρικού Σχεδιασμού Περιφέρειας Ηπείρου προς το Συμβούλιο Πολεοδομικών Θεμάτων και Αμφισβητήσεων Περιφερειακής Ενότητας Θεσπρωτίας.
11. Το πρακτικό της 5ης Συνεδρίασης/2015 του Συμβουλίου Πολεοδομικών Θεμάτων και Αμφισβητήσεων Περιφερειακής Ενότητας Θεσπρωτίας (θέμα 3°/ΗΔ) σύμφωνα με το οποίο γνωμοδοτεί ομόφωνα υπέρ της τροποποίησης.
12. Το γεγονός ότι η ως άνω τροποποίηση έχει σημειακό - εντοπισμένο χαρακτήρα με τον διαχωρισμό του οικοδομικού τετραγώνου-41 σε δύο, στο οικοδομικό τετράγωνο-41 με χρήση εκπαίδευση και στο οικοδομικό τετράγωνο-41Α με χρήση αθλητισμός χωρίς να μεταβάλλεται το ισοζύγιο των κοινοχρήστων χώρων της περιοχής που δεν εμπίπτει σε ζώνη πεντακοσίων μέτρων από την ακτή, σε παραδοσιακό οικισμό, σε τοπίο ιδιαιτέρου φυσικού κάλλους, σε αρχαιολογικό χώρο, σε δάση και δασικές εκτάσεις και σε περιοχές προστατευόμενες βάσει διεθνών συνθηκών ή βάσει των άρθρων 18 και 19 του νόμου 1650/1986 (ΦΕΚ 160/Α/1986), όπως ισχύει.
13. Η ως άνω πρόταση τροποποίησης δεν αντίκειται στις διατάξεις των εγκυκλίων 55/1988, παράγραφος 4 και 18/2003, παράγραφος VII, του Υπουργείου Περιβάλλοντος, Ενέργειας και Κλιματικής Αλλαγής, αφού αποβλέπει σε θεραπεία των προβλημάτων που έχουν προκύψει από τις πράξεις της διοίκησης.
14. Το γεγονός ότι με την έγκριση της ως άνω αναφερόμενης πολεοδομικής μελέτης, καθορίστηκαν οι χρήσεις γης στην περιοχή και προσδιορίσθηκε ο Τομέας V (κοινωφελών δραστηριοτήτων), εντός του οποίου βρίσκεται και το οικοδομικό τετράγωνο-41 εκπαίδευση, και με την προτεινόμενη τροποποίηση η οποία αφορά αποκλειστικά την τροποποίηση του εγκεκριμένου ρυμοτομικού σχεδίου οικισμού Γαρδικίου Δήμου Σουλίου νομού Θεσπρωτίας, με τον διαχωρισμό του οικοδομικού τετραγώνου-41 σε δύο, στο οικοδομικό τετράγωνο-41 με χρήση εκπαίδευση και στο οικοδομικό τετράγωνο-41Α με χρήση αθλητισμός, αποφασίζουμε:
Την τροποποίηση του εγκεκριμένου ρυμοτομικού σχεδίου οικισμού Γαρδικίου Δήμου Σουλίου νομού Θεσπρωτίας, με τον διαχωρισμό του οικοδομικού τετραγώνου-41 σε δύο, στο οικοδομικό τετράγωνο-41 με χρήση εκπαίδευση και στο οικοδομικό τετράγωνο-41Α με χρήση αθλητισμός, όπως φαίνεται κατάλληλα χρωματισμένο, στο θεωρημένο αρμοδίως από το Δήμο Ηγουμενίτσας συνημμένο σχέδιο κλίμακας 1:500.
Με τις κανονιστικές διατάξεις της Απόφασης αυτής δεν προκαλείται δαπάνη σε βάρος του Δημοσίου ή του οικείου οργανισμού τοπικής αυτοδιοίκησης.

Η απόφαση αυτή να δημοσιευθεί στην Εφημερίδα της Κυβερνήσεως.
Ιωάννινα, 10-02-2016
Ο Περιφερειάρχης