| Συνδεθείτε στην Υπηρεσία Νομοσκόπιο | | | | | Νέοι χρήστες | | Εάν είστε νέος χρήστης, θα πρέπει να δημιουργήσετε ένα ΔΩΡΕΑΝ λογαριασμό προκειμένου να φύγει το παράθυρο αυτό και να αποκτήσετε πλήρη πρόσβαση στην υπηρεσία Νομοσκόπιο. | | Δημιουργία νέου λογαριασμού | | |
Απόφαση 11760/2017: Τροποποίηση χωροθέτησης και τροποποίηση απόφασης έγκρισης περιβαλλοντικών όρων Τουριστικού Λιμένα Μυτιλήνης, (ΦΕΚ 160/ΑΑΠ/2017), 19-07-2017.
Οι Υπουργοί Περιβάλλοντος και Ενέργειας - Τουρισμού
Έχοντας υπόψη:
1. Τις διατάξεις:
α. του κεφαλαίου Γ' του νόμου 2160/1993 (ΦΕΚ 118/Α/1993) Δημιουργία και λειτουργία τουριστικών λιμένων και ιδίως των όρθρων 29, 30, 31 και κυρίως την παράγραφο 5 του άρθρου 30, όπως συμπληρώθηκε με την παράγραφο 1 του άρθρου 14 του νόμου 4276/2014 και του συνημμένου παραρτήματος II του άρθρου 41, όσον αφορά στον τουριστικό λιμένα Γουβιών.
β. του νόμου 3028/2002 (ΦΕΚ 153/Α/2002) Για την προστασία των Αρχαιοτήτων και εν γένει της Πολιτιστικής Κληρονομιάς, όπως τροποποιήθηκε και ισχύει,
γ. του νόμου 3270/2004 (ΦΕΚ 187/Α/2004) Αρμοδιότητες του Υπουργείου Τουριστικής Ανάπτυξης και θέματα τουρισμού όπως τροποποιήθηκε και ισχύει
δ. του νόμου 3861/2010 (ΦΕΚ 112/Α/2010), Ενίσχυση της διαφάνειας με την υποχρεωτική ανάρτηση νόμων και πράξεων των κυβερνητικών, διοικητικών και αυτοδιοικητικών οργάνων στο διαδίκτυο, πρόγραμμα διαύγεια,
ε. του νόμου 4014/2011 (ΦΕΚ 209/Α/2011), Περιβαλλοντική αδειοδότηση έργων και δραστηριοτήτων, ρύθμιση αυθαιρέτων σε συνάρτηση με δημιουργία περιβαλλοντικού ισοζυγίου και άλλες διατάξεις αρμοδιότητας Υπουργείου Περιβάλλοντος, όπως τροποποιήθηκε και ισχύει,
στ. του νόμου 4042/2012 (ΦΕΚ 24/Α/2012) Ποινική προστασία του περιβάλλοντος - Εναρμόνιση με την Οδηγία 2008/99/ΕΚ - Πλαίσιο παραγωγής και διαχείρισης αποβλήτων - Εναρμόνιση με την Οδηγία 2008/98/ΕΚ - Ρύθμιση θεμάτων Υπουργείου Περιβάλλοντος, Ενέργειας και Κλιματικής Αλλαγής όπως τροποποιήθηκε και ισχύει,
ζ. του νόμου 4002/2011 (ΦΕΚ 180/Α/2011): Τροποποίηση της συνταξιοδοτικής νομοθεσίας του Δημοσίου - Ρυθμίσεις για την ανάπτυξη και τη δημοσιονομική εξυγίανση - Θέματα αρμοδιότητας Υπουργείων Οικονομικών, Πολιτισμού και Τουρισμού και Εργασίας και Κοινωνικής Ασφάλισης και ιδίως του άρθρου 12,
η. του νόμου 4278/2014 (ΦΕΚ 157/A/2014) φάροι, Στρατολογία και άλλες διατάξεις όπως τροποποιήθηκε και ισχύει και ιδίως τα άρθρα 12 και 13,
2. Το προεδρικό διάταγμα 63/2005 (ΦΕΚ 98/A/2005) Κώδικας για την Κυβέρνηση και τα Κυβερνητικά όργανα όπως τροποποιήθηκε και ισχύει και ιδίως του άρθρου 90.
3. Το προεδρικό διάταγμα 123/2016 (ΦΕΚ 208/Α/2016) Ανασύσταση και μετονομασία του Υπουργείου Διοικητικής Μεταρρύθμισης και Ηλεκτρονικής Διακυβέρνησης, ανασύσταση του Υπουργείου Τουρισμού, σύσταση Υπουργείου Μεταναστευτικής Πολιτικής και Υπουργείου Ψηφιακής Πολιτικής, Τηλεπικοινωνιών και Ενημέρωσης, μετονομασία Υπουργείων Εσωτερικών και Διοικητικής Ανασυγκρότησης, Οικονομίας, Ανάπτυξης και Τουρισμού και Υποδομών, Μεταφορών και Δικτύων
4. Το προεδρικό διάταγμα [ΠΔ] 112/2014 (ΦΕΚ 179/Α/2014) Οργανισμός του Υπουργείου Τουρισμού, όπως συμπληρώθηκε, τροποποιήθηκε και ισχύει.
5. Το προεδρικό διάταγμα 123/2016 (ΦΕΚ 210/Α/2016) Διορισμός Υπουργών, Αναπληρωτών Υπουργών και Υφυπουργών.
6. Τη με αριθμό Υ198/2016 (ΦΕΚ 3722/Β/2016) απόφαση Πρωθυπουργού περί ανάθεσης αρμοδιοτήτων στον αναπληρωτή Υπουργό Περιβάλλοντος και Ενέργειας, Σωκράτη Φάμελλο.
7. Την με αριθμό 34897/Φ.700.1/2002, (ΦΕΚ 844/Β/2002), απόφαση Υπουργού Δημόσιας Τάξης περί Έγκρισης πυροσβεστικής διάταξης 10/2002, όπως τροποποιήθηκε και ισχύει.
8. Την με αριθμό Τ/9803/2003 (ΦΕΚ 1323/Β/2003) κοινή απόφαση των Υπουργών Ανάπτυξης και Εμπορικής Ναυτιλίας περί Γενικού Κανονισμού Λειτουργίας Τουριστικών Λιμένων όπως τροποποιήθηκε και ισχύει.
9. Τη με αριθμό 11214/2012 (ΦΕΚ 2339/Β/2012) Απόφαση Υπουργού Τουρισμού περί Καθορισμού παραστατικών της παραγράφου 7 του άρθρου 31 του νόμου 2160/1993, όπως τροποποιήθηκε με το νόμο 4070/2012.
10. Τη με αριθμό 28355/2015 απόφαση Αναπληρώτριας Υπουργού Οικονομίας, Ανάπτυξης και Τουρισμού περί συγκρότησης Επιτροπής Τουριστικών Λιμένων, (ΑΔΑ:6Υ7Π4653Ο7-5ΛΘ), όπως τροποποιήθηκε με την με αριθμό 24777/2015 απόφαση (ΑΔΑ: ΩΩΣΤ465307ΣΙΛ).
11. Την υπ' αριθμόν 13652/2011 (ΦΕΚ 283/ΑΑΠ/2011) υπουργική απόφαση τροποποίησης της υπ' αριθμόν 1911/1995 υπουργική απόφαση (ΦΕΚ 859/Β/1995) χωροθέτησης του τουριστικού λιμένα Μυτιλήνης.
12. Το υπ' αριθμόν ΥΤ/19860/19-09-2014 αίτημα της εταιρείας Μαρίνα Μυτιλήνης Α.Ε. για τροποποίηση του Master Plan του τουριστικού λιμένα Μυτιλήνης
13. Το υπ' αριθμόν 1/05-11-2014 έγγραφο της Διεύθυνσης Χωροταξικού Σχεδιασμού και Υποδομών του Υπουργείου Τουρισμού στην Ειδική Υπηρεσία Προώθησης και Αδειοδότησης Τουριστικών Επενδύσεων
14. Το υπ' αριθμόν 22923/06-11-2014 έγγραφο της Διεύθυνσης Χωροταξικού Σχεδιασμού και Υποδομών του Υπουργείου Τουρισμού στην εταιρεία ΜΑΡΙΝΑ ΜΥΤΙΛΗΝΗΣ Α.Ε.
15. Το υπ' αριθμόν 2525/13-02-2017 έγγραφο της Διεύθυνσης Χωροταξικού Σχεδιασμού και Υποδομών του Υπουργείου Τουρισμού στη Διεύθυνση Περιβαλλοντικής Αδειοδότησης του Υπουργείου Περιβάλλοντος και Ενέργειας (αριθμός πρωτοκόλλου ΔΙΠΑ/ΥΠΕΝ/9157/21-02-2017)
16. Το με αριθμό 254/18-09-2014 Πρακτικό της Επιτροπής Τουριστικών Λιμένων
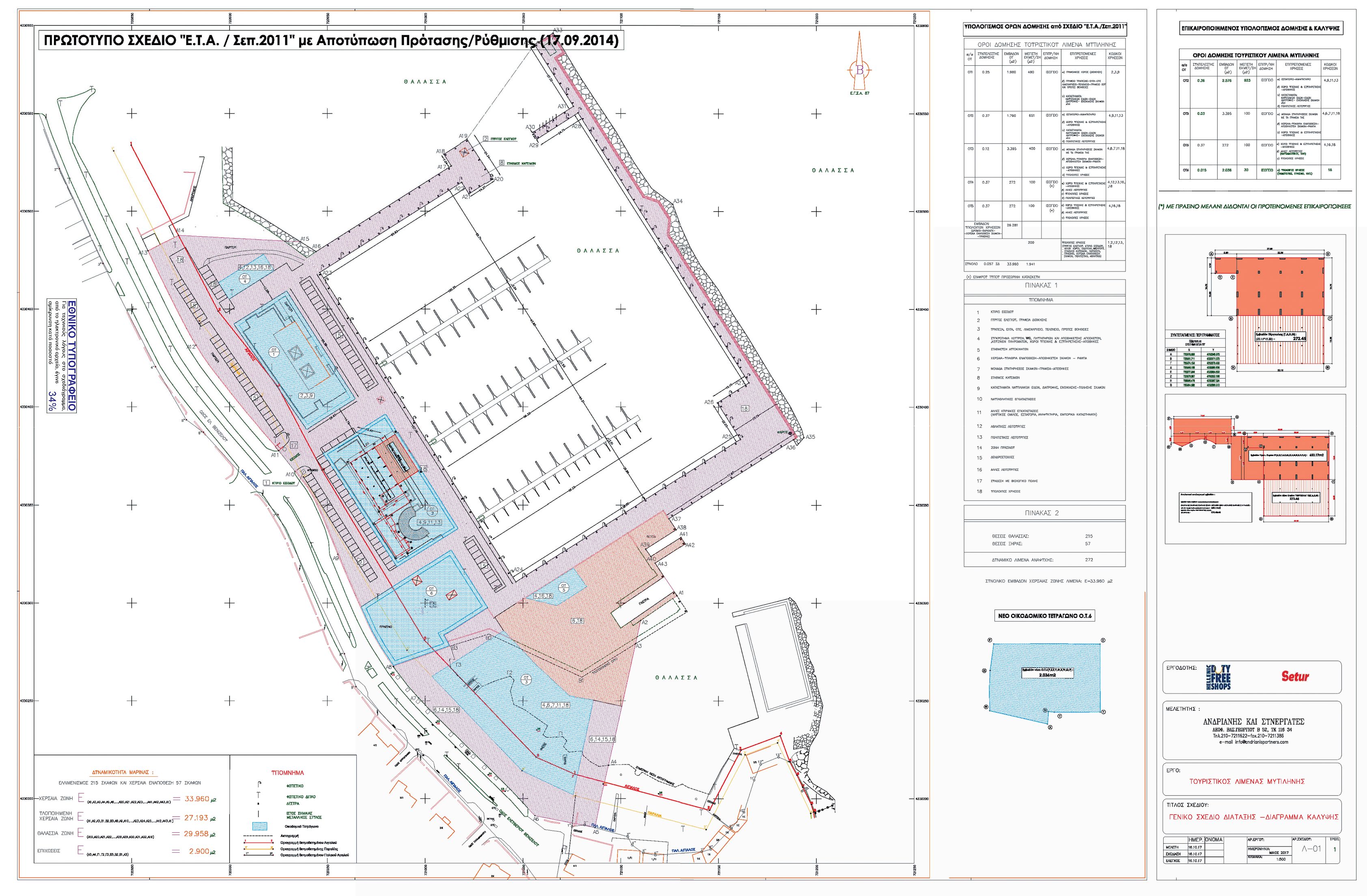
17. Το με αριθμό σχεδίου Λ-01 με τίτλο ΓΕΝΙΚΟ ΣΧΕΔΙΟ ΔΙΑΤΑΞΗΣ-ΔΙΑΓΡΑΜΜΑ ΚΑΛΥΨΗΣ του τουριστικού λιμένα Μυτιλήνης
18. Τη με αριθμό πρωτοκόλλου 206602/30-11-2011 απόφαση Έγκρισης Περιβαλλοντικών Όρων του έργου Τουριστικός Λιμένας Μυτιλήνης.
19. Το από 30-12-2014 έγγραφο της ΜΑΡΙΝΑ ΜΥΤΙΛΗΝΗΣ Α.Ε. υποβολής στην ΔΙΠΑ/ΥΠΕΚΑ φακέλου τροποποίησης απόφασης Έγκρισης Περιβαλλοντικών Όρων (αριθμός πρωτοκόλλου ΔΙΠΑ/ΥΠΕΚΑ/177643/30-12-2014)
20. Το με αριθμό πρωτοκόλλου 145406/20-01-2015 έγγραφο της ΔΙΠΑ/ΥΠΕΚΑ, με το οποίο διαβιβάστηκε ένα αντίγραφο του φακέλου τροποποίησης απόφασης Έγκρισης Περιβαλλοντικών Όρων του έργου προς το Περιφερειακό Συμβούλιο Βορείου Αιγαίου, για τη δημοσιοποίηση του φακέλου, στο πλαίσιο ενημέρωσης του κοινού, χωρίς να απαιτείται σχετική διαδικασία διαβούλευσης.
21. Το γεγονός ότι από τις διατάξεις της παρούσας δεν προκαλείται δαπάνη σε βάρος του κρατικού προϋπολογισμού, αποφασίζουμε:
1. Την τροποποίηση της ως άνω υπ' αριθμόν 11 του σκεπτικού της παρούσας σχετικής υπουργικής απόφασης χωροθέτησης του τουριστικού λιμένα Μυτιλήνης όπως αποτυπώνεται στο με αριθμό σχεδίου Λ-01 με τίτλο ΓΕΝΙΚΟ ΣΧΕΔΙΟ ΔΙΑΤΑΞΗΣ-ΔΙΑΓΡΑΜΜΑ ΚΑΛΥΨΗΣ (σχετικό 17 του σκεπτικού της παρούσας) που αποτελεί αναπόσπαστο μέρος της απόφασης αυτής.
2. Την τροποποίηση της υπ' αριθμόν πρωτοκόλλου 206602/30-11-2011 απόφασης Έγκρισης Περιβαλλοντικών Όρων (ΑΕΠΟ) (σχετικό 18 του σκεπτικού της παρούσας), ως εξής:
Προστίθενται στο τέλος της παραγράφου α)Είδος και μέγεθος δραστηριότητας τα εξής:
{Η διαμόρφωση της χερσαίας ζώνης του λιμένα αποτυπώνεται στο σχέδιο με αριθμό Λ-01 ΓΕΝΙΚΟ ΣΧΕΔΙΟ ΔΙΑΤΑΞΗΣΔΙΑΓΡΑΜΜΑ ΚΑΛΥΨΗΣ (σχετικό 17 του σκεπτικού της παρούσας), που αποτελεί αναπόσπαστο μέρος της απόφασης αυτής.}
Κατά τα λοιπά εξακολουθούν να ισχύουν τα αναφερόμενα στην υπ' αριθμόν πρωτοκόλλου 206602/30-11-2011 απόφαση Έγκρισης Περιβαλλοντικών Όρων (ΑΕΠΟ).
Α) Περιγραφή του έργου
Χερσαία Ζώνη
Με την παρούσα γίνεται μία διευθέτηση των οικοδομικών τετραγώνων και των χρήσεων της χερσαίας ζώνης του τουριστικού λιμένα:
| • | Στο οικοδομικό τετράγωνο (Ο.Τ.2) εγκρίνεται προσθήκη κατ' επέκταση του υφιστάμενου κτιρίου που φιλοξενεί την πρωτεύουσα χρήση του τουριστικού λιμένα που είναι η εστίαση-αναψυχή στο εστιατόριο - cafe-bar. |
Καταργείται ο χώρος στάθμευσης αυτοκινήτων έμπροσθεν των κρηπιδωμάτων που εμποδίζει την ελεύθερη θέα προς τη θάλασσα, ενώ η κυκλοφορία των οχημάτων θα γίνεται προς μία μόνο κατεύθυνση. Οι προαναφερόμενες θέσεις στάθμευσης μεταφέρονται σε νέα θέση, όπισθεν του κτιρίου, όπου δεν προκαλείται όχληση στις δραστηριότητες της μαρίνας.
| • | Οριοθετείται νέο οικοδομικό τετράγωνο (Ο.Τ.6) ανατολικά του (Ο.Τ.2) με επιτρεπόμενες χρήσεις παιδικής χαράς, παιδότοπου και οργανωμένου πρασίνου με επιτρεπόμενη δόμηση μέχρι 30 m2. |
| • | Στο οικοδομικό τετράγωνο (Ο.Τ.5) προστίθεται η χρήση του ναυταθλητισμού. |
Η προβλεπόμενη με την παρούσα εσωτερική αναδιάταξη των οικοδομικών τετραγώνων, δεν επιφέρει αύξηση της συνολικής μέγιστης εκμετάλλευσης, εμπλουτίζοντας τη χρήση εστίασης - αναψυχής τόσο στο (Ο.Τ.2) όσο και στο (Ο.Τ.5) και (Ο.Τ.6) μέσω της δημιουργίας παιδότοπου και χρήσεων ναυταθλητισμού.
Οι όροι δόμησης και κάλυψης των κτιρίων στη χερσαία ζώνη, καθώς και οι χρήσεις τους διαμορφώνονται, ως ακολούθως:
ΕΦΗΜΕΡΙΔΑ ΤΗΣ ΚΥΒΕΡΝΗΣΕΩΣ
1427
ΕΠΙΚΑΙΡΟΠΟΙΗΜΕΝΟΣ ΥΠΟΛΟΓΙΣΜΟΣ ΔΟΜΗΣΗΣ ΚΑΙ ΚΑΛΥΨΗΣ
|
ΟΡΟΙ ΔΟΜΗΣΗΣ ΤΟΥΡΙΣΤΙΚΟΥ ΛΙΜΕΝΑ ΜΥΤΙΛΗΝΗΣ
|
α/α ΟΤ
|
ΣΥΝΤΕΛΕΣΤΗΣ ΔΟΜΗΣΗΣ
|
ΕΜΒΑΔΟΝ ΟΙΚΟΔΟΜΙΚΟΥ ΤΕΤΡΑΓΩΝΟΥ Ο.Τ. (m2)
|
ΜΕΓΙΣΤΗ ΕΚΜΕΤΑΛΛΕΥΣΗ
(m2)
|
ΕΠΙΤΡΕΠΟΜΕΝΗ ΔΟΜΗΣΗ
|
ΕΠΙΤΡΕΠΟΜΕΝΕΣ ΧΡΗΣΕΙΣ
|
ΚΩΔΙΚΟΙ ΧΡΗΣΕΩΝ
|
ΟΤ1
|
0,25
|
1.980
|
490
|
ΙΣΟΓΕΙΟ
|
α) ΓΡΑΦΕΙΑΚΟΣ ΧΩΡΟΣ (ΔΙΟΙΚΗΣΗ)
β) ΓΡΑΦΕΙΟ ΤΡΑΠΕΖΑΣ-ΕΛΤΑ- ΟΤΕ-ΛΙΜΕΝΑΡΧΕΙΟ-ΤΕΛΩΝΕΙΟ- ΓΡΑΦΕΙΟ EOT ΚΑΙ ΠΡΩΤΕΣ ΒΟΗΘΕΙΕΣ γ) ΚΑΤΑΣΤΗΜΑΤΑ: ΝΑΥΤΙΛΙΑΚΩΝ ΕΙΔΩΝ - ΕΙΔΩΝ ΔΙΑΤΡΟΦΗΣ - ΕΝΟΙΚΙΑΣΗΣΗ ΣΚΑΦΩΝ κλπ.
|
2,3,9
|
ΟΤ2
|
0,36
|
2.576
|
923
|
ΙΣΟΓΕΙΟ
|
α) ΕΣΤΙΑΤΟΡΙΟ - ΑΝΑΨΥΚΤΗΡΙΟ β) ΧΩΡΟΙ ΥΓΙΕΙΝΗΣ ΚΑΙ ΕΞΥΠΗΡΕΤΗΣΗΣ- ΑΠΟΘΗΚΕΣ γ) ΚΑΤΑΣΤΗΜΑΤΑ: ΝΑΥΤΙΛΙΑΚΩΝ ΕΙΔΩΝ- ΕΙΔΩΝ ΔΙΑΤΡΟΦΗΣ- ΕΝΟΙΚΙΑΣΗΣ ΣΚΑΦΩΝ κλπ. δ) ΠΟΛΙΤΙΣΤΙΚΕΣ ΛΕΙΤΟΥΡΓΙΕΣ
|
4, 9,11,13
|
ΟΤ3
|
0,03
|
3.395
|
100
|
ΙΣΟΓΕΙΟ
|
α) ΜΟΝΑΔΑ ΣΥΝΤΗΡΗΣΕΩΣ ΣΚΑΦΩΝ ΜΕ ΤΑ ΓΡΑΦΕΙΑ ΤΗΣ β) ΧΕΡΣΑΙΑ-ΥΠΑΙΘΡΙΑ ΕΝΑΠΟΘΕΣΗ- ΑΠΟΘΗΚΕΥΣΗ ΣΚΑΦΩΝ- ΡΑΜΠΑ
γ) ΧΩΡΟΙ ΥΓΙΕΙΝΗΣ ΚΑΙ
ΕΞΥΠΗΡΕΤΗΣΗΣ-
ΑΠΟΘΗΚΕΣ
|
4, 6, 7,11, 18
|
ΟΤ4
|
0,37
|
272
|
100
|
ΙΣΟΓΕΙΟ (*)
|
α) ΧΩΡΟΙ ΥΓΙΕΙΝΗΣ ΚΑΙ ΕΞΥΠΗΡΕΤΗΣΗΣ - ΑΠΟΘΗΚΕΣ β) ΑΛΛΕΣ ΛΕΙΤΟΥΡΓΙΕΣ γ) ΥΠΟΛΟΙΠΕΣ ΧΡΗΣΕΙΣ δ) ΠΟΛΙΤΙΣΤΙΚΕΣ ΛΕΙΤΟΥΡΓΙΕΣ
|
4, 12, 13, 16, 18
|
ΟΤ5
|
0,37
|
272
|
100
|
ΙΣΟΓΕΙΟ
|
α) ΧΩΡΟΙ ΥΓΙΕΙΝΗΣ ΚΑΙ ΕΞΥΠΗΡΕΤΗΣΗΣ - ΑΠΟΘΗΚΕΣ β) ΑΛΛΕΣ ΛΕΙΤΟΥΡΓΙΕΣ (ΝΑΥΤΑΘΛΗΤΙΚΕΣ, κλπ.) γ) ΥΠΟΛΟΙΠΕΣ ΧΡΗΣΕΙΣ)
|
4, 16, 18
|
0T6
|
0,015
|
2.036
|
30
|
ΙΣΟΓΕΙΟ
|
α) ΥΠΟΛΟΙΠΕΣ ΧΡΗΣΕΙΣ (ΠΑΙΔΟΤΟΠΟΣ, ΠΡΑΣΙΝΟ κλπ.)
|
18
|
200
|
|
ΥΠΟΛΟΙΠΕΣ ΧΡΗΣΕΙΣ (ΠΥΡΓΟΣ ΕΛΕΓΧΟΥ, ΚΤΙΡΙΟ ΕΙΣΟΔΟΥ, ΑΠΟΘ. ΧΩΡΟΙ, ΟΔΟΠΟΙΙΑ, WC ΝΤΟΥΣ, ΣΤΑΘΜΟΣ ΚΑΥΣΙΜΩΝ, ΠΑΡΚΙΝΓΚ, ΠΡΑΣΙΝΟ, ΧΕΡΣΑΙΑ ΕΝΑΠΟΘΕΣΗ ΣΚΑΦΩΝ, ΠΟΛΙΤΙΣΤΙΚΑ, ΑΘΛΗΤΙΚΑ)
|
1, 2,12, 13, 18
|
ΣΥΝΟΛΟ 0,057 Σ.Δ. 33.960 1.943
|
|
|
(*) ΕΛΑΦΡΟΥ ΤΥΠΟΥ ΠΡΟΣΩΡΙΝΗ ΚΑΤΑΣΚΕΥΗ
ΥΠΟΜΝΗΜΑ ΧΡΗΣΕΩΝ
|
1. ΚΤΙΡΙΟ ΕΙΣΟΔΟΥ
|
2. ΠΥΡΓΟΣ ΕΛΕΓΧΟΥ, ΓΡΑΦΕΙΑ ΔΙΟΙΚΗΣΗΣ
|
3. ΤΡΑΠΕΖΑ, ΕΛΤΑ, ΟΤΕ, ΛΙΜΕΝΑΡΧΕΙΟ, ΤΕΛΩΝΕΙΟ, ΠΡΩΤΕΣ ΒΟΗΘΕΙΕΣ
|
4. ΣΥΓΚΡΟΤΗΜΑ ΛΟΥΤΡΩΝ, WC, ΠΛΥΝΤΗΡΙΩΝ ΚΑΙ ΑΠΟΘΗΚΕΥΣΗΣ ΑΠΟΣΚΕΥΩΝ, ΚΟΥΖΙΝΩΝ ΠΛΗΡΩΜΑΤΩΝ, ΧΩΡΟΙ ΥΓΙΕΙΝΗΣ ΚΑΙ ΕΞΥΠΗΡΕΤΗΣΗΣ-ΑΠΟΘΗΚΕΣ
|
5. ΣΤΑΘΜΕΥΣΗ ΑΥΤΟΚΙΝΗΤΩΝ
|
6. ΧΕΡΣΑΙΑ - ΥΠΑΙΘΡΙΑ ΕΝΑΠΟΘΕΣΗ - ΑΠΟΘΗΚΕΥΣΗ ΣΚΑΦΩΝ - ΡΑΜΠΑ
|
7. ΜΟΝΑΔΑ ΣΥΝΤΗΡΗΣΕΩΣ ΣΚΑΦΩΝ - ΓΡΑΦΕΙΑ - ΑΠΟΘΗΚΕΣ
|
8. ΣΤΑΘΜΟΣ ΚΑΥΣΙΜΩΝ
|
9. ΚΑΤΑΣΤΗΜΑΤΑ ΝΑΥΤΙΛΙΑΚΩΝ ΕΙΔΩΝ, ΔΙΑΤΡΟΦΗΣ, ΕΝΟΙΚΙΑΣΗΣ-ΠΩΛΗΣΗΣ ΣΚΑΦΩΝ
|
10. ΝΑΥΤΑΘΛΗΤΙΚΕΣ ΕΓΚΑΤΑΣΤΑΣΕΙΣ
|
11. ΑΛΛΕΣ ΚΤΙΡΙΑΚΕΣ ΕΓΚΑΤΑΣΤΑΣΕΙΣ
(ΝΑΥΤΙΚΟΣ ΟΜΙΛΟΣ, ΕΣΤΙΑΤΟΡΙΑ, ΑΝΑΨΥΚΤΗΡΙΑ, ΕΜΠΟΡΙΚΑ ΚΑΤΑΣΤΗΜΑΤΑ)
|
12. ΑΘΛΗΤΙΚΕΣ ΛΕΙΤΟΥΡΓΙΕΣ
|
13. ΠΟΛΙΤΙΣΤΙΚΕΣ ΛΕΙΤΟΥΡΓΙΕΣ
|
14. ΖΩΝΗ ΠΡΑΣΙΝΟΥ
|
15. ΔΕΝΔΡΟΣΤΟΙΧΙΕΣ
|
16. ΑΛΛΕΣ ΛΕΙΤΟΥΡΓΙΕΣ
|
17. ΣΥΝΔΕΣΗ ΜΕ ΒΙΟΛΟΓΙΚΟ ΠΟΛΗΣ
|
18. ΥΠΟΛΟΙΠΕΣ ΧΡΗΣΕΙΣ
|
Κατά τα λοιπά, ισχύουν τα αναφερόμενα στην υπ' αριθμόν 13652/2011 (ΦΕΚ 283/ΑΑΠ/2011) υπουργική απόφαση.
Β) Δημοσιοποίηση της απόφασης
Η απόφαση αυτή να δημοσιευθεί στην Εφημερίδα της Κυβερνήσεως και να αναρτηθεί στη δικτυακή διεύθυνση http://www.aepo.ypeka.gr (σύμφωνα με τα αναφερόμενα στο άρθρο 19Α του νόμου 4014/2011, καθώς και στην κοινή υπουργική απόφαση 21398/2012).

Αθήνα, 05-07-2017
Οι Υπουργοί