| Συνδεθείτε στην Υπηρεσία Νομοσκόπιο | | | | | Νέοι χρήστες | | Εάν είστε νέος χρήστης, θα πρέπει να δημιουργήσετε ένα ΔΩΡΕΑΝ λογαριασμό προκειμένου να φύγει το παράθυρο αυτό και να αποκτήσετε πλήρη πρόσβαση στην υπηρεσία Νομοσκόπιο. | | Δημιουργία νέου λογαριασμού | | |
Απόφαση 191394/2581/2017: Τροποποίηση του Ρυμοτομικού Σχεδίου Πόλης Άμφισσας, Δήμου Δελφών στο οικοδομικό τετράγωνο 278, (ΦΕΚ 277/ΑΑΠ/2017), 28-11-2017.
Ο Αντιπεριφερειάρχης Στερεάς Ελλάδας
Έχοντας υπόψη:
1. Τις διατάξεις του νόμου 3852/2010 Νέα Αρχιτεκτονική της Αυτοδιοίκησης και της Αποκεντρωμένης Διοίκησης Πρόγραμμα Καλλικράτης.
2. Το προεδρικό διάταγμα 148/2010 (ΦΕΚ 241/Α/2010) Οργανισμός της Περιφέρειας Στερεάς Ελλάδας.
3. Τις διατάξεις του από 17-07-1923 νομοθετικού διατάγματος (ΦΕΚ 228/Α/1923) Περί σχεδίων πόλεων, κωμών και συνοικισμών του Κράτους και οικοδομής αυτών.
4. Τις διατάξεις του άρθρου 21 του από 03-04-1929 προεδρικού διατάγματος (ΦΕΚ 155/Α/1929), που διατηρήθηκαν σε ισχύ με το άρθρο 31, παράγραφος 3 του νόμου 1577/1985.
5. Τις διατάξεις του νόμου 1337/1983 (ΦΕΚ 33/Α/1983) Επέκταση των πολεοδομικών σχεδίων, οικιστική ανάπτυξη και σχετικές ρυθμίσεις, όπως τροποποιήθηκαν και ισχύουν.
6. Τις διατάξεις του νόμου 2508/1997 (ΦΕΚ 124/Α/1997) Βιώσιμη οικιστική ανάπτυξη των πόλεων και οικισμών της χώρας και άλλες διατάξεις, όπως τροποποιήθηκαν και ισχύουν.
7. Τις διατάξεις του άρθρου 29 του νόμου 2831/2000 (ΦΕΚ 140/Α/2000), όπως τροποποιήθηκαν και ισχύουν.
8. Τις διατάξεις του νόμου 1577/1985 (ΦΕΚ 210/Α/1985) Γενικός Οικοδομικός Κανονισμός και του νόμου 4067/2012 (ΦΕΚ 79/Α/2012) Νέος Οικοδομικός Κανονισμός, όπως ισχύουν.
9. Τις διατάξεις του νόμου 4315/2014 (ΦΕΚ 269/Α/2014) Πράξεις εισφοράς σε γη και σε χρήμα - ρυμοτομικές απαλλοτριώσεις και άλλες διατάξεις.
10. Την υπ' αριθμόν 60/12080/85/1987 εγκύκλιο (Εγκύκλιος 85/1987) Διευκρινίσεις του άρθρου 28 του νόμου 1337/1983.
11. Τις υπ' αριθμούς 1/1961, 8/1975, 84/2000, 55/1988, 18/2003 και 47/2004 εγκυκλίους του Υπουργείου Περιβάλλοντος, Χωροταξίας και Δημοσίων Έργων καθώς και κάθε άλλη σχετική διάταξη.
12. Το από [ΒΔ] 17-10-1953 βασιλικό διάταγμα (ΦΕΚ 309/Α/1953) εγκεκριμένο ρυμοτομικό σχέδιο πόλης Άμφισσας νομού Φωκίδας και καθορισμός όρων και περιορισμών δόμησης οικοπέδων.
13. Την εγκεκριμένη πολεοδομική μελέτη του τέως Δήμου Άμφισσας (ΦΕΚ 534/Δ/1990).
14. Το εγκεκριμένο γενικό πολεοδομικό σχέδιο Άμφισσας (ΦΕΚ 490/ΑΑΠ/2013).
15. Την από 21-09-2016 τεχνική έκθεση του πολιτικού μηχανικού Ταγκαλή Παναγιώτη σχετική με τη τροποποίηση του σχεδίου πόλεως Άμφισσας.
16. Το υπ' αριθμόν 15/12-12-2016 πρακτικό συνεδρίασης του Δημοτικού Συμβουλίου Δελφών που περιλαμβάνει την υπ' αριθμόν 282/2016 απόφαση αυτού. (ΑΔΑ: 6ΜΒΔΩ90-ΖΒΚ)
17. Το υπ' αριθμόν 69/3-01-2017 διαβιβαστικό έγγραφο του Δήμου Δελφών.
18. Το υπ' αριθμόν οίκοθεν 680/25-04-2017 έγγραφο της Διεύθυνσης Υπηρεσίας Δόμησης του Δήμου Δελφών με το οποίο διαβιβάστηκαν τα απαραίτητα δικαιολογητικά στοιχεία για την προτεινόμενη τροποποίηση.
19. Το υπ' αριθμόν 90249/1176/06-06-2017 έγγραφο προς το Συμβούλιο Πολεοδομικών Θεμάτων και Αμφισβητήσεων Περιφερειακής Ενότητας Φωκίδας.
20. Το υπ' αριθμόν 68/21-8-2017 έγγραφο του Συμβουλίου Πολεοδομικών Θεμάτων και Αμφισβητήσεων Περιφερειακής Ενότητας Φωκίδας, με το οποίο διαβιβάστηκε το υπ' αριθμόν 2/2016/19-07-2017 πρακτικό Συμβουλίου Πολεοδομικών Θεμάτων και Αμφισβητήσεων Περιφερειακής Ενότητας Φωκίδας (θέμα 1ο) έγκρισης τροποποίησης ρυμοτομικού σχεδίου Άμφισσας Δήμου Δελφών στο οικοδομικό τετράγωνο 278 με αριθμό απόφασης 3/2017.
21. Την υπ' αριθμόν οίκοθεν 73595/1304/2016 (ΦΕΚ 270/ΥΟΔΔ/2016) ΑΔΑ:62ΚΗ7ΛΗ-Ε53 απόφαση Περιφερειάρχη Στερεάς Ελλάδας Ορισμός Αντιπεριφερειαρχών στην Περιφέρεια Στερεάς Ελλάδας και ανάθεση άσκησης τομέων αρμοδιοτήτων.
Και επειδή
Α. Με την από 21-09-2016 αίτηση των Ζαχαράκη Πέτρου και Ζαχαράκη Ουρανίας προς το Δήμο Δελφών, υπεβλήθη αίτηση τροποποίησης του ρυμοτομικού σχεδίου, προκειμένου ο Δήμος να προβεί στις προβλεπόμενες διαδικασίες.
Β. Με το 15/12-12-2016 πρακτικό συνεδρίασης του Δημοτικού Συμβουλίου Δήμου Δελφών (θέμα 6°) το Δημοτικό Συμβούλιο αποφάσισε κατά πλειοψηφία υπέρ της έγκρισης της τροποποίησης.
Γ. Σύμφωνα με, τα άρθρα 1 (παράγραφοι 1 και 2) και 70 (παράγραφος 1) του από 17-07-1923 νομοθετικού διατάγματος, το άρθρο 21 (παράγραφος 2) του Γενικού Οικοδομικού Κανονισμού 1929 και τις 117/1986, 84/2000 εγκυκλίους του Υπουργείου Περιβάλλοντος, Χωροταξίας και Δημοσίων Έργων, κάθε τροποποίηση εγκεκριμένου ρυμοτομικού σχεδίου πρέπει να κατευθύνεται από πολεοδομικά κριτήρια, όπως αυτά καθορίζονται στο άρθρο 1 του από 17-07-1923 νομοθετικού διατάγματος και να αποβλέπει στη θεραπεία πολεοδομικών αναγκών, τις οποίες εμφανίζει η οικιστική ανάπτυξη και διαμόρφωση της πόλης στην εξέλιξη της. Στα πλαίσια των νομίμων αυτών παραγόντων περιλαμβάνονται και τα ιδιωτικά δίκαια και συμφέροντα, τα οποία όμως δεν μπορούν να αποτελέσουν αποκλειστικά έρεισμα της ρυμοτομικής διαρρύθμισης (ΣτΕ 2687/1982, 2912/1989). Επίσης οι κοινόχρηστοι χώροι πρέπει να προβλέπονται κατά το δυνατόν ευρύτεροι ενόψει των μελλοντικών αναγκών της πόλης, από απόψεως συγκοινωνίας, αισθητικής, υγιεινής κ.λ.π. (ΣτΕ 5203/1996, 260/1997).
Δ. Την υπ' αριθμόν 21/ΑΠΜ 7/1997/1988 απόφαση Μονομελούς Πρωτοδικείου Άμφισσας καθορισμού τιμής μονάδας απαλλοτρίωσης. Μέχρι σήμερα δεν καταβλήθηκε η οριζόμενη αποζημίωση.
Ε. Σύμφωνα με το άρθρο 3 του νόμου 4315/2014 το οποίο αντικατέστησε την παράγραφο 4)α του άρθρου 29 του νόμου 2831/2000.
ΣΤ. Η προτεινόμενη τροποποίηση αφορά ενέργεια απαραίτητη για την ορθή εφαρμογή του σχεδίου πόλης Άμφισσας.
Ζ. Από τις διατάξεις της παρούσας δε προκαλείται δαπάνη σε βάρος του κρατικού προϋπολογισμού ή του οικείου OTA ή οποιουδήποτε φορέα.
Η. Η υπ' αριθμόν 3/2017 απόφαση Συμβουλίου Πολεοδομικών Θεμάτων και Αμφισβητήσεων Περιφερειακής Ενότητας Φωκίδας με το 2/2016/19-07-2017 πρακτικό (θέμα 1ο) ομόφωνης γνωμοδότησης υπέρ της έγκρισης της συγκεκριμένης τροποποίησης, αποφασίζουμε:
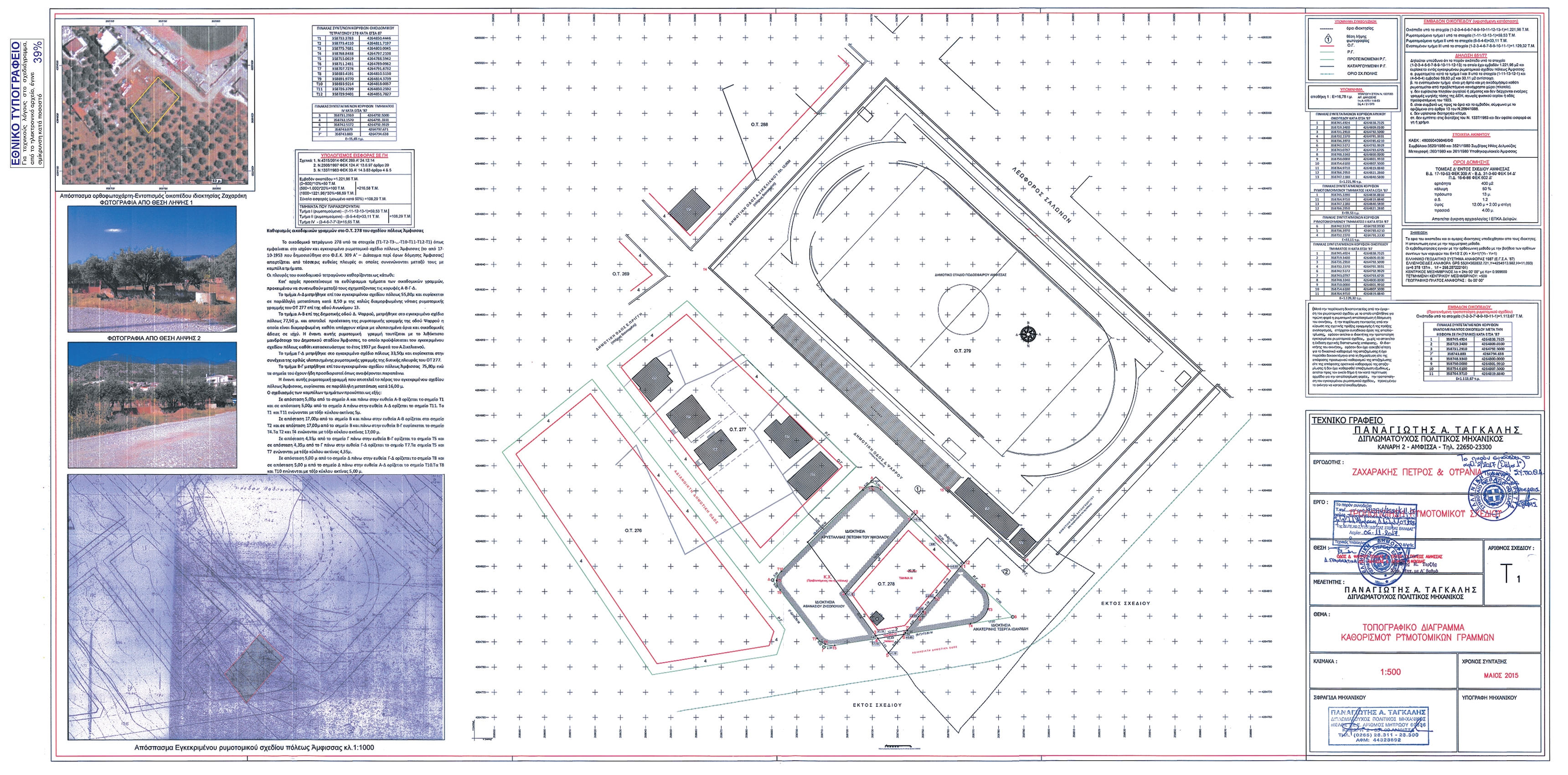
Εγκρίνουμε τη τροποποίηση του ρυμοτομικού σχεδίου Άμφισσας Δήμου Δελφών, στο οικοδομικό τετράγωνο 278, όπως αυτή φαίνεται στο συνημμένο τοπογραφικό διάγραμμα κλίμακας 1:500 και τη τεχνική έκθεση του Πολιτικού Μηχανικού Ταγκαλή Παναγιώτη.
Η παρούσα με το συνημμένο της τοπογραφικό διάγραμμα να δημοσιευθεί στην Εφημερίδα της Κυβερνήσεως.

Λαμία, 06-11-2017
Ο Αντιπεριφερειάρχης