| Συνδεθείτε στην Υπηρεσία Νομοσκόπιο | | | | | Νέοι χρήστες | | Εάν είστε νέος χρήστης, θα πρέπει να δημιουργήσετε ένα ΔΩΡΕΑΝ λογαριασμό προκειμένου να φύγει το παράθυρο αυτό και να αποκτήσετε πλήρη πρόσβαση στην υπηρεσία Νομοσκόπιο. | | Δημιουργία νέου λογαριασμού | | |
Απόφαση 2081/2017: Τροποποίηση της υπ' αριθμόν 27801/2004 υπουργικής απόφασης (ΦΕΚ 624/Δ/2004), περί καθορισμού συμπληρωματικών ειδικών όρων και περιορισμών δόμησης στο ακίνητο επί της οδού Πειραιώς 256, του εγκεκριμένου ρυμοτομικού σχεδίου Ελαιώνα νομού Αττικής, (ΦΕΚ 20/ΑΑΠ/2017), 07-02-2017.
Ο Υπουργός Περιβάλλοντος και Ενέργειας
Έχοντας υπόψη:
1. Τις διατάξεις του άρθρου 6 (παράγραφοι 3)α και 3)γ) του νόμου 4067/2012 Νέος Οικοδομικός Κανονισμός (ΦΕΚ 79/Α/2012) και όπως η παράγραφος 3)α τροποποιήθηκε με το άρθρο 48 παράγραφος 2 του νόμου 4178/2013 (ΦΕΚ 174/Α/2013) και ισχύουν.
2. Τις διατάξεις των άρθρων 26 και 27 του νόμου 4030/2011 Νέος τρόπος έκδοσης αδειών δόμησης, ελέγχου κατασκευών και λοιπών διατάξεων (ΦΕΚ 249/Α/2011), όπως τροποποιήθηκαν με το άρθρο 49 (παράγραφοι 6 και 7) του νόμου 4178/2013 Αντιμετώπιση της Αυθαίρετης Δόμησης - Περιβαλλοντικό ισοζύγιο και άλλες διατάξεις (ΦΕΚ 174/Α/2013) και όπως το άρθρο 27 αντικαταστάθηκε με το άρθρο 21 (παράγραφος 4) του νόμου 4258/2014 Διαδικασία Οριοθέτησης και ρυθμίσεις θεμάτων για τα υδατορέματα - ρυθμίσεις Πολεοδομικής νομοθεσίας και άλλες διατάξεις (ΦΕΚ 94/Α/2014) και ισχύουν.
3. Τις διατάξεις του άρθρου 90 του Κώδικα Νομοθεσίας για την Κυβέρνηση και τα κυβερνητικά όργανα, που κυρώθηκε με το πρώτο άρθρο του προεδρικού διατάγματος 63/2005 (ΦΕΚ 98/Α/2005).
4. Την υπ' αριθμόν 7863/1383/1997 απόφαση (ΦΕΚ 267/Δ/1997) Χαρακτηρισμός ως διατηρητέων 88 κτιρίων και των κυρίων όψεων 10 κτιρίων που βρίσκονται κατά μήκος της διαδρομής του άξονα της οδού Πειραιώς εντός του ρυμοτομικού σχεδίου δήμου Αθηναίων, Αγίου Ιωάννη Ρέντη, Μοσχάτου, Ταύρου και Πειραιώς (νομού Αττικής) και καθορισμός ειδικών όρων και περιορισμών δόμησης αυτού.
5. Την υπ' αριθμόν 27801/2004 υπουργική απόφαση (ΦΕΚ 624/Δ/2004) Χαρακτηρισμός ως διατηρητέων τμήματος αύλειου χώρου και ξύλινου κτιρίου και καθορισμός συμπληρωματικών ειδικών όρων και περιορισμών δόμησης, στο διατηρητέο συγκρότημα κτιρίων επί της οδού Πειραιώς αριθμός 256 του εγκεκριμένου ρυμοτομικού σχεδίου Ελαιώνα νομού Αττικής.
6. Την από 20-02-2015 αιτιολογική έκθεση της Διεύθυνσης Αρχιτεκτονικής, Οικοδομικών Κανονισμών και Αδειοδοτήσεων, Τμήμα Διατηρητέων Κτιρίων.
7. Την από 12-03-2015 (αριθμός πρωτοκόλλου ΥΠΑΠΕΝ 11361/2015) αποδοχή της αιτιολογικής έκθεσης, σύμφωνα με την από 05-03-2015 απόφαση Συγκλήτου της Ανωτάτης Σχολής Καλών Τεχνών.
8. Την από 20-10-2014 εισήγηση του τμήματος Τεχνικής Υπηρεσίας της Ανωτάτης Σχολής Καλών Τεχνών και την από 12-11-2014 έγκριση - απόφαση της Συγκλήτου της Ανωτάτης Σχολής Καλών Τεχνών.
9. Το γεγονός ότι παρήλθε η εκ του νόμου προθεσμία χωρίς να υποβληθούν τυχόν αντιρρήσεις των ενδιαφερομένων.
10. Την υπ' αριθμόν 33η πράξη / συνεδρίαση 3η/09-10-2015 γνωμοδότηση του Κεντρικού Συμβουλίου Αρχιτεκτονικής.
11. Το γεγονός ότι από τις κανονιστικές διατάξεις της παρούσας απόφασης δεν προκαλείται δαπάνη σε βάρος του κρατικού προϋπολογισμού και του προϋπολογισμού του οικείου οργανισμού τοπικής αυτοδιοίκησης, αποφασίζουμε:
Α. Στο κτιριακό συγκρότημα που βρίσκεται επί της οδού Πειραιώς 256, του εγκεκριμένου ρυμοτομικού σχεδίου Ελαιώνα νομού Αττικής, φερόμενο ως ιδιοκτησία της Ανωτάτης Σχολής Καλών Τεχνών και στο οποίο βρίσκονται κτίρια και αύλειος χώρος, που έχουν χαρακτηρισθεί ως διατηρητέα με τις ως άνω υπ' αριθμόν 7863/1383/1997 και 27801/2004 αποφάσεις:
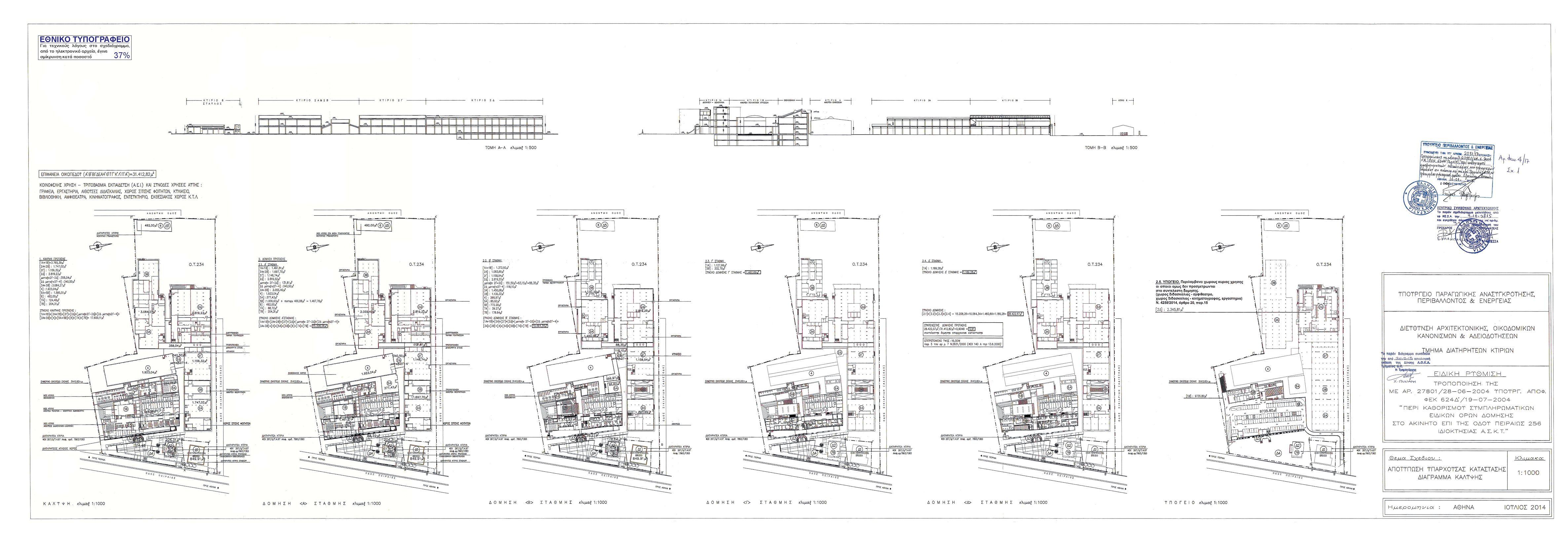
1. Καθορίζεται Συντελεστής Δόμησης 0,91 όπως φαίνεται στο διάγραμμα κάλυψης που συνοδεύει την παρούσα σε κλίμακα 1/1000, σε αντικατάσταση του διαγράμματος κάλυψης που συνοδεύει την ως άνω 27801/2004 απόφαση, που θεωρήθηκε από τον Προϊστάμενο της Διεύθυνσης Τοπογραφικών Εφαρμογών και Γεωχωρικών Πληροφοριών με την υπ' αριθμόν 2081/2017 πράξη και που αντίτυπο σε φωτοσμίκρυνση δημοσιεύεται με την παρούσα απόφαση.
2. Επιτρέπεται η χρήση του χώρου για κοινωφελή χρήση και ειδικότερα ως χώρου Τριτοβάθμιας Εκπαίδευσης (ΑΕΙ) - Ανώτατη Σχολή Καλών Τεχνών (ΑΣΚΤ) μαζί με όλες τις συνοδές χρήσεις (εργαστήρια, αίθουσες διδασκαλίας, κυλικείο, χώρος σίτισης φοιτητών, αμφιθέατρα κινηματογράφος, αίθουσες προβολών και σεμιναρίων, βιβλιοθήκη, εκθεσιακός χώρος, εντευκτήριο κ.λ.π.).
3. Αντικαθίσταται ο όρος διατηρητέο συγκρότημα κτιρίων με το ορθό κτιριακό συγκρότημα με διατηρητέα κτίρια και στοιχεία στην υπ' αριθμόν 27801/2004 (ΦΕΚ 624/Δ/2004), όπου αναγράφεται.
Β. Με τη δημοσίευση της παρούσας απόφασης παύουν να ισχύουν οι διατάξεις της ως άνω 27801/28.6.2004 απόφασης, οι οποίες αντίκεινται στα οριζόμενα με την παρούσα.
Γ. Κατά τα λοιπά εξακολουθεί να ισχύει η ως άνω 7863/1383/1997 απόφαση, με την οποία χαρακτηρίστηκαν κτίρια του υπόψη συγκροτήματος ως διατηρητέα.
Η ισχύς της παρούσας απόφασης αρχίζει από τη δημοσίευσή της στην Εφημερίδα της Κυβερνήσεως.
Η απόφαση αυτή να δημοσιευθεί στην εφημερίδα της Κυβερνήσεως.

Αθήνα, 16-01-2017
Ο Υπουργός