| Συνδεθείτε στην Υπηρεσία Νομοσκόπιο | | | | | Νέοι χρήστες | | Εάν είστε νέος χρήστης, θα πρέπει να δημιουργήσετε ένα ΔΩΡΕΑΝ λογαριασμό προκειμένου να φύγει το παράθυρο αυτό και να αποκτήσετε πλήρη πρόσβαση στην υπηρεσία Νομοσκόπιο. | | Δημιουργία νέου λογαριασμού | | |
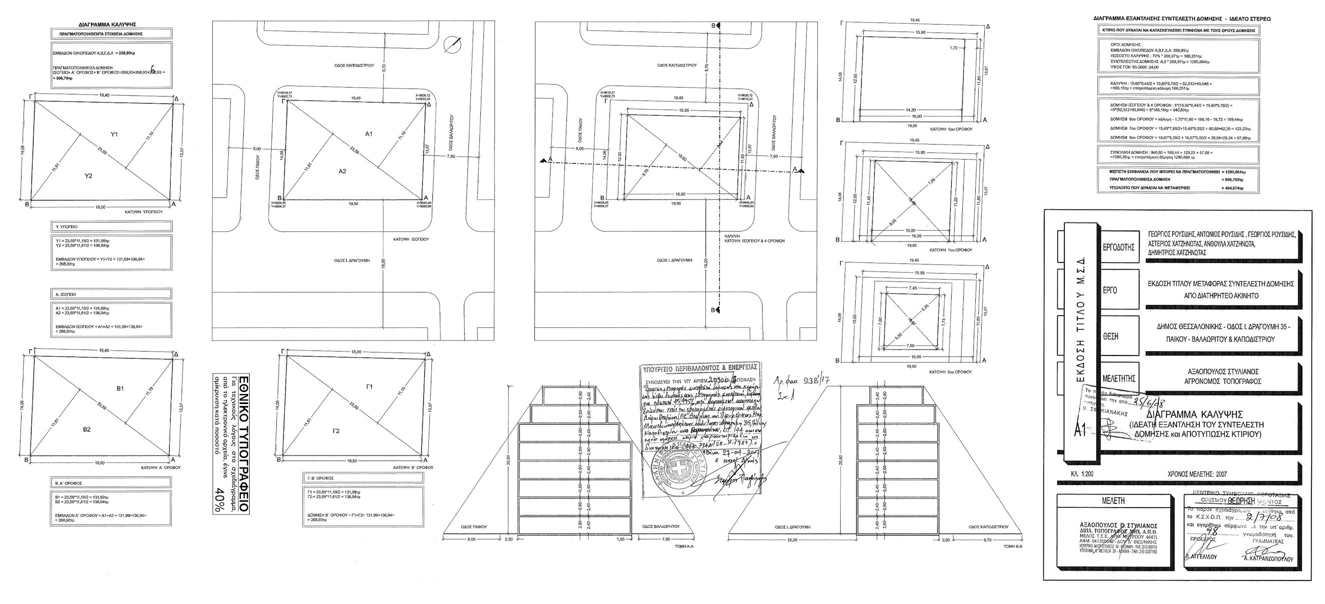
1. Εγκρίνεται η μεταφορά συντελεστή δόμησης για ποσοστό 45,495%, από βαρυνόμενο ακίνητο που βρίσκεται εντός του εγκεκριμένου ρυμοτομικού σχεδίου του Δήμου Θεσσαλονίκης (Περιφερειακής Ενότητας Θεσσαλονίκης της Περιφέρειας Κεντρικής Μακεδονίας) στην οδό Ίωνος Δραγούμη αριθμός 35, Πάικου, Καποδιστρίου και Βαλαωρίτου, οικοδομικό τετράγωνο 144 και στο οποίο υπάρχει κτίριο χαρακτηρισμένο ως διατηρητέο με το από 02-11-1983 προεδρικό διάταγμα (ΦΕΚ 734/Δ/1983), όπως το βαρυνόμενο αυτό ακίνητο φαίνεται περικλεισμένο με τα στοιχεία (Α, Β, Γ, Δ, Α) στο σχετικό πρωτότυπο διάγραμμα σε κλίμακα 1:200 που θεωρήθηκε από τον Προϊστάμενο της Διεύθυνσης Τοπογραφικών Εφαρμογών και Γεωχωρικών Πληροφοριών με την υπ' αριθμόν 20900/27-04-2017 πράξη του και του οποίου αντίτυπο σε φωτοσμίκρυνση δημοσιεύεται με την παρούσα απόφαση.
2. Τα ειδικότερα στοιχεία του βαρυνόμενου ακινήτου και της μεταφοράς συντελεστή δόμησης είναι:
α. Θέση οικοπέδου: Περιφέρεια Κεντρικής Μακεδονίας, Περιφερειακής Ενότητας Θεσσαλονίκης, Δήμος Θεσσαλονίκης, Ίωνος Δραγούμη αριθμός 35, Πάικου, Καποδιστρίου και Βαλαωρίτου, οικοδομικό τετράγωνο 144.
β. Εμβαδόν οικοπέδου: 268,93 m2
γ. Οι όροι δόμησης της περιοχής που βρίσκεται το βαρυνόμενο ακίνητο σύμφωνα με το υπ' αριθμόν 29/8434/ΠΕ/01-03-2007 έγγραφο με το επισυναπτόμενο θεωρημένο τοπογραφικό διάγραμμα από τη Διεύθυνση Πολεοδομίας Θεσσαλονίκης είναι:
Ι. Ισχύων συντελεστής δόμησης: 4,8
II. Ποσοστό επιτρεπόμενης κάλυψης: 60% (νόμος 4067/2012)
δ. Συνολικά καλυπτόμενη επιφάνεια (υπάρχουσα κάλυψη): 268,93 m2
ε. Σύνολο δομημένων επιφανειών (υπάρχουσα δόμηση): 806,790 m2
στ. Μη προσμετρούμενο στο συντελεστή δόμησης υπόγειο προοριζόμενο αποκλειστικά για βοηθητική χρήση: 268,93 m2
ζ. Μεταφερόμενη δομήσιμη επιφάνεια που εγκρίνεται με την παρούσα απόφαση και αντιστοιχεί στο ποσοστό συγκυριότητας του αιτούντος είναι 484,074 Χ 45,495 %=220,229 m2 ορόφων. Η επιφάνεια αυτή αντιστοιχεί σε συντελεστή δόμησης 0,819 που αφαιρείται οριστικώς από το βαρυνόμενο ακίνητο.
