Απόφαση 229976/16

Απόφαση 229976/4220/2016: Τροποποίηση του εγκεκριμένου Ρυμοτομικού Σχεδίου Καλαμάτας στο οικοδομικό τετράγωνο 1190 (Βόρεια Συνοικία)


Συνδεθείτε στην Υπηρεσία Νομοσκόπιο
Είσοδος στην υπηρεσία Νομοσκόπιο.
   
Χρήστης
Κωδικός
  Υπενθύμιση στοιχείων λογαριασμού
   
 
Νέοι χρήστες
Εάν είστε νέος χρήστης, θα πρέπει να δημιουργήσετε ένα ΔΩΡΕΑΝ λογαριασμό προκειμένου να φύγει το παράθυρο αυτό και να αποκτήσετε πλήρη πρόσβαση στην υπηρεσία Νομοσκόπιο.
Δημιουργία νέου λογαριασμού

 

 

Απόφαση 229976/4220/2016: Τροποποίηση του εγκεκριμένου Ρυμοτομικού Σχεδίου Καλαμάτας στο οικοδομικό τετράγωνο 1190 (Βόρεια Συνοικία), (ΦΕΚ 211/ΑΑΠ/2016), 26-10-2016.

 

Ο Περιφερειάρχης Πελοποννήσου

 

Έχοντας υπόψη:

 

1. Το άρθρο 186 του νόμου 3852/2010 (ΦΕΚ 87/Α/2010) Νέα αρχιτεκτονική της Αυτοδιοίκησης και της αποκεντρωμένης Διοίκησης - Πρόγραμμα Καλλικράτης όπως αυτό τροποποιήθηκε και ισχύει σήμερα.

 

2. Το προεδρικό διάταγμα 131/2010 (ΦΕΚ 224/Α/2010) Οργανισμός της Περιφέρειας Πελοποννήσου.

 

3. Τις διατάξεις του από 17-07-1923 νομοθετικού διατάγματος (ΦΕΚ 228/Α/1923), όπως τροποποιήθηκε και ισχύει σήμερα.

 

4. Τις διατάξεις του νόμου 1337/1983 (ΦΕΚ 33/Α/1983), όπως ισχύει σήμερα και των εκτελεστικών αυτού διαταγμάτων.

 

5. Το άρθρο 10 του νόμου 3044/2002 (ΦΕΚ 197/Α/2002), όπως τροποποιήθηκε και ισχύει.

 

6. Τα άρθρα 18 και 19 του από 03-04-1929 προεδρικού διατάγματος περί Γενικού Οικοδομικού Κανονισμού, διατηρηθέντων εν ισχύ.

 

7. Την εγκύκλιο 1/1961 καθώς και το τεύχος του Υπουργείου Περιβάλλοντος, Χωροταξίας και Δημοσίων Έργων εγκύκλιος 55/1988 οδηγίες και προδιαγραφές για τροποποιήσεις και επεκτάσεις σχεδίων πόλεως.

 

8. Την εγκύκλιο 18/2003 Αρμοδιότητες Πολεοδομικού Σχεδιασμού, όπως και την εγκύκλιο 6/2006 Άσκηση αρμοδιοτήτων Πολεοδομικού Σχεδιασμού.

 

9. Τις διατάξεις του Κώδικα Βασικής Πολεοδομικής Νομοθεσίας (ΦΕΚ 580/Δ/1999) και ειδικότερα τα άρθρα 152, 154 και 160.

 

10. Το από 17-06-1905 βασιλικό διάταγμα (ΦΕΚ 102/Α/1905) περί Εγκρίσεως τροποποιήσεως του σχεδίου της πόλεως Καλαμάτας όπως τροποποιήθηκε μέχρι σήμερα.

 

11. Το από 06-10-1986 προεδρικό διάταγμα (ΦΕΚ 1019/Δ/1986) Έγκριση Πολεοδομικής της Ανατολικής, Βόρειας και Κεντρικής περιοχής του Δήμου Καλαμάτας και αναθεώρηση του εγκεκριμένου σχεδίου σε συνεχόμενες περιοχές.

 

12. Την απόφαση Νομάρχη Μεσσηνίας υπ' αριθμόν 2782/658/1989 (ΦΕΚ 248/Δ/1989) που αφορά την έγκριση α) της Πολεοδομικής μελέτης Αναθεώρησης του ρυμοτομικού Σχεδίου του 1905 Καλαμάτας ως και όρων και περιορισμών δόμησης για τις περιοχές Κεντρική (VII) και Νότια (VIII) συνοικία, Ανατολική (V) και Δυτική (VI) παραλία, τμήμα Πολεοδομικής Ενότητας Γιαννιτσάνικα (σχολικό συγκρότημα) και του Ρυμοτομικού σχεδίου των προσφυγικών οικισμών Κορδία και Νικηταρά. β) Τροποποιήσεις τμημάτων του ρυμοτομικού σχεδίου που εγκρίθηκε πρόσφατα με τα (ΦΕΚ 531/Δ/1986) και (ΦΕΚ 1019/Δ/1986) και των όρων και περιορισμών δόμησης με βάση τα νέα δεδομένα που έχουν προκύψει μετά τους σεισμούς Σεπτεμβρίου 1986.

 

13. Την απόφαση Γενικού Γραμματέα Περιφέρειας Πελοποννήσου υπ' αριθμόν 2558/2006 (ΦΕΚ 725/Δ/2006) με την οποία επικυρώθηκε ο καθορισμός οριογραμμών ρέματος Καλαμίτσι.

 

14. Η απόφαση Γενικού Γραμματέα Αποκεντρωμένης Διοίκησης Πελοποννήσου Δυτικής Ελλάδος και Ιονίου υπ' αριθμόν 1015/2011 περί έγκρισης Γενικού Πολεοδομικού Σχεδίου Δήμου Καλαμάτας Νομού Μεσσηνίας (ΦΕΚ 77/ΑΑΠ/2011).

 

15. Το υπ' αριθμόν 6272/03-09-2012 έγγραφο της Διεύθυνσης Πολεοδομίας του Δήμου Καλαμάτας προς την Ειδική Υπηρεσία Δημοσίων Έργων Μελετών - Κατασκευών Έργων Παραχώρησης (Τμήμα Β αυτοκινητόδρομος Κόρινθος - Τρίπολη - Καλαμάτα και κλάδος Λεύκτρο - Σπάρτη).

 

16. Το υπ' αριθμόν οίκοθεν ΕΠΠ/Π2/Φ5.10.Α.1.Α/16396/18-09-2013 έγγραφο της Γενικής Γραμματείας Δημοσίων Έργων, ΕΥΔΕ Μελετών - Κατασκευών Έργων Παραχώρησης Τμήμα Β (αυτοκινητόδρομος Κόρινθος - Τρίπολη Καλαμάτα και κλάδος Λεύκτρο - Σπάρτη) με το οποίο διαβιβάστηκε σχετικός φάκελος στην αρμόδια Υπηρεσία του Δήμου Καλαμάτας με τις αιτούμενες τροποποιήσεις του ρυμοτομικού σχεδίου.

 

17. Την εισήγηση υπ' αριθμόν 62545/14-10-2013 του Τμήματος Πολεοδομικών - Τοπογραφικών Εφαρμογών και Χωροταξίας της Διεύθυνσης Πολεοδομίας του Δήμου Καλαμάτας.

 

18. Την υπ' αριθμόν 67/2013 απόφαση της Επιτροπής Ποιότητας Ζωής του Δήμου Καλαμάτας με την οποία εισηγείται στο Δημοτικό Συμβούλιο υπέρ των τροποποιήσεων του εγκεκριμένου ρυμοτομικού σχεδίου Καλαμάτας που απαιτούνται για την κατασκευή της περιμετρικής οδού.

 

19. Την υπ' αριθμόν 466/2013 ομόφωνη απόφαση του Δημοτικού Συμβουλίου Καλαμάτας με την οποία προτείνονται τροποποιήσεις του εγκεκριμένου ρυμοτομικού σχεδίου Καλαμάτας που απαιτούνται για την κατασκευή της περιμετρικής οδού μεταξύ των άλλων και στο οικοδομικό τετράγωνο 1190 (Βόρειας Συνοικίας) του ρυμοτομικού σχεδίου Καλαμάτας.

 

20. Την 7896/25-10-2013 ανακοίνωση πρόσκληση, το από 29-10-2013 πρακτικό ανάρτησης καθώς και τις δημοσιεύσεις της σχετικής ανακοίνωσης στις 26-12-2013 και 27-10-2013 στη Εφημερίδα ΘΑΡΡΟΣ, στις 26-27 και 28-10-2013 στην εφημερίδα ΕΛΕΥΘΕΡΙΑ και στις 26-10-2013 στην Εφημερίδα ΓΕΝΙΚΗ ΔΗΜΟΠΡΑΣΙΩΝ.

 

21. Τις ενστάσεις που υποβλήθηκαν:

 

α) από 07-11-2013 ένσταση των Βασιλικής Χήρας Φίλιππου Γκιουλαφέντη, Ναυσικάς Φ. Γκιουλαφέντη και Δήμητρας Φ. Γκιουλαφέντη που αφορά την ιδιοκτησία τους στο οικοδομικό τετράγωνο 1315 και

 

β) από 11-11-2013 ένσταση των Αβράμη Ευάγγελου του Ιωάννη και Καρακατσάνη Χρήστου του Νικολάου που είναι ιδιοκτήτες στο οικοδομικό τετράγωνο 1296 που όμως δεν αφορούν την παρούσα τροποποίηση.

 

22. Την απόφαση Δημοτικού Συμβουλίου Καλαμάτας με αριθμό 550/2013 (σε συνέχεια της εισήγησης με αριθμό πρωτοκόλλου 72156/02-12-2013 της Διεύθυνσης Πολεοδομίας του Δήμου Καλαμάτας και της υπ' αριθμόν 85/2013 απόφαση της Επιτροπής Ποιότητας Ζωής) με την οποία προτάθηκε η απόρριψη των ενστάσεων που υποβλήθηκαν αλλά δεν αφορούν την παρούσα τροποποίηση.

 

23. Το έγγραφο με αριθμό πρωτοκόλλου 343/20-01-2014 του Τμήματος Έκδοσης Οικοδομικών αδειών της Διεύθυνσης Πολεοδομίας του Δήμου Καλαμάτας.

 

24. Την με αριθμό πρωτοκόλλου 20076/08-05-2014 εισήγηση της Προϊσταμένης Τμήματος Χωρικού σχεδιασμού της Διεύθυνσης Περιβάλλοντος και Χωρικού Σχεδιασμού Περιφέρειας Πελοποννήσου προς το Συμβούλιο Πολεοδομικών Θεμάτων και Αμφισβητήσεων Περιφερειακής Ενότητας Μεσσηνίας η οποία διαβιβάστηκε με το υπ' αριθμόν πρωτοκόλλου 36177/08-05-2014 έγγραφο.

 

25. Το από Ιούλιο 2014 τοπογραφικό διάγραμμα που συντάχθηκε, ελέγχθηκε και θεωρήθηκε από το Τμήμα ΧΩΠΤΕ της Διεύθυνσης Πολεοδομίας του Δήμου Καλαμάτας σε συνέχεια του εγγράφου μας υπ' αριθμόν οίκοθεν 36873/12-05-2014 με το οποίο επισημάνθηκαν διορθώσεις και ελλείψεις στα αρχικά υποβληθέντα διαγράμματα.

 

26. Το έγγραφο υπ' αριθμόν 42740/25-07-2014 του Τμήματος ΧΩΠΤΕ της Διεύθυνσης Πολεοδομίας του Δήμου Καλαμάτας.

 

27. Την απόφαση 43/29-07-2014 της Επιτροπής Ποιότητας Ζωής του Δήμου Καλαμάτας.

 

28. Την απόφαση Δημοτικού Συμβουλίου Καλαμάτας 336/2014 με την οποία εγκρίθηκε κατά πλειοψηφία η τροποποίηση του Ρυμοτομικού Σχεδίου Καλαμάτας μεταξύ των οποίων και στο οικοδομικό τετράγωνο 1190 (Βόρεια Συνοικία).

 

29. Την με αριθμό πρωτοκόλλου οίκοθεν 7180/14-12-2015 ανακοίνωση - πρόσκληση του Τμήματος ΧΩΠΤΕ της Διεύθυνσης Πολεοδομίας του Δήμου Καλαμάτας καθώς και τις δημοσιεύσεις της σχετικής ανακοίνωσης στις εφημερίδες ΕΛΕΥΘΕΡΙΑ στις 16, 17-12-2015, ΦΩΝΗ στις 16, 17-10-2015 και ΑΥΓΗ στις 16, 17-12-2015.

 

30. Το έγγραφο με αριθμό πρωτοκόλλου οίκοθεν 294/22-01-2016 του Τμήματος ΧΩΠΤΕ της Διεύθυνσης Πολεοδομίας του Δήμου Καλαμάτας με το οποίο μας διαβιβάστηκε ο σχετικός φάκελος και από το οποίο προκύπτει ότι δεν έχουν κατατεθεί ενστάσεις κατά της 336/2014 απόφασης Δημοτικού Συμβουλίου Καλαμάτας.

 

31. Την με αριθμό πρωτοκόλλου 22203/394/08-06-2016 εισήγηση της Προϊσταμένης Τμήματος Χωρικού Σχεδιασμού της Διεύθυνσης Περιβάλλοντος και Χωρικού Σχεδιασμού Περιφέρειας Πελοποννήσου που διαβιβάστηκε στο αρμόδιο Συμβούλιο Πολεοδομικών Θεμάτων και Αμφισβητήσεων Περιφερειακής Ενότητας Μεσσηνίας με το έγγραφο με αριθμό πρωτοκόλλου οίκοθεν 156560/2873/14-06-2016.

 

32. Την ομόφωνα θετική γνωμοδότηση με αριθμό θέματος 16 από το υπ' αριθμόν 1/22-07-2016 πρακτικό του Συμβουλίου Πολεοδομικών Θεμάτων και Αμφισβητήσεων Περιφερειακής Ενότητας Μεσσηνίας που διαβιβάστηκε με το έγγραφο με αριθμό πρωτοκόλλου 44/03-08-2016.

 

Και επειδή:

 

Α. Η προτεινόμενη τροποποίηση του ρυμοτομικού σχεδίου του Δήμου Καλαμάτας είναι επιβεβλημένη από την Υπηρεσία της Γενικής Γραμματείας Δημοσίων Έργων, ΕΥΔΕ Μελετών - Κατασκευών Έργων Παραχώρησης Τμήμα Β (αυτοκινητόδρομος Κόρινθος - Τρίπολη - Καλαμάτα και κλάδος Λεύκτρο - Σπάρτη) η οποία είναι υπεύθυνη για την μελέτη και κατασκευή της περιμετρικής οδού της Καλαμάτας. Σχετικά έχουν εκδοθεί τα με αριθμό πρωτοκόλλου 6352/20-07-2012, 6314/11-07-2012, 6315/11-07-2012 πιστοποιητικά έγκρισης της αναδόχου εταιρίας AECOM LTD.

 

Οι τροποποιήσεις περιλαμβάνουν τον ανασχεδιασμό των Οικοδομικών Γραμμών, Ρυμοτομικών Γραμμών, των ορίων ακαλύπτων κ.λ.π. ώστε να εξασφαλιστεί η λειτουργικότητα και η σωστή πολεοδομική οργάνωση των εκτάσεων που περιλαμβάνουν, μια εκ των οποίων αφορά το Ρυμοτομικό Σχέδιο του Ασπροχώματος και οι υπόλοιπες το Ρυμοτομικό Σχέδιο της Καλαμάτας. Στις περιοχές για τις οποίες έχει κυρωθεί η Πράξη Εφαρμογής μετά την απόφαση Τροποποίησης θα πρέπει να συνταχθεί και κυρωθεί νέα πράξη εφαρμογής.

 

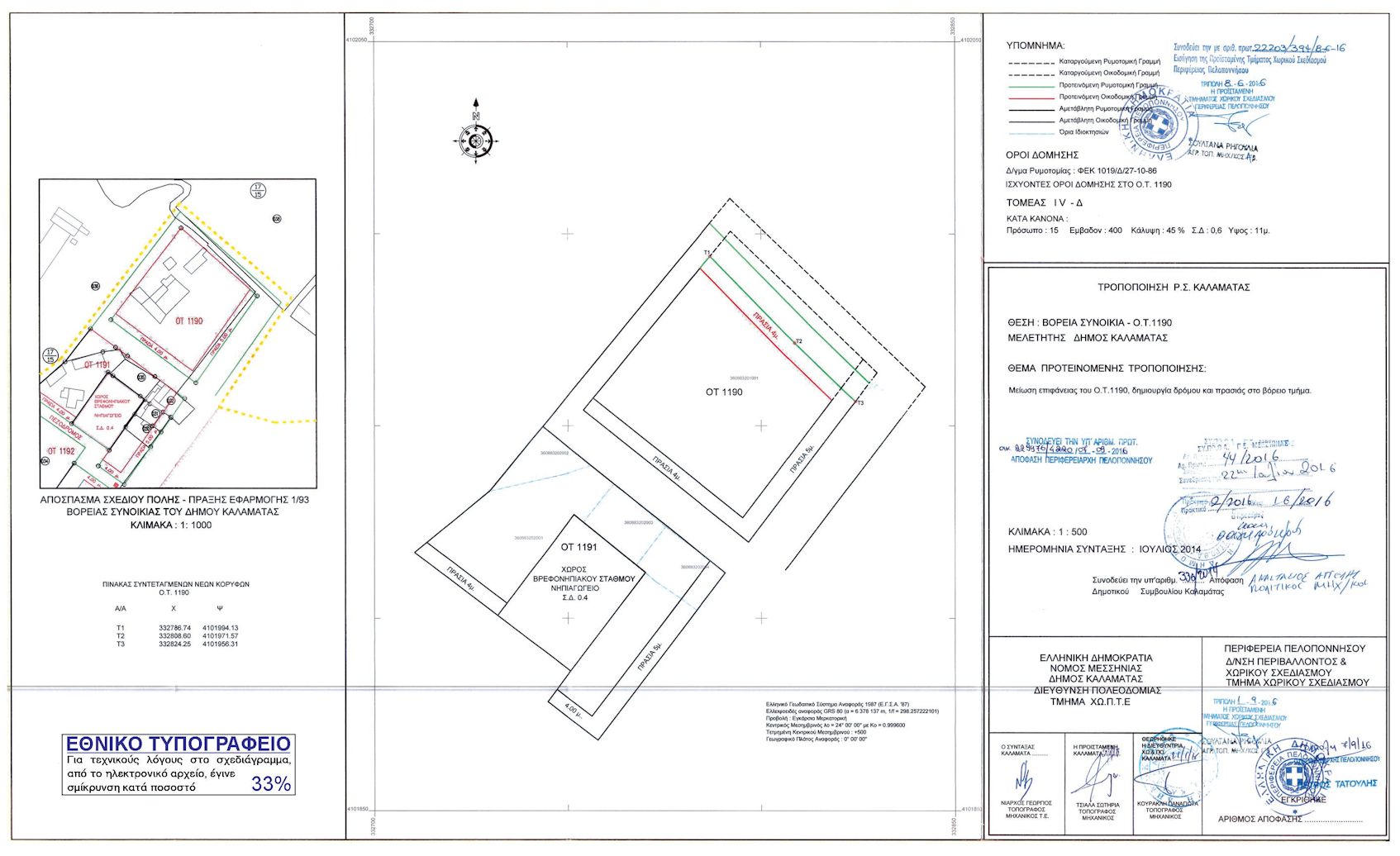
Β1. Η συγκεκριμένη τροποποίηση που αφορά το οικοδομικό τετράγωνο 1190 (Βόρεια Συνοικία) του ρυμοτομικού σχεδίου Καλαμάτας απεικονίζεται στο διάγραμμα κλίμακας 1:500 από Ιούλιο 2014 που συντάχθηκε ελέγχθηκε και θεωρήθηκε από το Τμήμα ΧΩΠΤΕ της Διεύθυνσης Πολεοδομίας του Δήμου Καλαμάτας. Με αυτή προτείνεται η μείωση επιφάνειας του οικοδομικού τετραγώνου 1190, δημιουργία δρόμου και πρασιάς πλάτους 4 m στο βόρειο τμήμα του οικοδομικού τετραγώνου 1190.

 

Β2. Με την τροποποίηση αυτή έχουμε αύξηση του εμβαδού των κοινοχρήστων χώρων.

 

Γ. Για το εν λόγω οικοδομικό τετράγωνο δεν έχουν υποβληθεί ενστάσεις από τους εμπλεκόμενους ιδιοκτήτες.

 

Δ. Η εν λόγω τροποποίηση μπορεί να θεωρηθεί σημειακή και εντοπισμένη και δεν έρχεται σε αντίθεση με το εγκεκριμένο γενικό πολεοδομικό σχέδιο της παραγράφου 14, αποφασίζει:

 

Την τροποποίηση του εγκεκριμένου ρυμοτομικού σχεδίου Καλαμάτας στο οικοδομικό τετράγωνο 1190 (Βόρεια Συνοικία) όπως προκύπτει από το διάγραμμα της τροποποίησης κλίμακας 1:500 από Ιούλιο 2014 που συντάχθηκε ελέγχθηκε και θεωρήθηκε από το Τμήμα ΧΩΠΤΕ της Διεύθυνσης Πολεοδομίας του Δήμου Καλαμάτας, υπογράφεται και συνοδεύει την παρούσα.

 

Η παρούσα απόφαση ισχύει από τη δημοσίευσή της στην Εφημερίδα της Κυβερνήσεως.

 

a.229976.16

 

Η απόφαση αυτή να δημοσιευθεί στην Εφημερίδα της Κυβερνήσεως.

 

Τρίπολη, 07-09-2016

 

Ο Περιφερειάρχης

 



Copyright © 2020 TechnoLogismiki. Με την επιφύλαξη παντός δικαιώματος.