| Συνδεθείτε στην Υπηρεσία Νομοσκόπιο | | | | | Νέοι χρήστες | | Εάν είστε νέος χρήστης, θα πρέπει να δημιουργήσετε ένα ΔΩΡΕΑΝ λογαριασμό προκειμένου να φύγει το παράθυρο αυτό και να αποκτήσετε πλήρη πρόσβαση στην υπηρεσία Νομοσκόπιο. | | Δημιουργία νέου λογαριασμού | | |
Απόφαση 266671/5512/2016: Έγκριση τροποποίησης ρυμοτομικού Σχεδίου Πόλεως Πατρών, στο οικοδομικό τετράγωνο ΚΧ 863 και σε τμήμα προβλεπόμενης ανώνυμης οδού, μετά από βεβαιωτική πράξη άρσης απαλλοτρίωσης, (ΦΕΚ 250/ΑΑΠ/2016), 16-11-2016.
Ο Περιφερειάρχης Δυτικής Ελλάδας
Έχοντας υπόψη:
1. Τις διατάξεις των άρθρων 186 και 283 του νόμου 3852/2010 (ΦΕΚ 87/Α/2010): Νέα Αρχιτεκτονική της Αυτοδιοίκησης και της Αποκεντρωμένης Διοίκησης - Πρόγραμμα Καλλικράτης.
2. Το προεδρικό διάταγμα 132/2010 (ΦΕΚ 225/Α/2010): Οργανισμός της Περιφέρειας Δυτικής Ελλάδας.
3. Το από 17-07-1923 νομοθετικό διάταγμα (ΦΕΚ 228/Α/1923), περί σχεδίων πόλεων, κωμών και συνοικισμών του Κράτους και οικοδομής αυτών.
4. Τις διατάξεις του κεφαλαίου II του από 03-04-1929 προεδρικού διατάγματος, που διατηρήθηκαν σε ισχύ με το άρθρο 31, παράγραφος 3 του νόμου 1577/1985.
5. Το νόμο 1337/1983 (ΦΕΚ 33/Α/1983), όπως τροποποιήθηκε και ισχύει.
6. Τον Κώδικα βασικής πολεοδομικής νομοθεσίας (ΦΕΚ 580/Δ/1999) και ειδικότερα τα άρθρα 152 και 154.
7. Τις διατάξεις του άρθρου 29 του νόμου 2831/2000 (ΦΕΚ 140/Α/2000), όπως αντικαταστάθηκαν με το άρθρο 10 του νόμου 3044/2002 (ΦΕΚ 197/Α/2002).
8. Το νόμο 4030/2011 (ΦΕΚ 249/Α/2011), άρθρα 30 έως 32, όπως τροποποιήθηκε και ισχύει.
9. Το νόμο 4067/2012 Νέος Οικοδομικός Κανονισμός (ΦΕΚ 79/Α/2012) και ειδικότερα τα άρθρα 31 και 32 αυτού, όπως τροποποιήθηκε και ισχύει.
10. Το νόμο 4269/2014 (ΦΕΚ 142/Α/2014) Χωροταξική και πολεοδομική μεταρρύθμιση - Βιώσιμη ανάπτυξη.
11. Το νόμο 4315/2014 (ΦΕΚ 269/Α/2014) Πράξεις εισφοράς σε γη και χρήμα - Ρυμοτομικές απαλλοτριώσεις και άλλες διατάξεις.
12. Τις με αριθμό 1/1961, 8/1975, 43/1980 και 55/1988 Εγκυκλίους σχετικές με θέματα τροποποιήσεως ρυμοτομικών σχεδίων.
13. Τη με αριθμό 10/2012 εγκύκλιο του Υπουργείου Περιβάλλοντος, Ενέργειας και Κλιματικής Αλλαγής.
14. Τη με αριθμό 38525/06-08-2014 εγκύκλιο του Υπουργείου Περιβάλλοντος, Ενέργειας και Κλιματικής Αλλαγής.
15. Τη με αριθμό 52907/2009 απόφαση Υπουργού Περιβάλλοντος, Ενέργειας και Κλιματικής Αλλαγής, σχετική με ειδικές ρυθμίσεις για την εξυπηρέτηση ατόμων με αναπηρία (ΦΕΚ 2621/Β/2009).
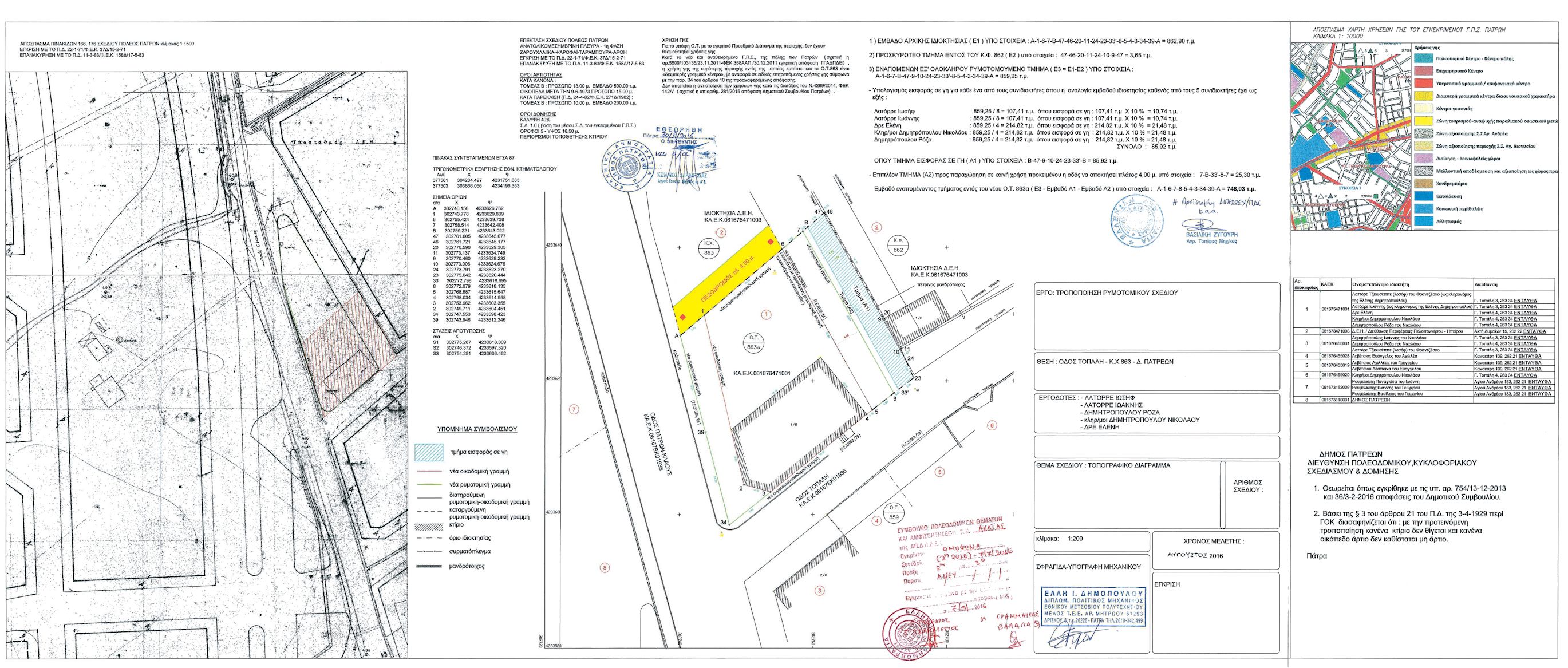
16. Το από [ΠΔ] 22-01-1971 προεδρικό διάταγμα (ΦΕΚ 37/Δ/1971), Περί τροποποιήσεως και επεκτάσεως του ρυμοτομικού σχεδίου Πατρών και καθορισμού των όρων και περιορισμών δομήσεως των οικοπέδων αυτού και την επανέγκριση τροποποιήσεως και επεκτάσεως του ρυμοτομικού σχεδίου Πατρών με το από 11-03-1983 προεδρικό διάταγμα (ΦΕΚ 158/Δ/1983), σε περιοχή όπου εμπίπτει και η αναφερόμενη ιδιοκτησία (ΟΤ/ΚΧ 863) και ρυμοτομείται λόγω δημιουργίας κοινοχρήστου χώρου.
17. Το Γενικό Πολεοδομικό Σχέδιο της Δημοτικής Ενότητας Πατρέων Δήμου Πατρέων Νομού Αχαΐας (ΦΕΚ 358/ΑΑΠ/2011).
18. Τη με αριθμό 680/1990 απόφαση του Μονομελούς Πρωτοδικείου Πατρών, με την οποία καθορίστηκε προσωρινή τιμή μονάδας αποζημίωσης των ρυμοτομούμενων εδαφικών τμημάτων.
19. Τη με αριθμό 15736/2010 (ΦΕΚ 506/ΑΑΠ/2010) απόφαση του Νομάρχη Αχαΐας, με την οποία βεβαιώνεται η άρση της επιβληθείσας απαλλοτρίωσης των ρυμοτομούμενων εδαφικών τμημάτων ιδιοκτησίας Δημητρόπουλου Νικολάου, Δημητροπούλου Ρόζας, Τζουζέππε Λατόρρε, Ιωάννη Λατόρρε και Ελένης Δρε, στο οικοδομικό τετράγωνο 863 της περιοχής 1η Ανατολική/μεσημβρινή φάση επέκτασης του σχεδίου πόλης Πατρών.
20. Τη με αριθμό πρωτοκόλλου Δήμου Πατρέων 95142/19-07-2011 αίτηση των Νικολάου Δημητρόπουλου, Ρόζας Δημητροπούλου, Τζουζέππε Λατόρρε, Ιωάννη Λατόρρε και Ελένης Δρε.
21. Τη με αριθμό 754/13-12-2012 απόφαση Δημοτικού Συμβουλίου Πατρέων, με την οποία αποφασίστηκε κατά πλειοψηφία η έγκριση της τροποποίησης του ρυμοτομικού Σχεδίου Πόλεως σε προβλεπόμενο κοινόχρηστο χώρο πλατείας στο οικοδομικό τετράγωνο/ΚΧ 863 και σε τμήμα προβλεπόμενης ανώνυμης οδού μετά την άρση του, βάσει της υπ' αριθμόν 15736/2010 βεβαιωτικής απόφασης Νομάρχη Αχαΐας άρσης απαλλοτρίωσης, ιδιοκτησίας κληρονόμων Ελένης Δημητροπούλου, Ρόζας Δημητροπούλου, Νικολάου Δημητρόπουλου, Ελένης Δρε που βρίσκεται στην ανωτέρω περιοχή, δια χαρακτηρισμού τμήματος της ιδιοκτησίας τους σε κοινόχρηστο χώρο δρόμου και του εναπομείναντος τμήματος της ιδιοκτησίας σε οικοδομήσιμο χώρο δημιουργώντας ένα νέο οικοδομικό τετράγωνο 863Α, με πρασιά πλάτους 4 m στη δυτική πλευρά του και το οποίο θα διαχωρίζεται με το εναπομείναν τμήμα του οικοδομικού τετραγώνου/ΚΧ 863 με πεζόδρομο πλάτους 3 m, όπως τα ανωτέρω απεικονίζονται από Ιουλίου 2011 τοπογραφικό - ρυμοτομικό διάγραμμα πρότασης τροποποίησης της Διπλωματούχου Πολιτικού Μηχανικού Έλλης Δημοπούλου.
22. Τη με αριθμό 36/03-02-2016 απόφαση Δημοτικού Συμβουλίου Πατρέων, με την οποία αποφασίστηκε ομόφωνα η έγκριση της επικαιροποίησης της υπ' αριθμόν 754/13-12-2012 απόφασης Δημοτικού Συμβουλίου, λόγω παρέλευσης χρόνου μεγαλύτερου των 3 ετών.
23. Το με αριθμό πρωτοκόλλου 204707/Π5411/28-11-2013 έγγραφο του Δήμου Πατρέων, με το οποίο μας διαβιβάστηκε ο φάκελος της υπόθεσης και τα με αριθμό πρωτοκόλλου 27048/Π1665/08-03-2016 και 34000/Π2185/31-03-2016 με συμπληρωματικά στοιχεία.
24. Τη με αριθμό 84267/1830/19-04-2016 εισήγησή μας προς το Συμβούλιο Πολεοδομικών Θεμάτων και Αμφισβητήσεων. Αχαΐας σχετικά με την έγκριση της αιτούμενης τροποποίησης Σχεδίου Πόλεως Πατρών, στο οικοδομικό τετράγωνο / ΚΧ 863 και σε τμήμα προβλεπόμενης ανώνυμης οδού, με παρατηρήσεις και διορθώσεις - συμπληρώσεις επί της προτεινόμενης από το Δήμο τροποποίησης του σχεδίου πόλης.
25. Το με αριθμό πρωτοκόλλου 68/56074/20-04-2016/ΤΤ/10-08-2016 έγγραφο του Συμβουλίου Πολεοδομικών Θεμάτων και Αμφισβητήσεων Περιφερειακής Ενότητας Αχαΐας, με το οποίο μας διαβιβάστηκε Απόσπασμα Πρακτικού της από 07-07-2016 συνεδρίασης του με την ομόφωνη απόφαση του, αξιολογώντας τα χαρακτηριστικά της οικοδομής λόγω παλαιότητας και αρχιτεκτονικών στοιχείων που παρουσιάζει στις όψεις του, για μερική αποδοχή της εισήγησης της ΔΙΠΕΧΩΣΧ/ΠΔΕ ως εξής: ...η οικοδομική γραμμή δυτικά προκύπτει από το σημείο 1 στο σημείο 2. Νότια μετατοπίζεται η οικοδομική γραμμή έτσι ώστε να εφάπτεται στη νότια πλευρά του κτηρίου, ακολουθώντας το περίγραμμα του, ταυτίζοντας την οικοδομική γραμμή με την ρυμοτομική γραμμή από το σημείο 3 έως το σημείο
5. Ανατολικά της ιδιοκτησίας αφήνεται ως εισφορά γης τμήμα Α1 και παραχωρείται από τους ιδιοκτήτες τμήμα Α2 επιφάνειας 25,30 m2 κατά τέτοιο τρόπο ώστε να δημιουργείται δρόμος πλάτους 4 m αντί 3 m. Η οικοδομική γραμμή τίθεται μετά την πρασιά των 4 m. Ο πεζόδρομος βόρεια της ιδιοκτησίας διαμορφώνεται με πλάτος 4 m αντί 3.5 m και οι όροι δόμησης στο ακίνητο θα είναι αυτοί που ισχύουν στην περιοχή (Τομέας Β) βάσει του από [ΠΔ] 22-01-1971 προεδρικού διατάγματος (ΦΕΚ 37/Δ/1971), όπως επανεγκρίθηκε με το από 11-03-1983 προεδρικό διάταγμα (ΦΕΚ 158/Δ/1983).
26. Το με αριθμό πρωτοκόλλου 139675/ΤΤ/07-09-2016 έγγραφο του Συμβουλίου Πολεοδομικών Θεμάτων και Αμφισβητήσεων Περιφερειακής Ενότητας Αχαΐας, με το οποίο μας διαβιβάστηκε θεωρημένο το διάγραμμα τροποποίησης, όπως αποφασίστηκε στη 2η συνεδρίαση του στις 07-07-2016.
27. Το με αριθμό πρωτοκόλλου 229001/4787/09-09-2016 έγγραφο της Υπηρεσίας μας προς το Δήμο Πατρέων για την εκ νέου ανάρτηση του θεωρημένου διαγράμματος τροποποίησης και την ενημέρωση - ατομική κοινοποίηση των θιγόμενων για τυχόν υποβολή ενστάσεων και το με αριθμό 102706/Π7067/14-10-2016 έγγραφο του Δήμου Πατρέων, με το οποίο διαβιβάστηκαν τα αντίστοιχα αποδεικτικά ανάρτησης και επίδοσης.
28. Την από 13-10-2016 βεβαίωση του Διευθυντή Πολεοδομικού - Κυκλοφοριακού Σχεδιασμού και Δόμησης του Δήμου Πατρέων περί μη υποβολής ενστάσεων μετά την εκ νέου τήρηση της διαδικασίας ανάρτησης και ατομικής ειδοποίησης της πρότασης τροποποίησης του ρυμοτομικού σχεδίου.
29. Το γεγονός ότι με την προτεινόμενη τροποποίηση του ρυμοτομικού σχεδίου, δεν προκαλείται δαπάνη σε βάρος του κρατικού προϋπολογισμού και του προϋπολογισμού του Δήμου Πατρέων, αποφασίζουμε:
Την έγκριση της τροποποίησης του ρυμοτομικού σχεδίου πόλεως Πατρών στο οικοδομικό τετράγωνο / ΚΧ 863 και σε τμήμα προβλεπόμενης ανώνυμης οδού, μετά από βεβαιωτική πράξη άρσης απαλλοτρίωσης, δια χαρακτηρισμού εδαφικού τμήματος της ιδιοκτησίας ως κοινόχρηστου χώρου δρόμου και του εναπομείναντος τμήματος της ιδιοκτησίας ως οικοδομήσιμου χώρου, με επιβολή εισφοράς σε γη, δημιουργώντας ένα νέο οικοδομικό τετράγωνο 863Α, με πρασιά στην ανατολική και δυτική πλευρά του και το οποίο θα διαχωρίζεται από το εναπομένον τμήμα του οικοδομικού τετραγώνου / ΚΧ 863 με πεζόδρομο πλάτους 4 m. Οι όροι δόμησης και οι χρήσεις γης του οικοδομήσιμου χώρου θα είναι σύμφωνα με τα ισχύοντα στην περιοχή. Τα ανωτέρω απεικονίζονται στο από Αυγούστου 2016 τοπογραφικό ρυμοτομικό διάγραμμα τροποποίησης σχεδίου πόλης της Διπλωματούχου Πολιτικού Μηχανικού Έλλης Δημοπούλου, θεωρημένο από το Συμβούλιο Πολεοδομικών Θεμάτων και Αμφισβητήσεων Περιφερειακής Ενότητας Αχαΐας στις 07-09-2016.
Η ισχύς της απόφασης αυτής αρχίζει από την ημερομηνία δημοσίευσης της στην Εφημερίδα της Κυβερνήσεως.
Κατά της απόφασης αυτής επιτρέπεται η υποβολή προσφυγής ενώπιον του Γενικού Γραμματέα της οικείας Αποκεντρωμένης Διοίκησης Πελοποννήσου, Δυτικής Ελλάδας και Ιονίου, μόνο για παράβαση νόμου μέσα σε προθεσμία 15 ημερών από τη δημοσίευση της στην Εφημερίδα της Κυβέρνησης (άρθρο 227.1Α του νόμου 3852/2010 (ΦΕΚ 87/Α/2010)).

Η απόφαση αυτή με το συνοδευτικό της διάγραμμα να δημοσιευθεί στην Εφημερίδα της Κυβερνήσεως και να αναρτηθεί στο διαδίκτυο.
Πάτρα, 27-10-2016
Ο Περιφερειάρχης