| Συνδεθείτε στην Υπηρεσία Νομοσκόπιο | | | | | Νέοι χρήστες | | Εάν είστε νέος χρήστης, θα πρέπει να δημιουργήσετε ένα ΔΩΡΕΑΝ λογαριασμό προκειμένου να φύγει το παράθυρο αυτό και να αποκτήσετε πλήρη πρόσβαση στην υπηρεσία Νομοσκόπιο. | | Δημιουργία νέου λογαριασμού | | |
Απόφαση 2949/2017: Καθορισμός συμπληρωματικών ειδικών όρων και περιορισμών δόμησης για το διατηρητέο κτήριο επί της οδού Αποστόλου Παύλου οικοδομικό τετράγωνο 50, του Δήμου Βέροιας, φερόμενο ως ιδιοκτησίας Κακούλη Μάρκου, (ΦΕΚ 195/ΑΑΠ/2017), 05-09-2017.
Η Υφυπουργός Εσωτερικών
Έχοντας υπόψη:
1. Τις διατάξεις:
α) Του νόμου 4067/2012 (ΦΕΚ 79/Α/2012) Νέος Οικοδομικός Κανονισμός και ειδικότερα του άρθρου 6 αυτού, για την Προστασία Αρχιτεκτονικής και Φυσικής Κληρονομιάς.
β) Του προεδρικού διατάγματος 358/1986 (ΦΕΚ 158/Α/1986) Καθορισμός αρμοδιοτήτων Υπουργείου Βόρειας Ελλάδας και ειδικότερα του άρθρου 2 παράγραφος δ (α)α), που αναφέρονται στο χαρακτηρισμό κτιρίων ως διατηρητέων ή οικισμών ή τμημάτων αυτών ως παραδοσιακών.
γ) Του προεδρικού διατάγματος [ΠΔ] 108/2014 (ΦΕΚ 175/Α/2014) Οργανισμός του Υπουργείου Μακεδονίας Θράκης, όπως τροποποιήθηκε με την υπ' αριθμόν 5786/2017 (ΦΕΚ 22/Β/2017) κοινή υπουργική απόφαση περί μεταφοράς και κατανομής αρμοδιοτήτων .... Μακεδονίας Θράκης.
δ) Των προεδρικών διαταγμάτων 24/2015 (ΦΕΚ 20/Α/2015) και 123/2016 (ΦΕΚ 208/Α/2016) περί σύστασης και μετονομασίας υπουργείων.
ε) Το προεδρικό διάταγμα 73/2015 (ΦΕΚ 116/Α/2015) Διορισμός Αντιπροέδρου της Κυβέρνησης, Υπουργών, Αναπληρωτών Υπουργών και Υφυπουργών.
στ) Του προεδρικού διατάγματος 125/2016 (ΦΕΚ 210/Α/2016) Διορισμός Υπουργών, Αναπληρωτών Υπουργών και Υφυπουργών.
2. Της με αριθμό 39324/2016 απόφασης του Πρωθυπουργού και του Υπουργού Εσωτερικών (ΦΕΚ 3959/Β/2016), Ανάθεση αρμοδιοτήτων στην Υφυπουργό Εσωτερικών Μαρία Κόλλια-Τσαρουχά.
3. Της υπ' αριθμόν οίκοθεν 39856/3821/1988 απόφαση Υπουργού Περιβάλλοντος, Χωροταξίας και Δημοσίων Έργων (ΦΕΚ 502/Δ/1988), με την οποία το κτήριο του θέματος έχει χαρακτηριστεί ως διατηρητέο.
4. Της υπ' αριθμόν οίκοθεν 4537/2015 απόφασης της Υφυπουργού Εσωτερικών και Διοικητικής Ανασυγκρότησης Εξουσιοδότηση στον Προϊστάμενο Γενικής Διεύθυνσης και στους Προϊσταμένους των Διευθύνσεων, των Αυτοτελών Τμημάτων και Τμημάτων του πρώην Υπουργείου Μακεδονίας και Θράκης για υπογραφή εγγράφων Με εντολή Υφυπουργού. (ΦΕΚ 2628/Β/2015).
5. Τη θετική γνωμοδότηση του αρμοδίου Συμβουλίου Αρχιτεκτονικής της Περιφερειακής Ενότητας Ημαθίας (πρακτικό 17/10-01-2017, πράξη 2/2017).
6. Την από 17-03-2017 αιτιολογική έκθεση της Διεύθυνσης Περιβάλλοντος και Πολιτισμού του Υπουργείου Εσωτερικών, που αφορά στον καθορισμό συμπληρωματικών ειδικών όρων και περιορισμών δόμησης για το διατηρητέο κτήριο επί της οδού Αποστόλου Παύλου οικοδομικό τετράγωνο 50, του Δήμου Βέροιας.
7. Το με αριθμό πρωτοκόλλου 252/17-03-2017 έγγραφο της Διεύθυνσης Περιβάλλοντος και Πολιτισμού του Υπουργείου Εσωτερικών με το οποίο κοινοποιείται η πιο πάνω αιτιολογική έκθεση στο φερόμενο ιδιοκτήτη.
8. Το γεγονός ότι ο φερόμενος ως ιδιοκτήτης του κτηρίου αποδέχτηκε την από 17-03-2017 αιτιολογική έκθεση της Διεύθυνσης Περιβάλλοντος και Πολιτισμού του Υπουργείου Εσωτερικών, σύμφωνα με το με αριθμό πρωτοκόλλου (ΥΠ.ΕΣ) 1138/28-03-2017 έγγραφό του.
9. Την από 11-07-2017 θετική γνωμοδότηση του Κεντρικού Συμβουλίου Αρχιτεκτονικής Μακεδονίας Θράκης (πρακτικό 1/11-07-2017/θέμα 6°), αποφασίζουμε:
1. Καθορίζουμε συμπληρωματικούς ειδικούς όρους και περιορισμούς δόμησης για το διατηρητέο κτήριο επί της οδού Αποστόλου Παύλου οικοδομικό τετράγωνο 50, του Δήμου Βέροιας, φερόμενο ως ιδιοκτησία του Κακούλη Μάρκου, όπως παρακάτω:
Επιτρέπονται:
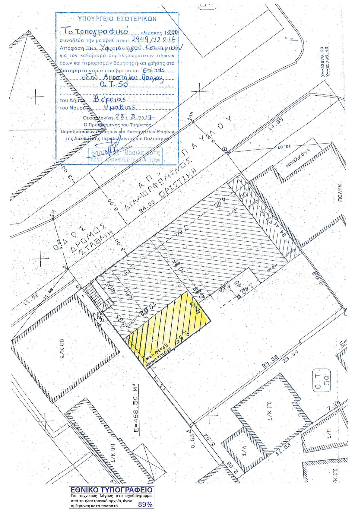
α) προσθήκη δύο ορόφων κατ' επέκταση του διατηρητέου κτηρίου στην βορειοδυτική πλευρά του οικοπέδου (πίσω όψη) και σε επαφή με το υφιστάμενο διατηρητέο για την δημιουργία δύο νέων αιθουσών απασχόλησης νηπίων στο ισόγειο και βρεφών στον όροφο, γενικών διαστάσεων 4,60*10,02 και εμβαδού 45,93 m2
Το νέο κτήριο θα διαφοροποιείται από το διατηρητέο ως προς το τελικό ύψος του με τελική στάθμη στο +6.20 (χαμηλότερο του υφιστάμενου, +6.73) και ως προς στοιχεία της μορφής και του όγκου του, καθώς θα έχει επικάλυψη με δώμα, ώστε να αναδεικνύεται η υπάρχουσα κεραμοσκεπή του υφιστάμενου διατηρητέου κτηρίου, η οποία λόγω του μεγέθους και του σχεδιασμού της αποτελεί ένα ισχυρό αρχιτεκτονικό στοιχείο στη συνολική εικόνα του.
Η τελική επεξεργασία της πρόσοψης του νέου κτηρίου της προσθήκης, θα είναι λιτή χωρίς τις έντονες διακοσμήσεις που παρουσιάζει το υφιστάμενο διατηρητέο, ενώ θα διατηρούνται στοιχεία όπως, οι θέσεις των κουφωμάτων, το υλικό και ο χρωματισμός τους σε αρμονία με αυτά του υφιστάμενου κτηρίου.
β) νέος φέροντας οργανισμός για την προσθήκη δύο ορόφων κατ' επέκταση του διατηρητέου κτηρίου, που δε θα διαταράσσει το στατικό σύστημα του υφιστάμενου διατηρητέου.
2. Μαζί με την παρούσα απόφαση δημοσιεύεται απόσπασμα τοπογραφικού διαγράμματος σε κλίμακα 1:200, το οποίο αποτελεί αναπόσπαστο τμήμα αυτής.
3. Κατά τα λοιπά ισχύουν τα οριζόμενα με την υπ. αριθμ. οίκοθεν 39856/3821/1988 απόφαση Υπουργού Περιβάλλοντος, Χωροταξίας και Δημοσίων Έργων (ΦΕΚ 502/Δ/1988), με την οποία το συγκεκριμένο κτήριο έχει χαρακτηριστεί ως διατηρητέο.
4. Κάλυψη Δαπάνης: Από τις διατάξεις της απόφασης αυτής δεν προκαλείται δαπάνη σε βάρος του κρατικού προϋπολογισμού ή του προϋπολογισμού του οικείου οργανισμού τοπικής αυτοδιοίκησης.
5. Η ισχύς της απόφασης αυτής αρχίζει από τη δημοσίευσή της στην Εφημερίδα της Κυβερνήσεως.

Η απόφαση αυτή να δημοσιευθεί στην Εφημερίδα της Κυβερνήσεως.
Θεσσαλονίκη, 22-08-2017
Η Υφυπουργός