| Συνδεθείτε στην Υπηρεσία Νομοσκόπιο | | | | | Νέοι χρήστες | | Εάν είστε νέος χρήστης, θα πρέπει να δημιουργήσετε ένα ΔΩΡΕΑΝ λογαριασμό προκειμένου να φύγει το παράθυρο αυτό και να αποκτήσετε πλήρη πρόσβαση στην υπηρεσία Νομοσκόπιο. | | Δημιουργία νέου λογαριασμού | | |
Απόφαση 54236/663/2017: Τροποποίηση ρυμοτομικού σχεδίου πόλεως Χαλκίδας στο οικοδομικό τετράγωνο 218 (συνοικία Α), (ΦΕΚ 89/ΑΑΠ/2017), 24-04-2017.
Ο Αντιπεριφερειάρχης Στερεάς Ελλάδας Έχοντας υπόψη:
1. Τις διατάξεις του νόμου 3852/2010 Νέα Αρχιτεκτονική της Αυτοδιοίκησης και της Αποκεντρωμένης Διοίκησης Πρόγραμμα Καλλικράτης.
2. Το προεδρικό διάταγμα 148/2010 (ΦΕΚ 241/Α/2010) Οργανισμός της Περιφέρειας Στερεάς Ελλάδας.
3. Την υπ' αριθμόν (οίκοθεν) 73595/1304/2016 (ΦΕΚ 270/ΥΟΔΔ/2016) απόφαση Περιφερειάρχη Στερεάς Ελλάδας Ορισμός Αντιπεριφερειαρχών στην Περιφέρεια Στερεάς Ελλάδας και ανάθεση άσκησης τομέων αρμοδιοτήτων.
4. Τις διατάξεις του από 17-07-1923 νομοθετικού διατάγματος (ΦΕΚ 228/Α/1923) Περί σχεδίων πόλεων, κωμών και συνοικισμών του Κράτους και οικοδομής αυτών.
5. Τις διατάξεις του άρθρου 21 του από 03-04-1929 προεδρικού διατάγματος, που διατηρήθηκαν σε ισχύ με το άρθρο 31, παράγραφος 3, του νόμου 1557/1985.
6. Τις διατάξεις του νόμου 1337/1983 (ΦΕΚ 33/Α/1983) Επέκταση των πολεοδομικών σχεδίων, οικιστική ανάπτυξη και σχετικές ρυθμίσεις.
7. Τις διατάξεις του νόμου 2508/1997 (ΦΕΚ 124/Α/1997) Βιώσιμη οικιστική ανάπτυξη των πόλεων και οικισμών της χώρας και άλλες διατάξεις.
8. Τις διατάξεις του άρθρου 29 του νόμου 2831/2000 (ΦΕΚ 140/Α/2000), όπως αντικαταστάθηκαν από το άρθρο 10 του νόμου 3044/2002 (ΦΕΚ 197/Α/2002).
9. Τις διατάξεις του νόμου 1577/1985 (ΦΕΚ 210/Α/1985) Γενικός Οικοδομικός Κανονισμός και του νόμου 4067/2012 (ΦΕΚ 79/Α/2012) Νέος Οικοδομικός Κανονισμός, όπως ισχύουν.
10. Τις διατάξεις του νόμου 4315/2014 (ΦΕΚ 269/Α/2014) Πράξεις εισφοράς σε γη και χρήμα -Ρυμοτομικές απαλλοτριώσεις και άλλες διατάξεις.
11. Την υπ' αριθμόν 61760/12080/85/1987 εγκύκλιο (εγκύκλιος 85/1987) Διευκρινίσεις του άρθρου 28 του νόμου 1337/1983.
12. Τις υπ' αριθμόν 1/1961, 8/1975, 43/1980, 55/1988, 18/2003 και 47/2004 εγκυκλίους του Υπουργείου Περιβάλλοντος, Χωροταξίας και Δημοσίων Έργων καθώς και κάθε άλλη σχετική διάταξη.
13. Το από 22-09-1988 προεδρικό διάταγμα (ΦΕΚ 731/Δ/1988) Έγκριση πολεοδομικής μελέτης της συνοικίας Α' Καράμπαμπα Δήμου Χαλκιδέων και της κοινότητας Δροσιάς (νομού Εύβοιας).
14. Την υπ' αριθμόν 159/2016 Απόφαση του Δημοτικού Συμβουλίου Δήμου Χαλκιδέων.
15. Την υπ' αριθμόν οίκοθεν 3997/21-09-2016 βεβαίωση Δημάρχου Χαλκιδέων.
16. Το υπ' αριθμόν 3823/26-09-2016 έγγραφο της Διεύθυνσης Υπηρεσίας Δόμησης Δήμου Χαλκιδέων, με το οποίο μας διαβιβάστηκε σχετικός φάκελος.
17. Το υπ' αριθμόν 4869/22-11-2016 έγγραφο της Διεύθυνσης Υπηρεσίας Δόμησης Δήμου Χαλκιδέων.
18. Το υπ' αριθμόν 12/19-12-2016 (θέμα 8°) πρακτικό του Συμβουλίου Πολεοδομικών θεμάτων και Αμφισβητήσεων Περιφερειακής Ενότητας Ευβοίας.
Και επειδή:
Α. Σύμφωνα με το άρθρο 32 του νόμου 4067/2012 όπως αντικαταστάθηκε με το άρθρο 3 του νόμου 4315/2014:
{Μετά την παρέλευση δεκαπενταετίας από την έγκριση του ρυμοτομικού σχεδίου, με το οποίο επιβλήθηκε για πρώτη φορά η ρυμοτομική απαλλοτρίωση ή δέσμευση του ακινήτου, ή την παρέλευση πενταετίας από την κύρωση της σχετικής πράξης εφαρμογής ή της πράξης αναλογισμού, επέρχεται αυτοδίκαια άρση της απαλλοτρίωσης, εφόσον αιτείται ο ιδιοκτήτης την τροποποίηση εγκεκριμένου ρυμοτομικού σχεδίου, χωρίς να απαιτείται η έκδοση σχετικής διαπιστωτικής απόφασης. Ο ιδιοκτήτης του ακινήτου, εφόσον δεν έχει ασκηθεί αίτηση για τι δικαστικό καθορισμό της αποζημίωσης ή έχει παρέλθει δεκαοκτάμηνο από τη δημοσίευση είτε της απόφασης προσωρινού καθορισμού της αποζημίωσης είτε της απόφασης οριστικού καθορισμού της αποζημίωσης ή δεν έχει καθορισθεί αποζημίωση εξωδίκως, αιτείται προς τον οικείο δήμο ή τον κατά περίπτωση αρμόδιο για την απαλλοτρίωση φορέα, την τροποποίηση του εγκεκριμένου ρυμοτομικού σχεδίου, προκειμένου το ακίνητο να καταστεί οικοδομήσιμο. Επιπλέον, Επιτρέπεται η μείωση (κοινοχρήστων ή κοινωφελών χώρων) όταν η τροποποίηση γίνεται λόγω άρσης αναγκαστικής απαλλοτρίωσης, η οποία: α)α... β)β) είτε έχει αρθεί αυτοδικαίως μετά την παρέλευση δεκαπενταετίας από την έγκριση του ρυμοτομικού σχεδίου, με το οποίο επιβλήθηκε για πρώτη φορά η ρυμοτομική απαλλοτρίωση ή δέσμευση του ακινήτου, ...}
Β. Με την υπ' αριθμόν 159/2016 απόφαση του Δημοτικού Συμβουλίου Δήμου Χαλκιδέων αποφασίστηκε η έγκριση της τροποποίησης ρυμοτομικού σχεδίου μετά από αυτοδίκαιη άρση ρυμοτομικής απαλλοτρίωσης της ιδιοκτησίας των Σοφίας Αφράτη, Ευαγγελίας Αφράτη, Δημήτρη Μποτσάκη και Δέσποινας Παπά στο οικοδομικό τετράγωνο 218 συνοικία Α' Χαλκίδας. Η προαναφερθείσα απόφαση δημοσιεύτηκε σε δύο συνεχόμενα φύλλα των εφημερίδων Ευβοϊκός Τύπος και Καθημερινή ΕΥΒΟΙΑ.
Γ. Κατά της υπ' αριθμόν 159/2016 απόφασης του Δημοτικού Συμβουλίου Δήμου Χαλκιδέων δεν υποβλήθηκαν ενστάσεις.
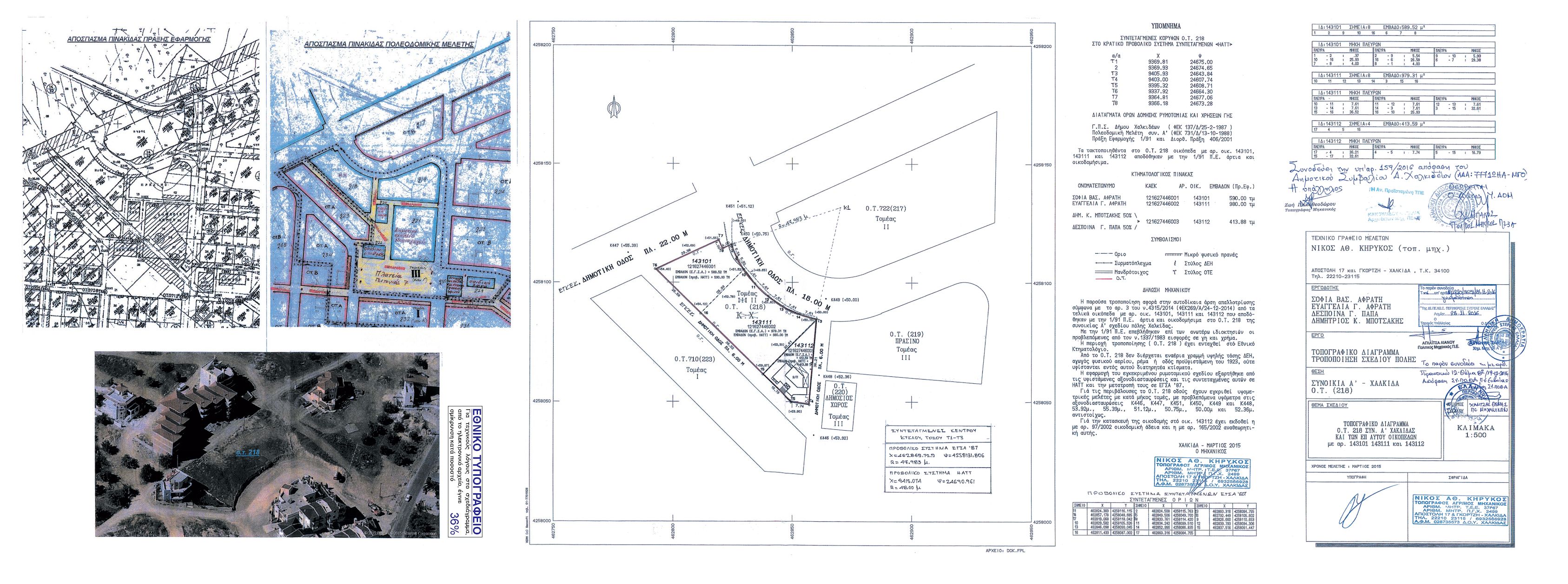
Δ. Η πρόταση της τροποποίησης του εγκεκριμένου ρυμοτομικού σχεδίου Χαλκίδας στο οικοδομικό τετράγωνο 218 στη συνοικία Α' αφορά στην αλλαγή χρήσης αυτού από κοινόχρηστο σε οικοδομήσιμο, προκειμένου οι θιγόμενες ιδιοκτησίες με ΚΑΚ 143101, 143111 και 143112 να καταστούν οικοδομήσιμες, επειδή έως σήμερα δεν έχουν αποζημιωθεί λόγω ρυμοτομίας.
Συγκεκριμένα, με το από 22-09-1988 προεδρικό διάταγμα (ΦΕΚ 731/Δ/1988) εγκρίθηκε η πολεοδομική μελέτη της συνοικίας Α' Καράμπαμπας Δήμου Χαλκιδέων, σύμφωνα με την οποία το οικοδομικό τετράγωνο 218 εμπίπτει εντός των ορίων του τομέα χρήσεων κοινωφελών λειτουργιών (Τομέας III), όπου όλα τα οικοδομικά τετράγωνα περιβάλλονται από πράσινη ρυμοτομική γραμμή και χαρακτηρίζεται ως κοινόχρηστος.
Περαιτέρω, στην υπ' αριθμόν 1/1991 πράξης εφαρμογής της συνοικίας Α' Χαλκίδας, η οποία κυρώθηκε με την υπ' αριθμόν 8032/01-11-1991 απόφαση Νομάρχη Εύβοιας, συμπεριλήφθηκε λανθασμένα το οικοδομικό τετράγωνο 218 και οι αρχικές ιδιοκτησίες με ΚΑΚ 143101, 143111 και 143112, επί των οποίων εδράζεται το οικοδομικό τετράγωνο 218, τακτοποιήθηκαν εντός αυτού ως εξής:
α) Η ιδιοκτησία της Σοφίας Αφράτη του Βασιλείου με ΚΑΚ 143101 έχει τελικό εμβαδόν 590 m2
β) Η ιδιοκτησία της Ευαγγελίας Αφράτη του Γεωργίου με ΚΑΚ 143111 έχει τελικό εμβαδόν 980 m2
γ) Η ιδιοκτησία των Δημητρίου Μποτσάκη και Δέσποινας Παπά με ΚΑΚ 143112 έχει τελικό εμβαδόν 413,88 m2 (406/2001 Διορθωτική Πράξη Εφαρμογής).
Εντός της ιδιοκτησίας με ΚΑΚ 143112 έχει ανεγερθεί οικοδομή σε συνέχεια της έκδοσης της υπ' αριθμόν 97/2002 οικοδομικής άδειας, η οποία εκδόθηκε με όρους δόμησης του τομέα II (αμιγής κατοικία) και δεν έχει ανακληθεί.
Με το υπ' αριθμόν 4869/22-11-2016 έγγραφο της Διεύθυνσης Υπηρεσίας Δόμησης Δήμου Χαλκιδέων προτείνεται η ένταξη του οικοδομικού τετραγώνου 218 στον τομέα II (αμιγής κατοικία) με τους όρους δόμησης αυτού όπως έχουν καθοριστεί με το από 22-09-1988 προεδρικό διάταγμα (ΦΕΚ 731/Δ/1988).
Ε. Σύμφωνα με το άρθρο 32 του νόμου 4067/2012 όπως αντικαταστάθηκε με το άρθρο 3 του νόμου 4315/2014, Σε περίπτωση τροποποίησης ρυμοτομικού σχεδίου που εγκρίθηκε με τις διατάξεις του νόμου 1337/1983 προκειμένου το ακίνητο να καταστεί οικοδομήσιμο, επιβάλλεται εισφορά σε χρήμα κατά τις διατάξεις του άρθρου 9 του νόμου 1337/1983 και δεν επιβάλλεται εκ νέου εισφορά σε γη. Ωστόσο, η εισφορά σε χρήμα των ανωτέρω ιδιοκτησιών έχει ήδη επιβληθεί με την υπ' αριθμόν 1/1991 πράξης εφαρμογής.
ΣΤ. Το Συμβούλιο Πολεοδομικών θεμάτων και Αμφισβητήσεων Περιφερειακής Ενότητας Ευβοίας, με το υπ' αριθμόν 12/19-12-2016 (θέμα 8ο) πρακτικό του, γνωμοδότησε ομόφωνα υπέρ της έγκρισης της προτεινόμενης τροποποίησης.
Ζ. Η υπ' όψιν τροποποίηση είναι σημειακή - εντοπισμένη, δεν εμπίπτει στις εξαιρέσεις του άρθρου 186.II.ΣΤ.39 του νόμου 3852/2010 (ΦΕΚ 87/Α/2010) και συνεπώς είναι αρμοδιότητα της Περιφέρειας, αποφασίζουμε:
Εγκρίνουμε την τροποποίηση του ρυμοτομικού σχεδίου πόλεως Χαλκίδας στο οικοδομικό τετράγωνο 218 (συνοικία Α') μετά από αυτοδίκαιη άρση ρυμοτομικής απαλλοτρίωσης της ιδιοκτησίας των Σοφίας Αφράτη, Ευαγγελίας Αφράτη, Δημήτρη Μποτσάκη και Δέσποινας Παπά και την ένταξη του στον τομέα II (αμιγής κατοικία) με τους όρους δόμησης αυτού, όπως έχουν καθοριστεί με το από 22-09-1988 προεδρικό διάταγμα (ΦΕΚ 731/Δ/1988).

Η απόφαση αυτή να δημοσιευθεί στην Εφημερίδα της Κυβερνήσεως.
Λαμία, 04-04-2017
Ο Αντιπεριφερειάρχης