Απόφαση 6987/12

Απόφαση 6987/2012: Καθορισμός συμπληρωματικών όρων και περιορισμών δόμησης στο οικόπεδο και στο διατηρητέο κτίριο που βρίσκεται επί της οδού Βασιλέως Παύλου 21 - 23 του εγκεκριμένου ρυμοτομικού σχεδίου του Δήμου Φιλοθέης - Ψυχικού (νομού Αττικής)


Συνδεθείτε στην Υπηρεσία Νομοσκόπιο
Είσοδος στην υπηρεσία Νομοσκόπιο.
   
Χρήστης
Κωδικός
  Υπενθύμιση στοιχείων λογαριασμού
   
 
Νέοι χρήστες
Εάν είστε νέος χρήστης, θα πρέπει να δημιουργήσετε ένα ΔΩΡΕΑΝ λογαριασμό προκειμένου να φύγει το παράθυρο αυτό και να αποκτήσετε πλήρη πρόσβαση στην υπηρεσία Νομοσκόπιο.
Δημιουργία νέου λογαριασμού

 

 

Απόφαση 6987/2012: Καθορισμός συμπληρωματικών όρων και περιορισμών δόμησης στο οικόπεδο και στο διατηρητέο κτίριο που βρίσκεται επί της οδού Βασιλέως Παύλου 21 - 23 του εγκεκριμένου ρυμοτομικού σχεδίου του Δήμου Φιλοθέης - Ψυχικού (νομού Αττικής), (ΦΕΚ 57/ΑΑΠ/2012), 24-02-2012.

 

Ο Αναπληρωτής Υπουργός Περιβάλλοντος, Ενέργειας και Κλιματικής Αλλαγής

 

Έχοντας υπόψη:

 

1. Τις διατάξεις του άρθρου 4 παράγραφος 2 του νόμου 1577/1985 Γενικός Οικοδομικός Κανονισμός (ΦΕΚ 210/Α/1985), όπως αντικαταστάθηκε με το άρθρο 3 του νόμου 2831/2000 Τροποποίηση των διατάξεων του νόμου 1577/1985 Γενικός Οικοδομικός Κανονισμός και άλλες πολεοδομικές διατάξεις (ΦΕΚ 140/Α/2000) και ισχύει.

 

2. Τις διατάξεις του άρθρου 90 του Κώδικα Νομοθεσίας για την Κυβέρνηση και τα κυβερνητικά όργανα που κυρώθηκε με το άρθρο πρώτο του προεδρικού διατάγματος 63/2005 (ΦΕΚ 98/Α/2005).

 

3. Την υπ' αριθμόν Υ14/2011 απόφαση Πρωθυπουργού Καθορισμός αρμοδιοτήτων του Αναπληρωτή Υπουργού Περιβάλλοντος, Ενέργειας και Κλιματικής Αλλαγής Νικολάου Σηφουνάκη (ΦΕΚ 2740/Β/2011),

 

4. Το υπ' αριθμόν οίκοθεν 19588/11/21-6-2011 έγγραφο της Διεύθυνσης Πολεοδομίας -Τμήμα Επιτροπής Πολεοδομικού και Αρχιτεκτονικού Ελέγχου του Τομέα Ανατολικού Αθήνας - Δήμος Αγίας Παρασκευής.

 

5. Το υπ' αριθμόν 31843/19-07-2011 έγγραφο της Διεύθυνσης Οικοδομικών και Κτιριοδομικών Κανονισμών - Τμήμα Μεταφοράς Συντελεστή Δόμησης του Υπουργείου Περιβάλλοντος, Ενέργειας και Κλιματικής Αλλαγής.

 

6. Την από 23-11-2011 αιτιολογική έκθεση της Διεύθυνσης Πολεοδομικού Σχεδιασμού - Τμήμα Παραδοσιακών Οικισμών του Υπουργείου Περιβάλλοντος, Ενέργειας και Κλιματικής Αλλαγής.

 

7. Την από 06-12-2011 σύμφωνη γνώμη του φερόμενου ιδιοκτήτη του κτιρίου, Ιωάννη Λιβέρη (αριθμός Υπουργείου Περιβάλλοντος, Ενέργειας και Κλιματικής Αλλαγής 54904/08-12-2011).

 

8. Το γεγονός ότι από τις κανονιστικές διατάξεις αυτής της απόφασης δεν προκαλείται δαπάνη σε βάρος του κρατικού προϋπολογισμού και του προϋπολογισμού του οικείου οργανισμού τοπικής αυτοδιοίκησης, αποφασίζουμε:

 

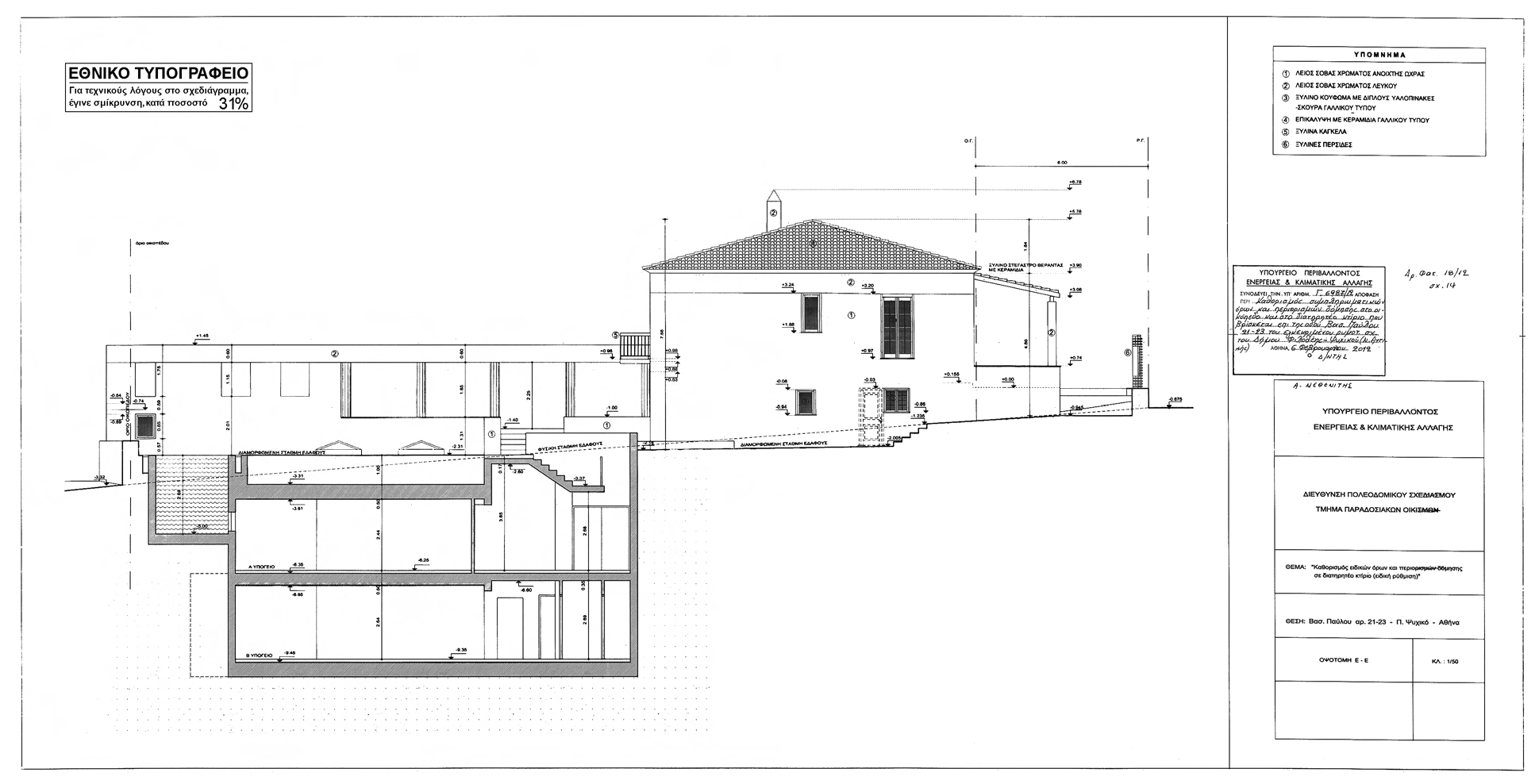
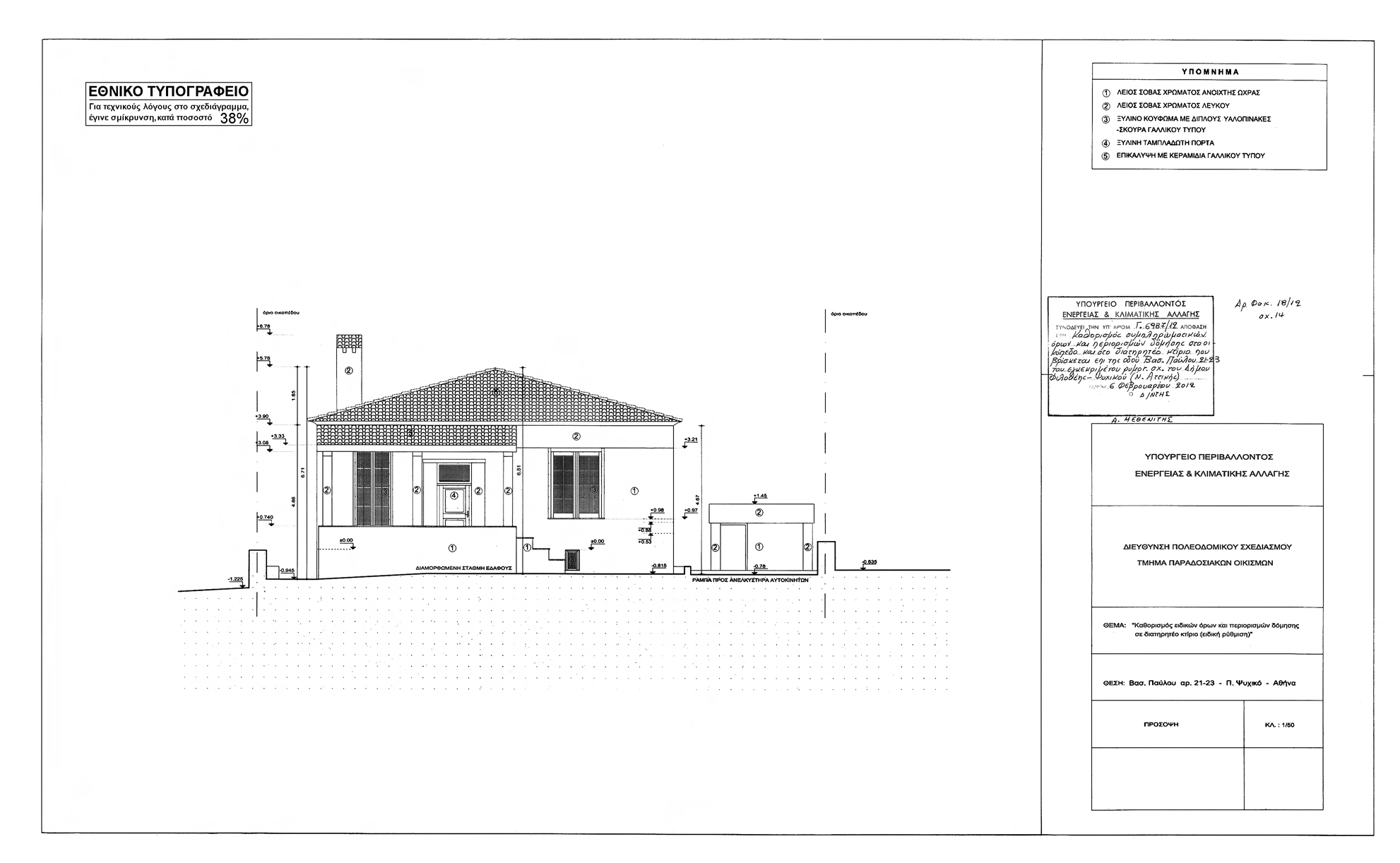
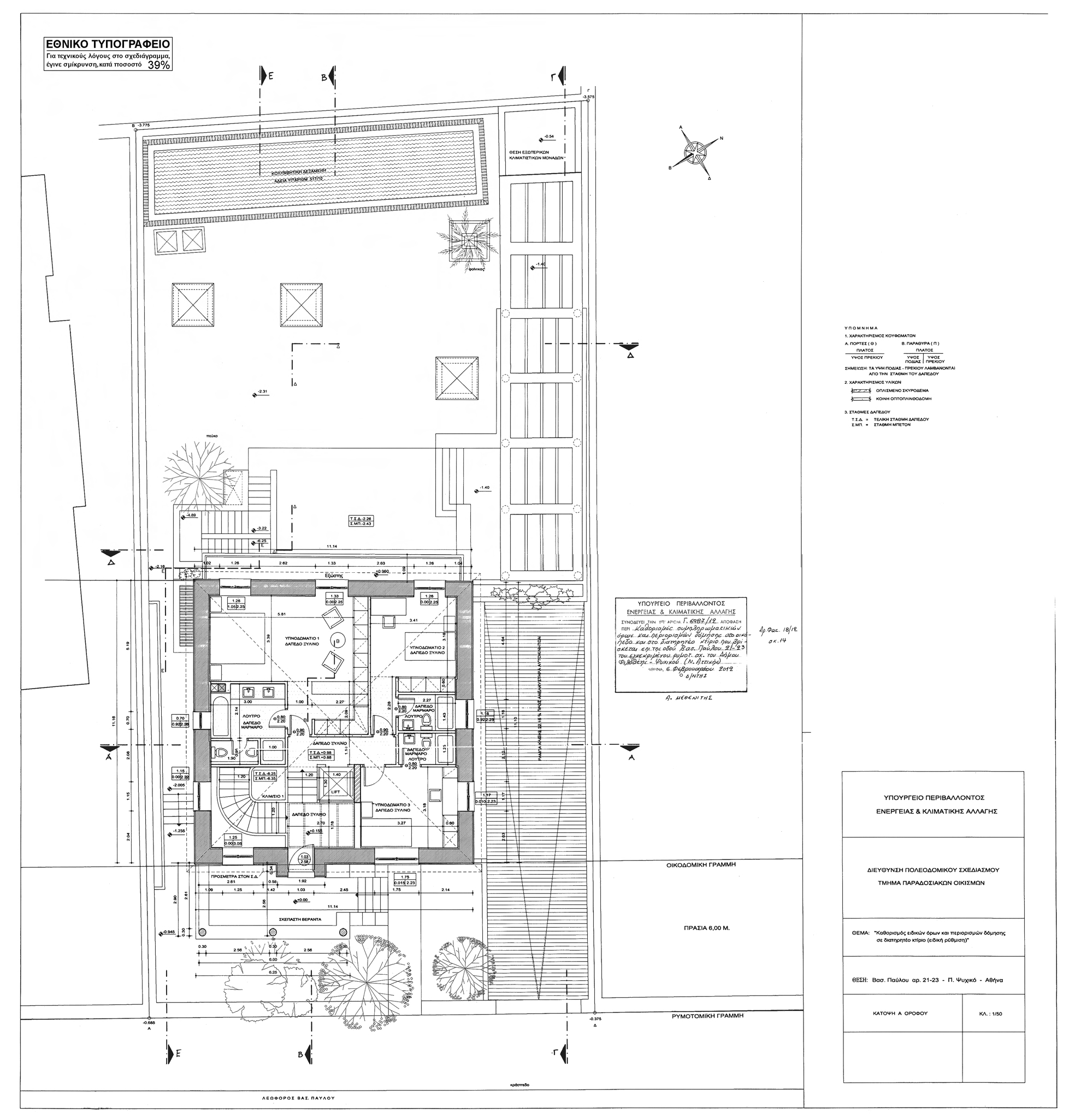
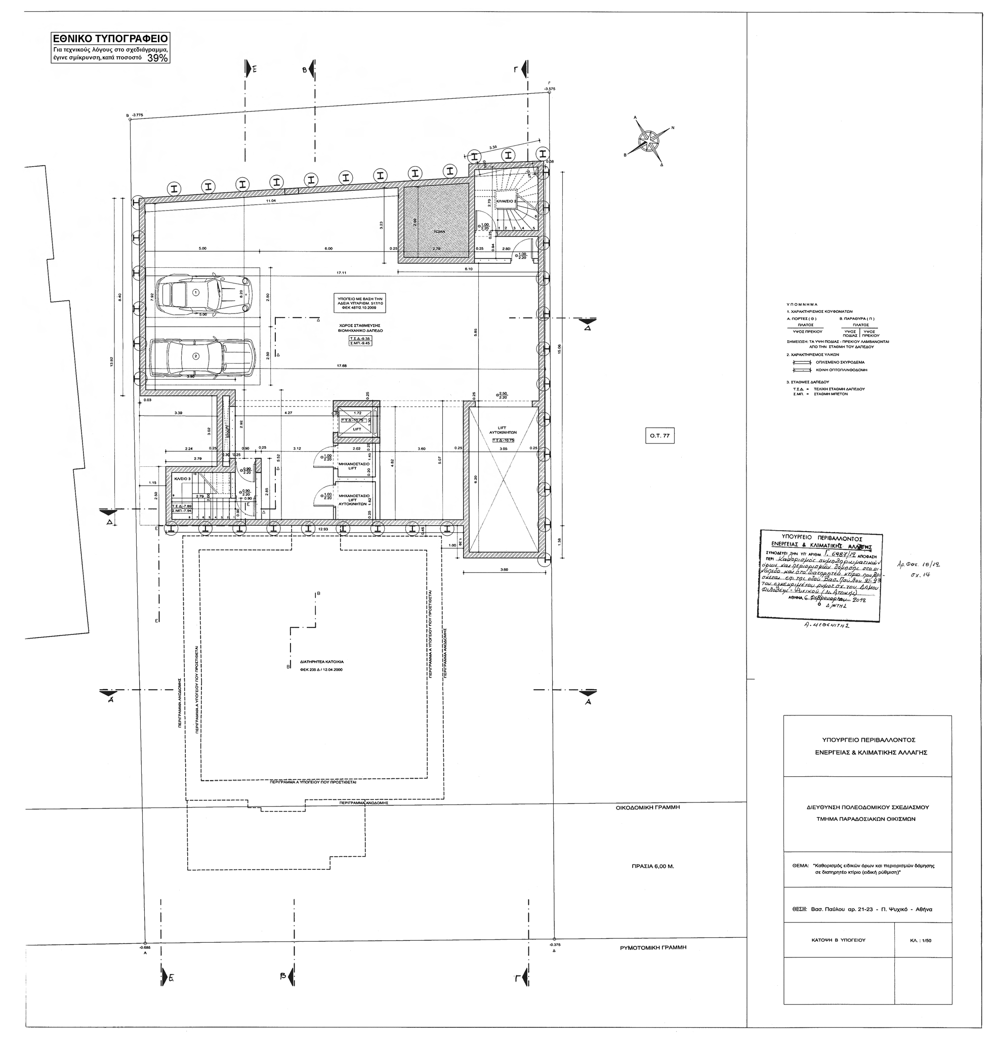
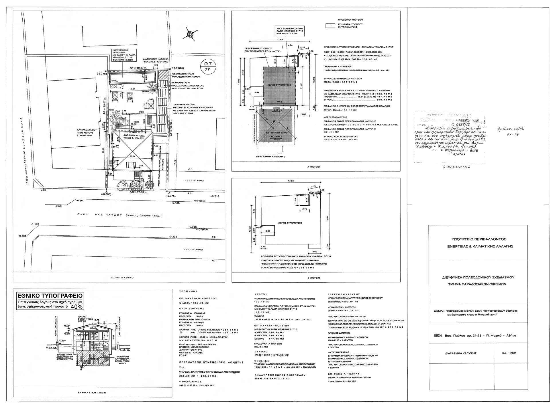
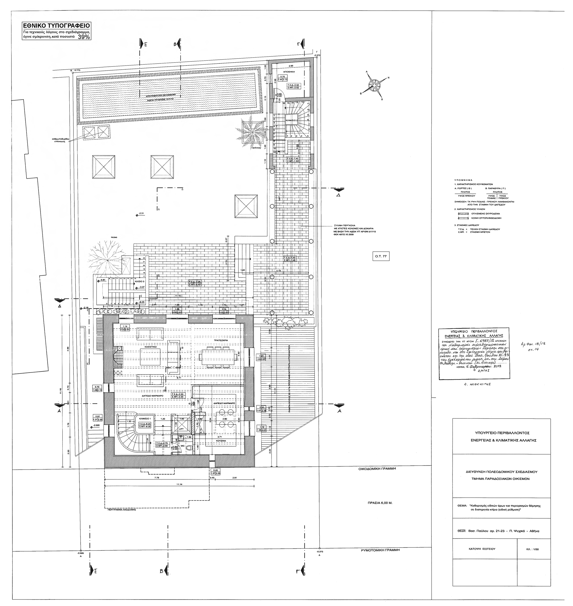
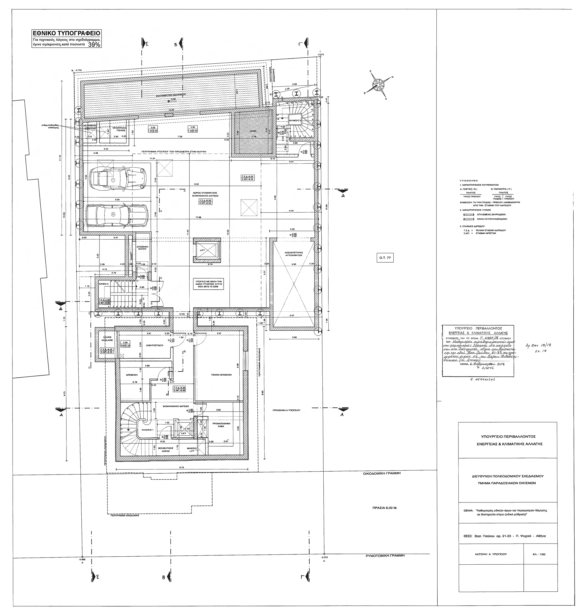
Α. Στο κτίριο που βρίσκεται επί της οδού Βασιλέως Παύλου 21 - 23 εντός του εγκεκριμένου ρυμοτομικού σχεδίου του Δήμου Φιλοθέης - Ψυχικού (νομού Αττικής), το οποίο έχει χαρακτηρισθεί διατηρητέο με την υπ' αριθμόν 9566/1839/2000 απόφαση του Υπουργού Περιβάλλοντος, Χωροταξίας και Δημοσίων Έργων (ΦΕΚ 235/Δ/2000) καθώς και στο οικόπεδο αυτού, στο οποίο έχουν καθοριστεί ειδικοί όροι και περιορισμοί δόμησης με την υπ' αριθμόν 38976/2009 απόφαση του Υφυπουργού Περιβάλλοντος, Χωροταξίας και Δημοσίων Έργων (ΦΕΚ 487/Δ/2009), επιτρέπονται:

 

1. Η κατασκευή νέου φέροντα οργανισμού στο εσωτερικό του διατηρητέου κτιρίου, με αναδιαρρύθμιση των χώρων του.

 

2. Η κατασκευή υπόγειου χώρου εντός του περιγράμματος του διατηρητέου κτιρίου από οπλισμένο σκυρόδεμα και η λειτουργική ενοποίηση του με το υπόγειο Α' (κάτω από τον ακάλυπτο χώρο).

 

3. Η κατασκευή για λειτουργικούς λόγους πλάκας περιορισμένων διαστάσεων εντός της στέγης του διατηρητέου κτιρίου (στη στάθμη +3,76).

 

4. Η κατασκευή ανελκυστήρων στο διατηρητέο κτίριο και στους υπόγειους χώρους στάθμευσης αυτού και η αλλαγή διαρρύθμισης των υπογείων χώρων.

 

5. Η αλλαγή της στάθμης του Α' υπογείου από (-6,00) σε (-6,25), της στάθμης του Β' υπογείου από (-9,10) σε (-9,35) και της στάθμης του πυθμένα της κολυμβητικής δεξαμενής από (-4,20) σε (-5,00).

 

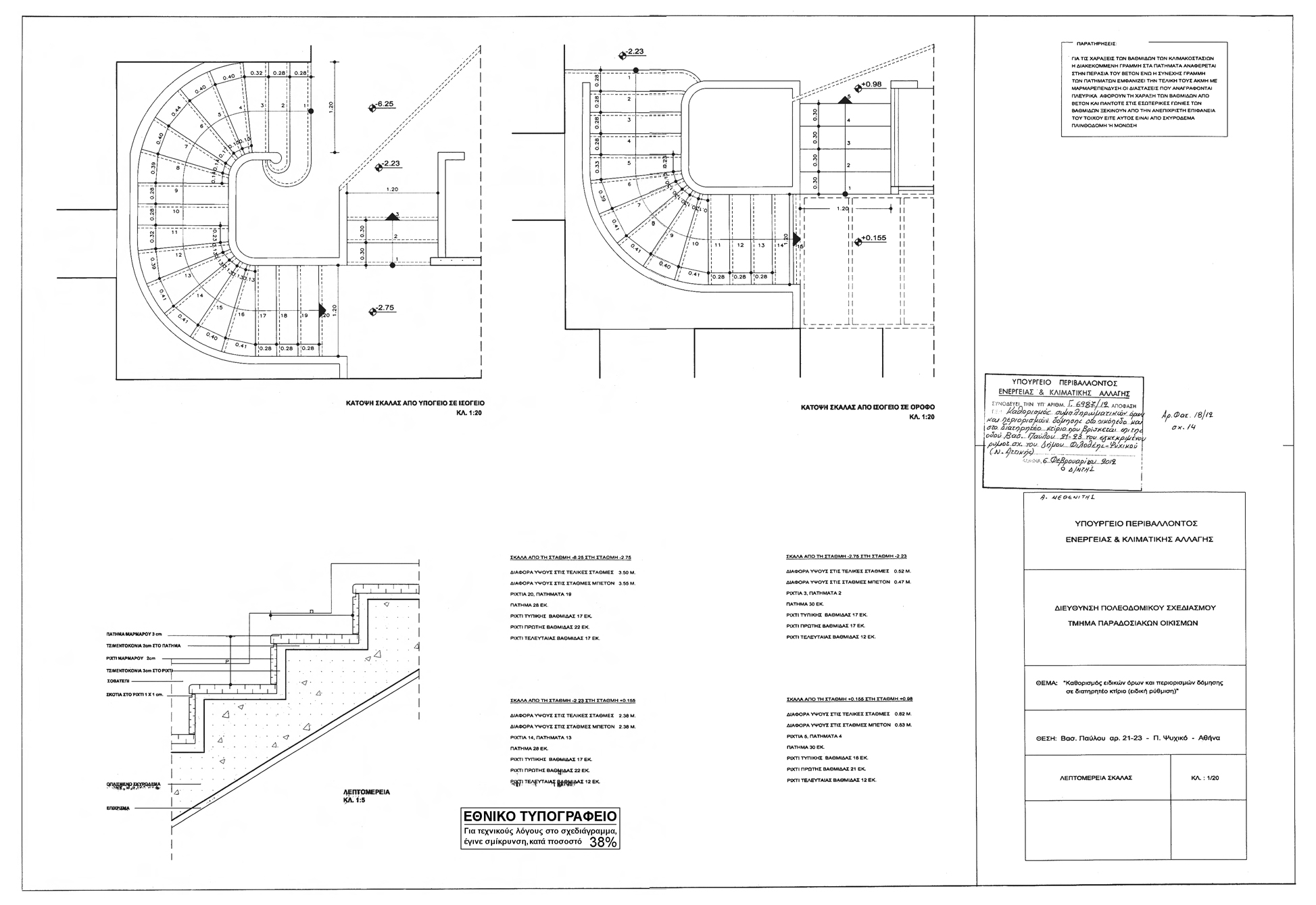
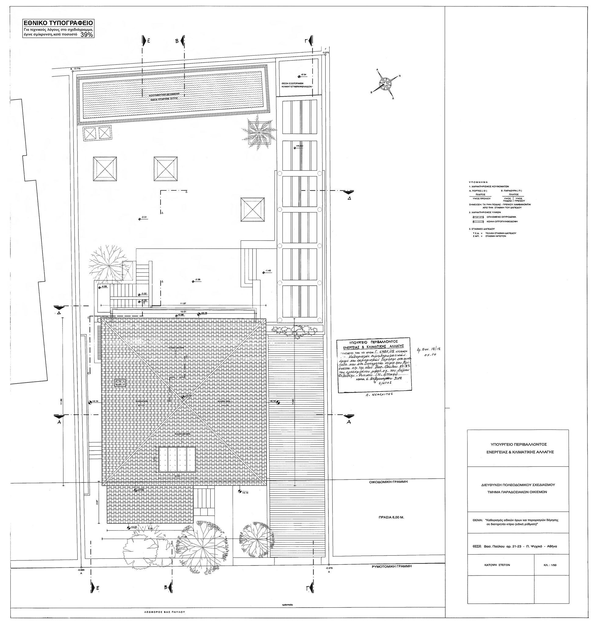
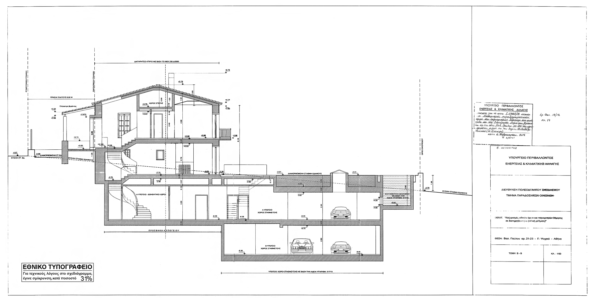
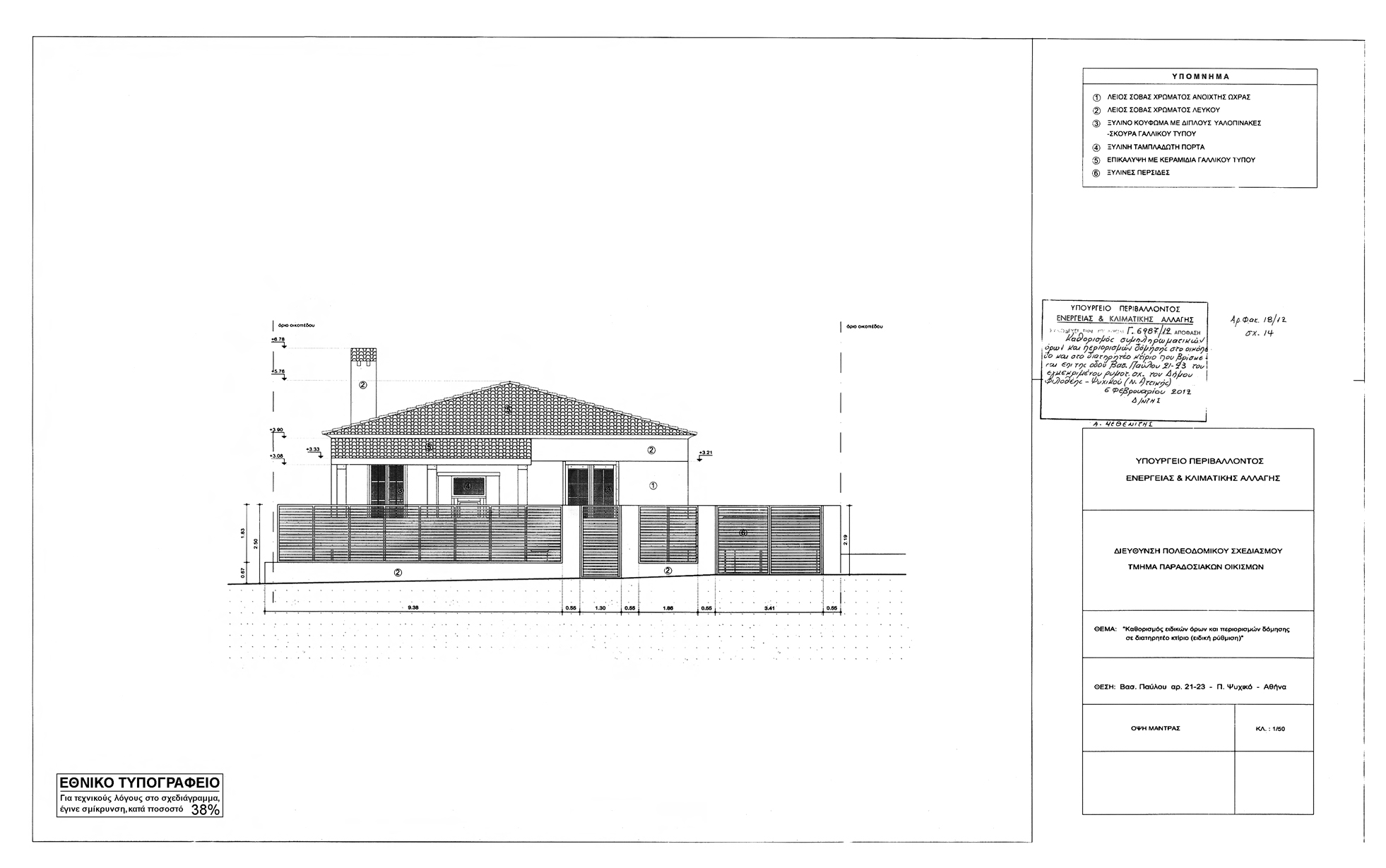
Β. Όλες οι εργασίες κατασκευής προσθήκης και οι λοιπές οικοδομικές εργασίες στο διατηρητέο κτίριο και στον ακάλυπτο χώρο του εν λόγω οικοπέδου γίνονται σύμφωνα με τους ισχύουσες πολεοδομικές διατάξεις και την υποβληθείσα αρχιτεκτονική μελέτη και τεχνική έκθεση που εγκρίθηκαν από την αρμόδια Επιτροπή Πολεοδομικού και Αρχιτεκτονικού Ελέγχου της Διεύθυνσης Πολεοδομίας Ανατολικού Τομέα Αθήνας - Δήμος Αγίας Παρασκευής με το υπ' αριθμόν 13/14-06-2011 Πρακτικό της και φαίνονται στα 14 σχετικό πρωτότυπα διαγράμματα (διάγραμμα κάλυψης σε κλίμακα 1:200, κατόψεις - τομές - όψεις σε κλίμακα 1:50 και σχέδιο λεπτομερειών σε κλίμακα 1:20), που θεωρήθηκαν από τον Προϊστάμενο της Διεύθυνσης Τοπογραφικών Εφαρμογών με την υπ' αριθμόν 6987/2012 πράξη του και που αντίτυπα τους σε φωτοσμίκρυνση δημοσιεύονται με τη παρούσα απόφαση.

 

Γ. Κατά τα λοιπά εξακολουθούν να ισχύουν τα οριζόμενα με τις διατάξεις της υπ' αριθμόν [Α] 9566/1839/2000 απόφασης του Υπουργού Περιβάλλοντος, Χωροταξίας και Δημοσίων Έργων (ΦΕΚ 235/Δ/2000), με την οποία το κτίριο χαρακτηρίσθηκε διατηρητέο ως και της υπ' αριθμόν [Α] 38976/2009 απόφασης του Υφυπουργού Περιβάλλοντος, Χωροταξίας και Δημοσίων Έργων (ΦΕΚ 487/Δ/2009), με την οποία καθορίστηκαν ειδικοί όροι και περιορισμοί δόμησης στο οικόπεδο αυτού, πλην των περιπτώσεων που ορίζονται διαφορετικά με την παρούσα.

 

a.6987.12.1

a.6987.12.2

a.6987.12.3

a.6987.12.4

a.6987.12.5

a.6987.12.6

a.6987.12.7

a.6987.12.8

a.6987.12.9

a.6987.12.10

a.6987.12.11

a.6987.12.12

a.6987.12.13

a.6987.12.14

 

Δ. Η ισχύς της παρούσας απόφασης αρχίζει από τη δημοσίευση της στην Εφημερίδα της Κυβερνήσεως.

 

Η απόφαση αυτή να δημοσιευθεί στην Εφημερίδα της Κυβερνήσεως.

 

Αθήνα, 06-02-2012

 

Ο Αναπληρωτής Υπουργός

 



Copyright © 2017 TechnoLogismiki. Με την επιφύλαξη παντός δικαιώματος.