Απόφαση 70833/16

Απόφαση 70833/2162/2016: Τροποποίηση του εγκεκριμένου ρυμοτομικού σχεδίου πόλεως Ιωαννίνων περιοχής Αμπελοκήπων στη διεύρυνση των οδών μεταξύ των οικοδομικών τετραγώνων 285-286-289-291-292


Συνδεθείτε στην Υπηρεσία Νομοσκόπιο
Είσοδος στην υπηρεσία Νομοσκόπιο.
   
Χρήστης
Κωδικός
  Υπενθύμιση στοιχείων λογαριασμού
   
 
Νέοι χρήστες
Εάν είστε νέος χρήστης, θα πρέπει να δημιουργήσετε ένα ΔΩΡΕΑΝ λογαριασμό προκειμένου να φύγει το παράθυρο αυτό και να αποκτήσετε πλήρη πρόσβαση στην υπηρεσία Νομοσκόπιο.
Δημιουργία νέου λογαριασμού

 

 

Απόφαση 70833/2162/2016: Τροποποίηση του εγκεκριμένου ρυμοτομικού σχεδίου πόλεως Ιωαννίνων περιοχής Αμπελοκήπων στη διεύρυνση των οδών μεταξύ των οικοδομικών τετραγώνων 285-286-289-291-292, (ΦΕΚ 42/ΑΑΠ/2016), 17-03-2016.

 

Ο Περιφερειάρχης Ηπείρου

 

Έχοντας υπόψη:

 

1. Τις διατάξεις των άρθρων 152, 154 και 160, του Κώδικα Βασικής Πολεοδομικής Νομοθεσίας που κυρώθηκε με το άρθρο πρώτο του από 14-07-1999 προεδρικού διατάγματος (ΦΕΚ 580/Δ/1999).

 

2. Τις διατάξεις του άρθρου 29 του νόμου 2831/2000 (ΦΕΚ 140/Α/2000), όπως αντικαταστάθηκαν από το άρθρο 10 του νόμου 3044/2002 (ΦΕΚ 197/Α/2002).

 

3. Τις διατάξεις του άρθρου 31 του νόμου 4067/2012 Νέος Οικοδομικός Κανονισμός (ΦΕΚ 79/Α/2012).

 

4. Τις διατάξεις των άρθρων 30 και 31 του νόμου 4030/2011 Νέος τρόπος έκδοσης αδειών δόμησης, ελέγχου κατασκευών και λοιπές διατάξεις (ΦΕΚ 249/Α/2011).

 

5. Τις διατάξεις του νόμου 3852/2010 για τη Νέα Αρχιτεκτονική της Αυτοδιοίκησης και της Αποκεντρωμένης Διοίκησης - Πρόγραμμα Καλλικράτης (ΦΕΚ 87/Α/2010) και συγκεκριμένα το άρθρο 186, παράγραφος ΣΤ, στοιχείο 39 αυτού.

 

6. Το προεδρικό διάταγμα 140/2010 (ΦΕΚ 233/Α/2010) Οργανισμός της Περιφέρειας Ηπείρου.

 

7. Την υπ' αριθμόν 71877/3169/1986 (ΦΕΚ 58/Δ/1987) απόφαση Υπουργού Περιβάλλοντος, Χωροταξίας και Δημοσίων Έργων περί εγκρίσεως γενικού πολεοδομικού σχεδίου (ΓΠΣ) Ιωαννίνων, όπως τροποποιήθηκε και ισχύει.

 

8. Το από 04-10-1989 προεδρικό διάταγμα (ΦΕΚ 618/Δ/1989) περί έγκρισης πολεοδομικής περιοχής Καλλιθέα - Αγία Τριάδα Δήμου Ιωαννιτών, όπως αυτό τροποποιήθηκε και ισχύει σήμερα.

 

9. Η υπ' αριθμόν 27148/1316/2012 (ΦΕΚ 497/ΥΟΔΔ/2013) απόφαση Γενικού Γραμματέα Αποκεντρωμένης Διοίκησης Ηπείρου Δυτικής Μακεδονίας περί συγκρότησης Συμβουλίου Πολεοδομικών θεμάτων και Αμφισβητήσεων Περιφερειακής Ενότητας Ιωαννίνων Περιφέρειας Ηπείρου, όπως τροποποιήθηκε και ισχύει.

 

10. Την υπ' αριθμόν 579/2014 απόφαση Δημοτικού Συμβουλίου Δήμου Ιωαννιτών, με την οποία ομόφωνα γνωμοδοτεί υπέρ της τροποποίησης.

 

11. Την υπ' αριθμόν 5841/111/2014 εισήγηση της Διεύθυνσης Περιβάλλοντος και Χωρικού Σχεδιασμού Περιφέρειας Ηπείρου προς το Συμβούλιο Πολεοδομικών θεμάτων και Αμφισβητήσεων Περιφερειακής Ενότητας Ιωαννίνων.

 

12. Το Πρακτικό της 4ης Συνεδρίασης/2015 του Συμβουλίου Πολεοδομικών Θεμάτων και Αμφισβητήσεων Περιφερειακής Ενότητας Ιωαννίνων (θέμα 8ο/ΕΗΔ) σύμφωνα με το οποίο γνωμοδοτεί ομόφωνα υπέρ της τροποποίησης.

 

13. Το γεγονός ότι από τις κανονιστικές διατάξεις του παρόντος διατάγματος δεν προκαλείται δαπάνη σε βάρος του κρατικού προϋπολογισμού και του προϋπολογισμού του οικείου οργανισμού τοπικής αυτοδιοίκησης.

 

14. Το γεγονός ότι η ως άνω τροποποίηση έχει σημειακό - εντοπισμένο χαρακτήρα, δεν μειώνει τους κοινόχρηστους και κοινωφελείς χώρους και δεν εμπίπτει σε ζώνη πεντακοσίων μέτρων από την ακτή, σε παραδοσιακό οικισμό, σε τοπίο ιδιαιτέρου φυσικού κάλλους, σε αρχαιολογικό χώρο, σε δάση και δασικές εκτάσεις και σε περιοχές προστατευόμενες βάσει διεθνών συνθηκών ή βάσει των άρθρων 18 και 19 του νόμου 1650/1986 (ΦΕΚ 160/Α/1986), όπως ισχύει, αποφασίζουμε:

 

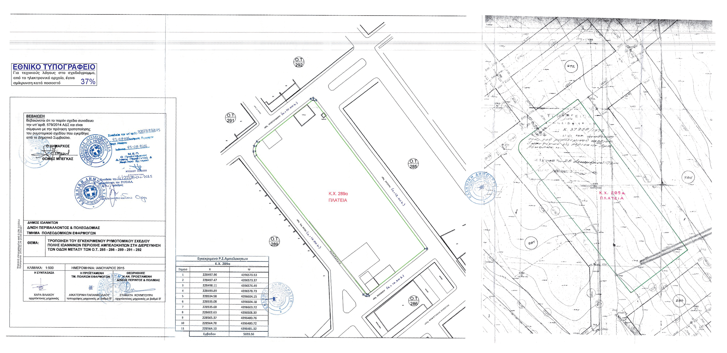
Την τροποποίηση του εγκεκριμένου ρυμοτομικού σχεδίου πόλεως Ιωαννίνων, περιοχής Αμπελοκήπων, στη διεύρυνση των οδών μεταξύ των οικοδομικών τετραγώνων 285 - 286 - 289 - 291 - 292, και το χαρακτηρισμό του χώρου ως κοινόχρηστος χώρος - πλατεία (ΚΧ 289Α), όπως φαίνονται στο θεωρημένο αρμοδίως συνημμένο σχέδιο κλίμακας 1:500.

 

Η απόφαση αυτή να δημοσιευθεί στην Εφημερίδα της Κυβερνήσεως.

 

a.70833.16

 

Ιωάννινα, 23-02-2016

 

Ο Περιφερειάρχης

 



Copyright © 2017 TechnoLogismiki. Με την επιφύλαξη παντός δικαιώματος.