| Συνδεθείτε στην Υπηρεσία Νομοσκόπιο | | | | | Νέοι χρήστες | | Εάν είστε νέος χρήστης, θα πρέπει να δημιουργήσετε ένα ΔΩΡΕΑΝ λογαριασμό προκειμένου να φύγει το παράθυρο αυτό και να αποκτήσετε πλήρη πρόσβαση στην υπηρεσία Νομοσκόπιο. | | Δημιουργία νέου λογαριασμού | | |
Απόφαση 79453/2644/2016: Τροποποίηση του εγκεκριμένου ρυμοτομικού σχεδίου οικισμού Παραποτάμου Δήμου Ηγουμενίτσας νομού Θεσπρωτίας, με την διάνοιξη εντός του οικοδομικού τετραγώνου-96 πεζόδρομου κυμαινόμενου πλάτους (4,75 m - 4,00 m), (ΦΕΚ 234/ΑΑΠ/2016), 04-11-2016.
Ο Περιφερειάρχης Ηπείρου
Έχοντας υπόψη:
Ο Περιφερειάρχης Ηπείρου
Έχοντας υπόψη:
1. Τις διατάξεις των άρθρων 152 (παράγραφοι 1, 2, 6 και 10), 154, 160, 161 (παράγραφος 1), 248, 249 και 250 του Κώδικα Βασικής Πολεοδομικής Νομοθεσίας που κυρώθηκε με το άρθρο πρώτο του από 14-07-1999 προεδρικού διατάγματος (ΦΕΚ 580/Δ/1999), όπως τα άρθρα 248, 249 και 250 τροποποιήθηκαν με τα άρθρα 5, 6 και 7 αντίστοιχα του νόμου 2831/2000 Τροποποίηση των διατάξεων του 1577/1985 Γενικός Οικοδομικός Κανονισμός και άλλες πολεοδομικές διατάξεις (ΦΕΚ 140/Α/2000).
2. Τις διατάξεις του άρθρου 31 του νόμου 4067/2012 (ΦΕΚ 79/Α/2012) Νέος Οικοδομικός Κανονισμός.
3. Τις διατάξεις των άρθρων 30 και 31 του νόμου 4030/2011 Νέος τρόπος έκδοσης αδειών δόμησης, ελέγχου κατασκευών και λοιπές διατάξεις (ΦΕΚ 249/Α/2011).
4. Τις διατάξεις του νόμου 3852/2010 για τη Νέα Αρχιτεκτονική της Αυτοδιοίκησης και της Αποκεντρωμένης Διοίκησης - Πρόγραμμα Καλλικράτης (ΦΕΚ 87/Α/2010) και συγκεκριμένα το άρθρο 186, παράγραφος ΣΤ, στοιχείο 39 αυτού.
5. Το προεδρικό διάταγμα 140/2010 (ΦΕΚ 233/Α/2010) Οργανισμός της Περιφέρειας Ηπείρου.
6. Την πολεοδομική μελέτη του οικισμού Παραποτάμου Δήμου Ηγουμενίτσας όπως εγκρίθηκε με την υπ' αριθμόν 3148/1444/1996 απόφαση Νομάρχη Θεσπρωτίας (ΦΕΚ 936/Δ/1996), και όπως αναθεωρήθηκε μερικώς με την 1917/2001 απόφαση Γενικού Γραμματέα Περιφέρειας Ηπείρου (ΦΕΚ 681/Δ/2001) και ισχύει.
7. Τα κτηματογραφικά διαγράμματα της υπ' αριθμόν 1/2008 πράξη εφαρμογής όπως αυτά διορθώθηκαν και συμπληρώθηκαν μετά την επεξεργασία των δηλώσεων ιδιοκτησίας.
8. Την υπ' αριθμόν 4831/19-09-2008 απόφαση Νομάρχη Θεσπρωτίας με την οποία κυρώθηκε η υπ' αριθμόν 1/2008 πράξη εφαρμογής του εγκεκριμένου ρυμοτομικού σχεδίου οικισμού Παραποτάμου Δήμου Ηγουμενίτσας.
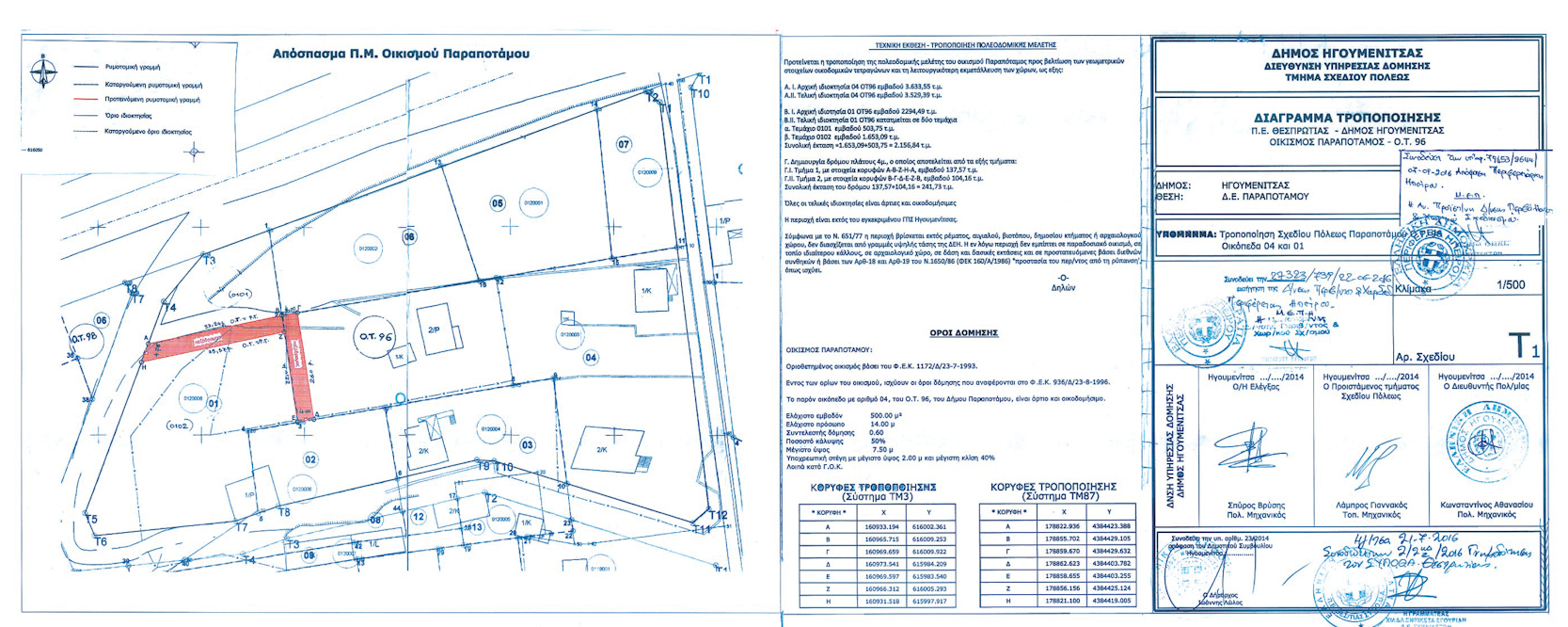
9. Την υπ' αριθμόν 296/2014 απόφαση Δημοτικού Συμβουλίου Δήμου Ηγουμενίτσας περί της έγκρισης της υπ' αριθμόν 27/2014 απόφασης - εισήγησης της Επιτροπής Ποιότητας Ζωής, όπου αποφασίζει κατά πλειοψηφία την τροποποίηση του εγκεκριμένου σχεδίου οικισμού Παραποτάμου Δήμου Ηγουμενίτσας Νομού Θεσπρωτίας, με την διάνοιξη εντός του οικοδομικού τετραγώνου 96, πεζόδρομου κυμαινόμενου πλάτους (4,75 m - 4,00 m).
10. Την υπ' αριθμόν 27323/739/22-06-2016 εισήγηση της Διεύθυνσης Περιβάλλοντος και Χωρικού Σχεδιασμού Περιφέρειας Ηπείρου προς το Συμβούλιο Πολεοδομικών Θεμάτων και Αμφισβητήσεων Περιφερειακής Ενότητας Θεσπρωτίας.
11. Το πρακτικό της 2ης Συνεδρίασης/21-07-2016 του Συμβουλίου Πολεοδομικών Θεμάτων και Αμφισβητήσεων Περιφερειακής Ενότητας Θεσπρωτίας (θέμα 2°/ΗΔ) σύμφωνα με το οποίο γνωμοδοτεί ομόφωνα υπέρ της τροποποίησης.
12. Το γεγονός ότι η εν τω θέματι τροποποίηση έχει σημειακό - εντοπισμένο χαρακτήρα ενώ με την διάνοιξη εντός του οικοδομικού τετραγώνου 96 του εγκεκριμένου ρυμοτομικού σχεδίου οικισμού Παραποτάμου πεζόδρομου κυμαινόμενου πλάτους από 4,75 m έως 4,00 m και συνολικού εμβαδού 241,73 m2, έκτασης αφαιρούμενης αποκλειστικά από τα οικόπεδα υπ' αριθμούς 01 και 04, δεν μεταβάλλεται το ισοζύγιο των κοινοχρήστων χώρων της περιοχής. Επίσης δεν αντίκειται στις διατάξεις των εγκυκλίων 55/1988, παράγραφος 4 και 18/2003, παράγραφος VII, του Υπουργείου Περιβάλλοντος, Ενέργειας και Κλιματικής Αλλαγής, ενώ αποβλέπει σε κοινή ωφέλεια, βελτιώνει τις πολεοδομικές συνθήκες της περιοχής, διευκολύνοντας αυτές που επιβάλλονται από τον ισχύοντα Νέο Οικοδομικό Κανονισμό, ενώ επιτυγχάνεται η βελτίωση των γεωμετρικών στοιχείων των οικοδομικών τετραγώνων και λειτουργικότερης εκμετάλλευσης των κοινοχρήστων χώρων.
13. Επιπλέον η εν λόγω περιοχή δεν εμπίπτει σε ζώνη πεντακοσίων μέτρων από την ακτή, σε παραδοσιακό οικισμό, σε τοπίο ιδιαιτέρου φυσικού κάλλους, σε αρχαιολογικό χώρο, σε δάση και δασικές εκτάσεις και σε περιοχές προστατευόμενες βάσει διεθνών συνθηκών ή βάσει των άρθρων 18 και 19 του νόμου 1650/1986 (ΦΕΚ 160/Α/1986), όπως ισχύει, αποφασίζουμε:
Την τροποποίηση του εγκεκριμένου ρυμοτομικού σχεδίου οικισμού Παραποτάμου Δήμου Ηγουμενίτσας Νομού Θεσπρωτίας, με την διάνοιξη εντός του οικοδομικού τετραγώνου 96 πεζόδρομου κυμαινόμενου πλάτους (4,75 m έως 4,00 m) και συνολικού εμβαδού 241,73 m2, όπως φαίνεται κατάλληλα χρωματισμένο, στο θεωρημένο αρμοδίως από το Δήμο Ηγουμενίτσας συνημμένο σχέδιο κλίμακας 1:500.
Με τις κανονιστικές διατάξεις της απόφασης αυτής δεν προκαλείται δαπάνη σε βάρος του Δημοσίου ή του οικείου οργανισμού τοπικής αυτοδιοίκησης.

Η απόφαση αυτή να δημοσιευθεί στην Εφημερίδα της Κυβερνήσεως.
Ιωάννινα, 07-09-2016
Ο Περιφερειάρχης