| Συνδεθείτε στην Υπηρεσία Νομοσκόπιο | | | | | Νέοι χρήστες | | Εάν είστε νέος χρήστης, θα πρέπει να δημιουργήσετε ένα ΔΩΡΕΑΝ λογαριασμό προκειμένου να φύγει το παράθυρο αυτό και να αποκτήσετε πλήρη πρόσβαση στην υπηρεσία Νομοσκόπιο. | | Δημιουργία νέου λογαριασμού | | |
Απόφαση 84725/14/2015: Τροποποίηση Ρυμοτομικού Σχεδίου με άρση Ρυμοτομικής Απαλλοτρίωσης στο οικοδομικό τετράγωνο 351 του ρυμοτομικού σχεδίου Λουτρακίου - Περαχώρας - Αγίων Θεοδώρων σε συμμόρφωση προς την υπ' αριθμόν 124/2013 απόφαση Τριμελούς Διοικητικού Πρωτοδικείου Κορίνθου, (ΦΕΚ 55/ΑΑΠ/2015), 24-03-2015.
Ο Περιφερειάρχης Πελοποννήσου
Έχοντας υπόψη:
1. Το άρθρο 186 του νόμου 3852/2010 (ΦΕΚ 87/Α/2010) Νέα αρχιτεκτονική της Αυτοδιοίκησης και της αποκεντρωμένης Διοίκησης - Πρόγραμμα Καλλικράτης όπως αυτό τροποποιήθηκε και ισχύει σήμερα.
2. Το προεδρικό διάταγμα 131/2010 (ΦΕΚ 224/Α/2010) Οργανισμός της Περιφέρειας Πελοποννήσου.
3. Τις διατάξεις του από 17-07-1923 νομοθετικού διατάγματος (ΦΕΚ 228/Α/1923), όπως τροποποιήθηκε και ισχύει σήμερα.
4. Τα άρθρα 18 και 19 του από 03-04-1929 προεδρικού διατάγματος περί Γενικού Οικοδομικού Κανονισμού, διατηρηθέντων εν ισχύ.
5. Τις διατάξεις του από 07-05-1936 βασιλικού διατάγματος (ΦΕΚ 205/Α/1936), όπως τροποποιήθηκε και ισχύει σήμερα περί εκτελέσεως της παραγράφου 3 του άρθρου 6 του νόμου 5269/1931.
6. Τις διατάξεις του νομοθετικού διατάγματος 690/1948 (ΦΕΚ 193/Α/1949) περί συμπληρώσεως των διατάξεων περί σχεδίων πόλεως.
7. Τον αναγκαστικό νόμο 625/1968 περί συμπληρώσεως και τροποποιήσεως των γενικών περί σχεδίων πόλεως διατάξεις και το νομοθετικό διάταγμα [Ν] 758/1970 περί παρατάσεως της προθεσμίας της παραγράφου 3 του άρθρου 3 του αναγκαστικού νόμου 625/1968 (ΦΕΚ 283/Α/1970).
8. Τις διατάξεις του νομοθετικού διατάγματος 797/1971 περί αναγκαστικών απαλλοτριώσεων.
9. Τις διατάξεις του νόμου 1577/1985 περί Γενικού Οικοδομικού Κανονισμού του Κράτους και τις λοιπές σχετικές αυτού διατάξεις όπως αυτός έχει τροποποιηθεί και ισχύει σήμερα και ειδικότερα το άρθρο 24.
10. Τις διατάξεις του νόμου 1337/1983 (ΦΕΚ 33/Α/1983), όπως ισχύει σήμερα και των εκτελεστικών αυτού διαταγμάτων.
11. Το άρθρο 10 του νόμου 3044/2002 (ΦΕΚ 197/Α/2002), όπως τροποποιήθηκε και ισχύει.
12. Την εγκύκλιο 1/1961 καθώς και το τεύχος του Υπουργείου Περιβάλλοντος, Χωροταξίας και Δημοσίων Έργων εγκύκλιος 55/1988 οδηγίες και προδιαγραφές για τροποποιήσεις και επεκτάσεις σχεδίων πόλεως.
13. Την εγκύκλιο 18/2003 Αρμοδιότητες Πολεοδομικού Σχεδιασμού, όπως και την εγκύκλιο 6/2006 Άσκηση αρμοδιοτήτων Πολεοδομικού Σχεδιασμού.
14. Το άρθρο 11 του νόμου 3212/2003 (ΦΕΚ 308/Α/2003).
15. Τις διατάξεις του άρθρου 11 του νόμου 2882/2001 (ΦΕΚ 17/Α/2001) Κώδικας αναγκαστικών απαλλοτριώσεων ακινήτων.
16. Τις διατάξεις του Κώδικα Βασικής Πολεοδομικής Νομοθεσίας (ΦΕΚ 580/Δ/1999) και ειδικότερα τα άρθρα 152, 154 και 160.
17. Τις διατάξεις των άρθρων 31 και 32 του νόμου 4067/2012 (ΦΕΚ 79/Α/2012) όπως τροποποιήθηκε και ισχύει σήμερα.
18. Το από 25-06-1979 προεδρικό διάταγμα (ΦΕΚ 367/Δ/1979) εγκρίθηκε η επέκταση του ρυμοτομικού σχεδίου Λουτρακίου Περαχώρας Νομού Κορινθίας.
19. Την Υπουργική Απόφαση 9037/2002 (ΦΕΚ 616/Δ/2002) με την οποία εγκρίθηκε το γενικό πολεοδομικό σχέδιο των οικισμών Λουτρακίου και Περαχώρας του Δήμου Λουτρακίου - Περαχώρας νομού Κορινθίας
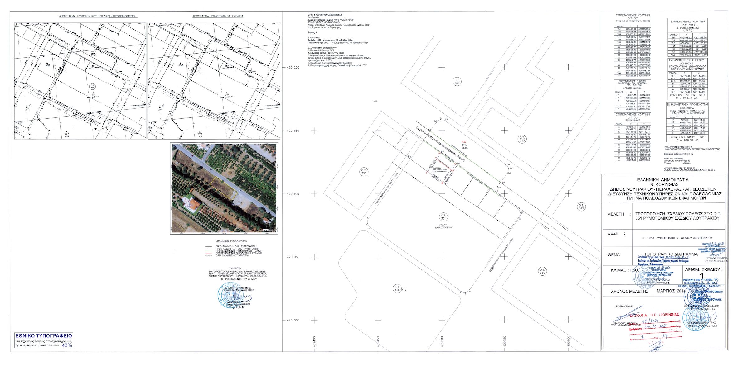
20. Την υπ' αριθμόν 124/2013 απόφαση του Τριμελούς Διοικητικού Πρωτοδικείου Κορίνθου, με την οποία γίνεται δεκτή η προσφυγή των Κωνσταντίνου Ν. Δημόπουλου & Ευάγγελου Κ. Δημόπουλου, ακυρώνεται η σιωπηρή άρνηση της Διοίκησης να άρει το ρυμοτομικό βάρος που επιβλήθηκε με το από 25-06-1979 προεδρικό διάταγμα (ΦΕΚ 367/Δ/1979) Περί επεκτάσεως του ρυμοτομικού σχεδίου Λουτρακίου Περαχώρας (Κορινθίας), στο ακίνητο των προσφευγόντων, αναγνωρίζει την άρση του ως άνω ρυμοτομικού βάρους, και αναπέμπει την υπόθεση στη διοίκηση, προκειμένου να προβεί στην επιβαλλόμενη τροποποίηση του σχεδίου πόλεως.
21. Την από 11-03-2014 αίτηση των Κωνσταντίνου Δημόπουλου και Ευαγγέλου Δημόπουλου, τους τίτλους ιδιοκτησίας και τα πιστοποιητικά Β' Υποθηκοφυλακείου Κορίνθου (Κλεωνών και Περαχώρας).
22. Το ΔΥ/21-03-2014 έγγραφο της οικονομικής υπηρεσίας του Δήμου το οποίο αναφέρει ότι δεν υπάρχει οικονομική δυνατότητα του Δήμου να εγγράψει στον προϋπολογισμό του τρέχοντος έτους ποσού 44.160,00 € το οποίο αντιστοιχεί στην προσήκουσα αποζημίωση για την συντέλεση της ως άνω αποζημίωσης.
23. Την υπ' αριθμόν 5/2014 απόφαση της Επιτροπής Ποιότητας Ζωής.
24. Την υπ' αριθμόν 98/2014 ομόφωνη απόφαση του Διοικητικού Συμβουλίου Λουτρακίου Αγίων Θεοδώρων.
25. Την με αριθμό πρωτοκόλλου 9509/2014 Ανακοίνωση - πρόσκληση του Τμήματος Πολεοδομικών Εφαρμογών της Διεύθυνσης Τεχνικών Υπηρεσιών προς τους ενδιαφερόμενους να λάβουν γνώση της υπ' αριθμόν 98/2014 απόφασης Δημοτικού Συμβουλίου Κορινθίων και του σχετικού τοπογραφικού διαγράμματος η οποία δημοσιεύθηκε: α) στην εφημερίδα Ημερησία Κορίνθου στις 30-04-2014 και 02-05-2014, και β) στην εφημερίδα Κορινθιακή Ημέρα στις 01-05-2014 και 05-05-2014.
26. Το έγγραφο με αριθμό πρωτοκόλλου 10731/2014 του Τμήματος Πολεοδομικών Εφαρμογών της Διεύθυνσης Τεχνικών Υπηρεσιών του Δήμου Λουτρακίου - Αγίων Θεοδώρων
27. Το έγγραφο με αριθμό πρωτοκόλλου 12883/2014 του Τμήματος Πολεοδομικών Εφαρμογών της Διεύθυνσης Τεχνικών Υπηρεσιών και Πολεοδομίας του Δήμου Λουτρακίου Περαχώρας και Αγίων Θεοδώρων από το οποίο προκύπτει ότι δεν υποβλήθηκαν ενστάσεις κατά της απόφασης Διοικητικού Συμβουλίου 98/2014.
28. Την από 16-07-2014 αίτηση του Δημόπουλου Ευάγγελου με την οποία ζητά την μετατροπή της εισφοράς σε γη (ολικής ή μερικής) που αναλογεί στην ιδιοκτησία του (33,88 m2) σε χρηματική εισφορά
29. Την με αριθμό πρωτοκόλλου 46403/2014 εισήγηση Προϊσταμένου Τμήματος Χωρικού Σχεδιασμού προς το Συμβούλιο Πολεοδομικών Θεμάτων και Αμφισβητήσεων Περιφερειακής Ενότητας Κορινθίας, η οποία διαβιβάστηκε με συνημμένο σχετικό φάκελο με το υπ' αριθμόν πρωτοκόλλου 54196/2014 έγγραφο του Τμήματος Χωρικού Σχεδιασμού της Διεύθυνσης Περιβάλλοντος και Χωρικού Σχεδιασμού της Περιφέρειας Πελοποννήσου.
30. Την γνωμοδότηση με αριθμό 50/2014 από το υπ' αριθμόν 7/14-10-2014 πρακτικό του Συμβουλίου Πολεοδομικών Θεμάτων και Αμφισβητήσεων, Περιφερειακής Ενότητας Κορινθίας η οποία μας διαβιβάστηκε με το έγγραφο με αριθμό πρωτοκόλλου 115/05-11-2014 του Συμβουλίου Πολεοδομικών Θεμάτων και Αμφισβητήσεων, Περιφερειακής Ενότητας Κορινθίας.
31. Και επειδή:
Α. Έχει εκφραστεί, με το ΔΥ/21-03-2014 έγγραφο της Οικονομικής Υπηρεσίας του Δήμου Λουτρακίου - Αγίων Θεοδώρων, η οικονομική αδυναμία της καταβολής στους ιδιοκτήτες της προσήκουσας αποζημίωσης και συνεπώς η Διοίκηση κωλύεται να επανεπιβάλει τη ανακληθείσα απαλλοτρίωση όπως ορίζεται στην παράγραφο 3 του άρθρου 32 του νόμου 4067/2012.
Β. Θα πρέπει να προωθηθεί, σε συμμόρφωση της υπ' αριθμόν 124/2013 απόφασης του Τριμελούς Διοικητικού Πρωτοδικείου Κορίνθου, η άρση απαλλοτρίωσης που επιβλήθηκε με το από 25-06-1979 προεδρικό διάταγμα (ΦΕΚ 367/Δ/1979) Περί επεκτάσεως του ρυμοτομικού σχεδίου Λουτρακίου Περαχώρας (Κορινθίας), στο ακίνητο των Κωνσταντίνου Ν. Δημόπουλου και Ευάγγελου Κ. Δημόπουλου. Επιπλέον και προς θεραπεία των κυκλοφοριακών αναγκών, όπως επικαλείται η αρμόδια Υπηρεσία του Δήμου, εισηγούμαστε τη δημιουργία δρόμου που θα δημιουργήσει δύο οικοδομικά τετράγωνα ΟΤ 351 (προτεινόμενος χώρος Σχολείου με εξαίρεση την ιδιοκτησία που περιγράφεται με στοιχεία Α, Β, Γ, Δ, Α) και οικοδομικό τετράγωνο 351Α ΚΧ.
Γ. Για την ιδιοκτησία για την οποία γίνεται άρση απαλλοτρίωσης σε εφαρμογή της δικαστικής απόφασης 124/2013 του Τριμελούς Διοικητικού Πρωτοδικείου Κορίνθου έχει υπολογιστεί επιβολή εισφοράς η οποία αντιστοιχεί σε 33,88 m2 τα οποία αποδίδονται τμήμα τους για δημιουργία κοινοχρήστου και για Κοινωφελή (χώρο Δημοτικού Σχολείου). Προτείνεται η απόρριψη του από 16-07-2014 αιτήματος της παραγράφου 28 της παρούσας λόγω ανεπαρκής δικαιολογίας.
Δ. Η εν λόγω τροποποίηση μπορεί να θεωρηθεί σημειακή και εντοπισμένη.
Ε. Το γεγονός ότι από τις κανονιστικές διατάξεις της παρούσας δεν προκαλείται δαπάνη σε βάρος του προϋπολογισμού της Περιφέρειας Πελοποννήσου, αποφασίζει:
1.1. Την απόρριψη του από 16-07-2014 αιτήματος του Δημόπουλου Ευάγγελου, το οποίο αφορά την μετατροπή της εισφοράς γης σε χρηματική εισφορά.
1.2. Την έγκριση της Τροποποίησης σχεδίου πόλης στο οικοδομικό τετράγωνο 351 του εγκεκριμένου ρυμοτομικού σχεδίου Λουτρακίου - Περαχώρας - Αγίων Θεοδώρων σε συμμόρφωση της 124/2013 Απόφασης Διοικητικού Πρωτοδικείου Κορίνθου με άρση της ρυμοτομικής δέσμευσης του ανωτέρω ακινήτου με αποχαρακτηρισμό του κοινωφελούς χώρου στην ανωτέρω ιδιοκτησία και την επιβολή εισφοράς γης επιφανείας 33,88 m2 η θέση της οποίας απεικονίζεται με κορυφές No 1, No 2, No 3, Β, Β', Α, Δ, No 1 στο συνημμένο τοπογραφικό διάγραμμα (που συντάχθηκε από το Τμήμα Πολεοδομικών Εφαρμογών της Διεύθυνσης Τεχνικών Υπηρεσιών και Πολεοδομίας του Δήμου Λουτρακίου - Περαχώρας - Αγίων Θεοδώρων το Μάρτιο του 2014 κλίμακας 1:500), τμήμα της οποίας προτείνεται ως κοινόχρηστο (για τη δημιουργία οδού) και τμήμα της ως κοινωφελή (χώρος Δημοτικού Σχολείου).
Για το τμήμα της ιδιοκτησίας με τα στοιχεία Α, Β, Γ, Δ, Α θα ισχύουν οι όροι δόμησης της όμορης περιοχής (από 25-06-1979 προεδρικό διάταγμα (ΦΕΚ 367/Δ/1979) - Τομέας Α) και οι επιτρεπόμενες χρήσεις θα είναι σύμφωνα με την ενότητα 6 ισχύοντος Γενικού Πολεοδομικού Σχεδίου.
1.3. Τη δημιουργία οδού έμπροσθεν του ακινήτου, σύμφωνα με το συνημμένο τοπογραφικό διάγραμμα - συνέχιση της υφιστάμενης οδού Καλανήσων - που περιγράφεται με τις κορυφές Ε. Το 8.Το 6. Το 7. Ο.Ε.
1.4. Τη δημιουργία νέου οικοδομικού τετραγώνου 351Α ως κοινόχρηστου χώρου που περιγράφεται με στοιχεία Το 1.Το 2.Το 3.Το 4. Το 5.Το 6.Το 8.Το 7.Το 1.
Η παρούσα συνοδεύεται από τοπογραφικό διάγραμμα που συντάχθηκε από το Τμήμα Πολεοδομικών Εφαρμογών της Διεύθυνσης Τεχνικών Υπηρεσιών και Πολεοδομίας του Δήμου Λουτρακίου - Περαχώρας - Αγίων Θεοδώρων το Μάρτιο του 2014 κλίμακας 1:500.
2. Η παρούσα απόφαση ισχύει από τη δημοσίευσή της στην Εφημερίδα της Κυβερνήσεως.

Η απόφαση αυτή να δημοσιευθεί στην Εφημερίδα της Κυβερνήσεως.
Τρίπολη, 02-03-2015
Ο Περιφερειάρχης