| Συνδεθείτε στην Υπηρεσία Νομοσκόπιο | | | | | Νέοι χρήστες | | Εάν είστε νέος χρήστης, θα πρέπει να δημιουργήσετε ένα ΔΩΡΕΑΝ λογαριασμό προκειμένου να φύγει το παράθυρο αυτό και να αποκτήσετε πλήρη πρόσβαση στην υπηρεσία Νομοσκόπιο. | | Δημιουργία νέου λογαριασμού | | |
Απόφαση 930/2017: Έγκριση Σημειακής τροποποίησης Σχεδίου Πόλεως Ιαλυσού, στα οικοδομικά τετράγωνα 89 και 90, εντός των KM 279AA και KM 279ΑΓ γαιών Τριαντών, Δημοτικής Κοινότητας Ιαλυσού, Δημοτικής Ενότητας Ιαλυσού Δήμου Ρόδου, (ΦΕΚ 287/ΑΑΠ/2017), 19-12-2017.
Ο Αντιπεριφερειάρχης Νοτίου Αιγαίου
Έχοντας υπόψη:
1. Το από 17-07-1923 νομοθετικό διάταγμα, περί Σχεδίων Πόλεων κ.λ.π. άρθρο 29.
2. Την υπ' αριθμόν 43511/161/55/1988 εγκύκλιος 55/1988 Οδηγίες και προδιαγραφές για τροποποιήσεις, επεκτάσεις, ρυμοτομικών σχεδίων.
3. Την υπ' αριθμόν 32737/869784/2000 εγκύκλιος 84/2000 του Υπουργείου Περιβάλλοντος, Χωροταξίας και Δημοσίων Έργων.
4. Την εγκύκλιο 18/2003.
5. Την εγκύκλιο 6/2006.
6. Το νόμο 1337/1983 (ΦΕΚ 33/Α/1983) Επέκταση των πολεοδομικών σχεδίων. Οικιστική ανάπτυξη και σχετικές ρυθμίσεις όπως ισχύει σήμερα.
7. Το νόμο 1577/1985 (ΦΕΚ 210/Α/1985) Γενικός Οικοδομικός Κανονισμός για όσες διατάξεις του εξακολουθούν να ισχύουν (υπό την έννοια ότι δεν έρχονται σε αντίθεση με τον Νέο Οικοδομικό Κανονισμό).
8. Το από 23-02-1987 προεδρικό διάταγμα (ΦΕΚ 166/Δ/1987), Κατηγορίες και περιεχόμενο χρήσεων γης.
9. Την υπ' αριθμόν 43511/161/1988 εγκύκλιος 55/1988 Οδηγίες και προδιαγραφές για τροποποιήσεις, επεκτάσεις, ρυμοτομικών σχεδίων.
10. Το από [ΒΔ] 22-01-1971 βασιλικό διάταγμα (ΦΕΚ 34/Δ/1971) με θέμα Περί εγκρίσεως του ρυμοτομικού σχεδίου Τριάντα (Ρόδου) και καθορισμού των όρων και περιορισμών Δομήσεως των οικοπέδων αυτού.
11. Το από [ΒΔ] 10-01-1972 βασιλικό διάταγμα (ΦΕΚ 7/Δ/1972) με θέμα Περί επεκτάσεως του ρυμοτομικού σχεδίου Τριάντα (Ρόδου) και καθορισμού των όρων και περιορισμών δόμησης των οικοπέδων αυτού.
12. Το από [ΒΔ] 19-05-1973 βασιλικό διάταγμα (ΦΕΚ 154/Δ/1973) με θέμα Περί τροποποιήσεως του ρυμοτομικού σχεδίου Τριάντα (Ρόδου).
13. Την υπ' αριθμόν 73932/4915/1994 απόφαση Υπουργείου Περιβάλλοντος, Χωροταξίας και Δημοσίων Έργων (ΦΕΚ 1052/Δ/1994), με θέμα Έγκριση Γενικού Πολεοδομικού Σχεδίου του οικισμού Ιαλυσού της νήσου Ρόδου (νομού Δωδεκανήσου).
14. Το από 08-08-1995 προεδρικό διάταγμα (ΦΕΚ 655/Δ/1995) με θέμα Αναθεώρηση του ρυμοτομικού σχεδίου του Δήμου Ιαλυσού νήσου Ρόδου (νομού Δωδεκανήσου) και καθορισμός χρήσεων γης και όρων και περιορισμών δόμησης των οικοπέδων αυτού.
15. Το νόμο 2831/2000 (ΦΕΚ 140/A/2000) Τροποποίηση των διατάξεων του νόμου 1577/1985 Γενικός Οικοδομικός Κανονισμός και άλλες πολεοδομικές διατάξεις (άρθρο 27 και 29).
16. Της υπ' αριθμόν 1125/2006 απόφαση Γενικού Γραμματέα Περιφέρειας (ΦΕΚ 17/ΑΑΠ/2006) Έγκριση σημειακών τροποποιήσεων του Σχεδίου Πόλεως Ιαλυσού
17. Τον Κώδικα Βασικής Πολεοδομικής Νομοθεσίας (ΦΕΚ 580/Δ/99) άρθρο 152 και άρθρο 154.
18. Το νόμο 3044/2002, Μεταφορά Συντελεστή Δόμησης και ρυθμίσεις άλλων θεμάτων αρμοδιότητας Υπουργείου Περιβάλλοντος, Χωροταξίας και Δημοσίων Έργων (ΜΣΔ).
19. Το νόμο 3937/2011 (ΦΕΚ 60/Α/2011), Διατήρηση της Βιοποικιλότητας και άλλες Διατάξεις.
20. Το νόμο 4067/2012 (ΦΕΚ 79/Α/2012), Νέος Οικοδομικός Κανονισμός.
21. Το νόμο 4269/2014 (ΦΕΚ 142/Α/2014) Χωροταξική και Πολεοδομική Μεταρρύθμιση - Βιώσιμη Ανάπτυξη.
22. Το νόμο 4447/2016 (ΦΕΚ 241/Α/2016).
23. Το νόμο 4389/2016 άρθρο 238 (ΦΕΚ 94/Α/2016).
24. Το νόμο 4315/2014 (ΦΕΚ 269/Α/2014) Πράξεις εισφοράς σε γη και σε χρήμα - Ρυμοτομικές απαλλοτριώσεις και άλλες διατάξεις.
25. Την εγκύκλιο 10/2012 του Υπουργείου Περιβάλλοντος, Ενέργειας και Κλιματικής Αλλαγής και το υπ' αριθμόν 4289/2014 έγγραφο του Υπουργείου Περιβάλλοντος, Ενέργειας και Κλιματικής Αλλαγής περί Διευκρινίσεων σχετικά με την εγκύκλιο 10/2012 της Διεύθυνσης Πολεοδομικού Σχεδιασμού του Υπουργείου Περιβάλλοντος, Ενέργειας και Κλιματικής Αλλαγής που αφορά στις αρμοδιότητες των Συμβουλίων Πολεοδομικών Θεμάτων και Αμφισβητήσεων
26. Το γεγονός ότι για τη συγκεκριμένη τροποποίηση τηρήθηκε η προβλεπόμενη νόμιμη διαδικασία.
27. Την υπ' αριθμόν 48/2016 απόφαση Δημοτικής Κοινότητας Ιαλυσού.
28. Τις υπ' αριθμόν 199/27-10-2016 και 92/2017 αποφάσεις Επιτροπής Ποιότητας Ζωής Δήμου Ρόδου με τις οποίες εγκρίνεται η τροποποίηση και εκδικάζεται η κατατεθείσα ένσταση.
29. Τις υπ' αριθμόν 922/2016 και 547/2017 αποφάσεις Δημοτικού Συμβουλίου Ρόδου με τις οποίες εγκρίνεται η τροποποίηση και εκδικάζεται η κατατεθείσα ένσταση.
30. Την με αριθμό πρωτοκόλλου 608/19-09-2017 εισήγηση Διεύθυνσης Περιβάλλοντος και Χωρικού Σχεδιασμού Δωδεκανήσου ΠΝΑΙ προς Συμβούλιο Πολεοδομικών Θεμάτων και Αμφισβητήσεων Δωδεκανήσου.
31. Την ομόφωνη εγκριτική απόφαση Συμβουλίου Πολεοδομικών Θεμάτων και Αμφισβητήσεων Δωδεκανήσου σύμφωνα με το πρακτικό της 7ης Συνεδρίασης 24-10-2015 Πράξη 15η που διαβιβάστηκε με το 239/09-11-2017 έγγραφο τμήμα ΠΕΧΩ Δωδεκανήσου Αποκεντρωμένης Διοίκησης Αιγαίου.
32. Το νόμο 3852/2010, (ΦΕΚ 87/Α/2010), Νέα Αρχιτεκτονική της Αυτοδιοίκησης και της Αποκεντρωμένης Διοίκησης - Πρόγραμμα Καλλικράτης όπως τροποποιήθηκε και συμπληρώθηκε με το νόμο 3979/2011 (ΦΕΚ 138/Α/2011).
33. Το προεδρικό διάταγμα 130/2010 (ΦΕΚ 223/Α/2010) Οργανισμός Περιφέρειας Νοτίου Αιγαίου.
34. Την υπ' αριθμόν 49947/2015 (ΦΕΚ 1666/Β/2015) απόφαση Γενικού Γραμματέα Αποκεντρωμένης Διοίκησης Αιγαίου Τροποποίηση του Οργανισμού Εσωτερικής Υπηρεσίας της Περιφέρειας Νοτίου Αιγαίου.
35. Την υπ' αριθμόν 100393/8204/2015 απόφαση Περιφερειάρχη Νοτίου Αιγαίου Τοποθέτηση υπαλλήλων στις οργανικές μονάδες ΠΝΑΙ.
36. Την με αριθμό 144929/11938/2015 (ΦΕΚ 2638/Β/2015) απόφαση Αντιπεριφερειάρχη όπως διορθώθηκε με το (ΦΕΚ 2737/Β/2015) εξουσιοδότηση υπογραφής με Εντολή Αντιπεριφερειάρχη στον Προϊστάμενο της Διεύθυνσης Περιβάλλοντος και Χωρικού Σχεδιασμού Δωδεκανήσου.
37. Την υπ' αριθμόν 24209/2240 (ΦΕΚ 115/ΥΟΔΔ/2015) απόφαση Περιφερειάρχη Νοτίου Αιγαίου Ορισμός Αντιπεριφερειαρχών.
38. Την υπ' αριθμόν 29319/2692 (ΦΕΚ 1014/Β/2017) Μεταβίβαση αρμοδιοτήτων στον Αντιπεριφερειάρχη Φλεβάρη Ιωάννη.
39. Το γεγονός ότι από τις διατάξεις της παρούσας δεν προκαλείται δαπάνη εις βάρος του οικείου οργανισμού τοπικής αυτοδιοίκησης, αποφασίζουμε:
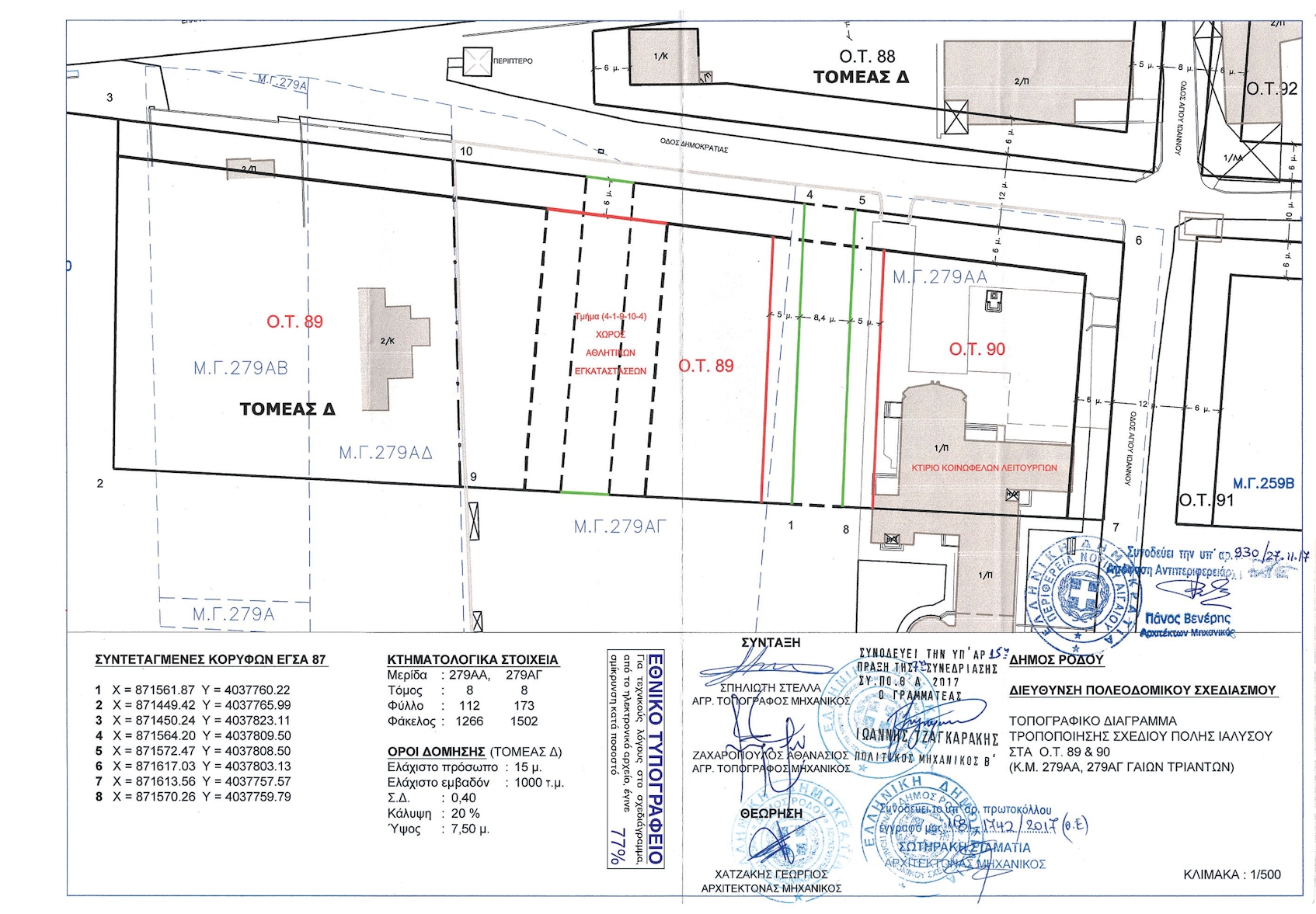
1. Τη σημειακή τροποποίηση του εγκεκριμένου σχεδίου πόλεως Ιαλυσού νήσου Ρόδου στα οικοδομικά τετράγωνα 89 και 90, εντός των KM 279AA και 279ΑΓ γαιών Τριαντών, με τη μετατόπιση προβλεπόμενης οδού, τη δημιουργία χώρου αθλητικών εγκαταστάσεων εντός της έκτασης που οριοθετείται από τα σημεία (10, 4, 1, 9, 10) και προσδιορισμού χρήσης κοινωφελών λειτουργιών στο υφιστάμενο κτίριο (πρώην εκπαιδευτήριο) εντός του οικοδομικού τετραγώνου 90 και συγκεκριμένα χρήσεων κοινωνικής πρόνοιας, πρωτοβάθμιας, δευτεροβάθμιας εκπαίδευσης και πολιτισμού, όπως ακριβώς φαίνεται στο συνημμένο διάγραμμα σε κλίμακα 1:500.
2. Κατά τα λοιπά ισχύουν τα οριζόμενα στο από 08-08-1995 προεδρικό διάταγμα (ΦΕΚ 655/Δ/1995) Αναθεώρηση του ρυμοτομικού σχεδίου του Δήμου Ιαλυσού νήσου Ρόδου και καθορισμός χρήσεων γης και όρων και περιορισμών δόμησης των οικοπέδων αυτού.
Η απόφαση αυτή μαζί με το σχεδιάγραμμα σε κλίμακα 1:500 που τη συνοδεύει και αποτελεί αναπόσπαστο μέρος της, να δημοσιευθεί στην Εφημερίδα της Κυβερνήσεως.

Ρόδος, 27-11-2017
Ο Αντιπεριφερειάρχης