| Συνδεθείτε στην Υπηρεσία Νομοσκόπιο | | | | | Νέοι χρήστες | | Εάν είστε νέος χρήστης, θα πρέπει να δημιουργήσετε ένα ΔΩΡΕΑΝ λογαριασμό προκειμένου να φύγει το παράθυρο αυτό και να αποκτήσετε πλήρη πρόσβαση στην υπηρεσία Νομοσκόπιο. | | Δημιουργία νέου λογαριασμού | | |
Έγγραφο 29852/2132/2012: Διευκρινήσεις επί του Διαχωριστικού τοίχου που προβλέπεται στο προεδρικό διάταγμα 595/1984 όπως ισχύει, 29-06-2012.
Σχετικό: Οίκοθεν 42292/3881/2011 εγκύκλιο μας
Με αφορμή ερωτήματα αναφορικά με τον υπολογισμό του Διαχωριστικού τοίχου που κρίνεται αναγκαίος για την προσθήκη LPG σε υπάρχων πρατήριο υγρών καυσίμων σύμφωνα με τα αναφερόμενα στο προεδρικό διάταγμα 595/1984 όπως ισχύει και ύστερα από το ανωτέρω σχετικό διευκρινίζουμε τα εξής:
1. Για τη υπόγεια δεξαμενή θα λαμβάνεται ως σημείο υπολογισμού του ύψους διαρροής του υγραερίου τα 4,00 m πάνω από τη στάθμη του εδάφους (δηλαδή 3,00 m το άκρο του σωλήνα εκτόνωσης και 1.00 m πάνω από αυτό το άκρο, όπως προβλέπει το προεδρικό διάταγμα 595/1984 όπως ισχύει).
2. Ο στόχος της δημιουργίας των διαχωριστικών τοίχων είναι να εξαναγκάσουν το υγραέριο που τυχόν θα διαρρεύσει, εφόσον κινείται προς την εκτός του πρατηρίου απαγορευτική εγκατάσταση (οικία, στάση λεωφορείου, νοσοκομείο κ.τ.λ.) η οποία θεωρείται - χάριν απλοποίησης - ως ευρισκόμενη πάντοτε στο ίδιο οριζόντιο επίπεδο με το επίπεδο του πρατηρίου, να διανύσει (με πορεία σε οριζόντιο επίπεδο σε τεθλασμένη γραμμή) μια απόσταση τουλάχιστον ίση με αυτή που λογίζεται (για την κάθε εγκατάσταση) ως ελάχιστη εξωτερική απόσταση ασφαλείας (π.χ. 30 m από στάση συγκοινωνιακού μέσου)).
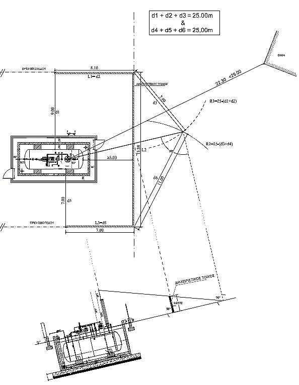
3. Η διάταξη του πρατηρίου μπορεί να επιλεγεί ώστε η δημιουργία του διαχωριστικού τοίχου θα διασφαλίζει ότι το άθροισμα των σε τεθλασμένη γραμμή επιμέρους αποστάσεων σε οριζόντιο επίπεδο θα είναι τουλάχιστον όσο η ελάχιστη εξωτερική απόσταση ασφαλείας. Σύμφωνα με τα επισυναπτόμενα σκαριφήματα η ελάχιστη απόσταση του διανομέα από μια απαγορευτική εγκατάσταση καλύπτεται είτε με το άθροισμα (d1 + d2) ή με το άθροισμα (d3 + d4) (βλέπε σκαρίφημα (Β)) ή με το άθροισμα (d1+d2+d3) ή (d4+d5+d6) (βλέπε σκαρίφημα (A)), το δε ύψος του εκάστοτε απαιτητού διαχωριστικού τοίχου υπολογίζεται είτε γραφικά (εφόσον όλα είναι σχεδιασμένα με κλίμακα) είτε με υπολογισμό των ομοίων τριγώνων.

c υπολογισμού Διαχωριστικού τοίχου

Σκαρίφημα Β
4. Στην περίπτωση που επιβάλλεται να δημιουργηθεί διαχωριστικός τοίχος ανάμεσα στο σωλήνα εκτόνωσης της δεξαμενής και π.χ. μια οικία εκτός του πρατηρίου, που βρίσκεται σε (κατ' ευθείαν) απόσταση μικρότερη της επιτρεπόμενης, τότε το ύψος του τοίχου προκύπτει με επίλυση του ορθογωνίου τριγώνου, που η μία κορυφή του ευρίσκεται σε ύψος 4,00 m πάνω από την πλατφόρμα, στο κέντρο της ανθρωποθυρίδας της δεξαμενής υγραερίου, η δε άλλη κορυφή του προκύπτει ως τομή των τόξων εκείνων με τα οποία καλύπτεται η απόσταση αυτή και από τις δύο ακμές του διαχωριστικού τοίχου. Το κατακόρυφο επίπεδο που ορίζεται από αυτά τα δύο σημεία τέμνει τον διαχωριστικό τοίχο και το μήκος (ύψος) της γραμμής είναι το απαιτητό ύψος του διαχωριστικού τοίχου.
Ο Γενικός Διευθυντής