| Συνδεθείτε στην Υπηρεσία Νομοσκόπιο | | | | | Νέοι χρήστες | | Εάν είστε νέος χρήστης, θα πρέπει να δημιουργήσετε ένα ΔΩΡΕΑΝ λογαριασμό προκειμένου να φύγει το παράθυρο αυτό και να αποκτήσετε πλήρη πρόσβαση στην υπηρεσία Νομοσκόπιο. | | Δημιουργία νέου λογαριασμού | | |
Γενικές παρατηρήσεις:
1. Οι παρουσιαζόμενοι τύποι στηθαίων στις διαμορφώσεις που ακολουθούν, είναι ενδεικτικοί. Οι τύποι των στηθαίων που εφαρμόζονται πρέπει να επιλέγονται ανάλογα με τις συνθήκες που θα λειτουργούν σύμφωνα με τις [Π] ΟΜΟΕ-ΣΣΟ, (Συστήματα Συγκράτησης Οχημάτων) και αυτοί να είναι αντιστοίχως πιστοποιημένοι για τις επιδόσεις τους σύμφωνα με EN 1317 1-2.
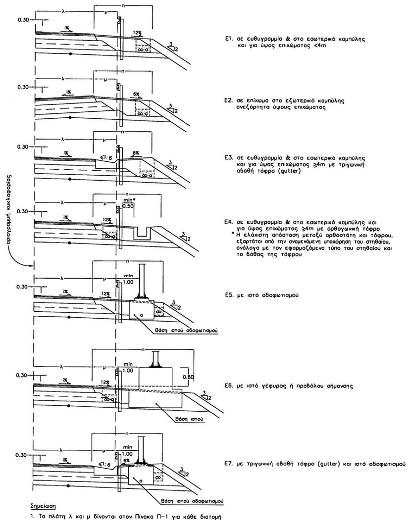
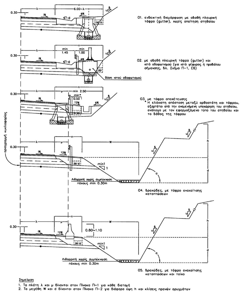
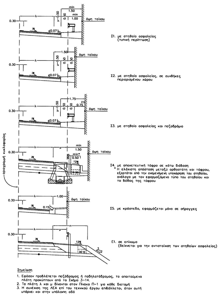
Η απόσταση μ τοποθέτησης των στηθαίων ασφαλείας που δίνεται στις παρούσες διαμορφώσεις είναι η ελάχιστη, η οποία καλύπτει τις λειτουργικές απαιτήσεις της διατομής. Η απόσταση αυτή σε κάθε περίπτωση πρέπει να καθορίζεται από την αρχή της διαμόρφωσης συγχωρητικού περιβάλλοντος στην οδό, με βάση τους κανόνες που αναφέρονται στις [Π] ΟΜΟΕ-ΣΣΟ, και εξαρτάται από παράγοντες όπως:
| • | η οριζοντιογραφία της οδού και η θέση του στηθαίου (ακτίνα οριζόντιας καμπύλης - εσωτερικό ή εξωτερικό καμπύλης), |
| • | κλίσεις πλευρικών διαμορφώσεων, |
| • | κλίση πρανούς επιχώματος - ορύγματος, |
| • | ύψος πρανούς επιχώματος, |
| • | πλάτος ελεύθερου χώρου από απαίτηση μήκους ορατότητας για στάση, |
| • | μέση ημερήσια κυκλοφορία οδού, |
| • | τύπος στηθαίου - λειτουργικό πλάτος |
| • | παράπλευρος χώρος κ.λ.π. |
Η συχνή μεταβολή του πλάτους μ κατά μήκος της ίδιας οδού, πρέπει να αποφεύγεται. Η επιλογή της τιμής του τυπικού πλάτους μ, πρέπει να προσδιορίζεται από τις επιλεγόμενες παράπλευρες διατάξεις αποχέτευσης, εφόσον αυτές αναγκαστικά θα επαναλαμβάνονται συχνά (σε αποστάσεις < 500 m).
2. Η θέση των αγωγών αναμονής (στις πλευρικές διαμορφώσεις των οδών με διαχωρισμένες επιφάνειες κυκλοφορίας), είναι ενδεικτική.
3. Οι ορθοστάτες των πινακίδων σήμανσης και των κυκλοφοριακών εγκαταστάσεων με Φ ≤ 8 cm, τοποθετούνται ανάλογα με τις εξής περιπτώσεις:
- εφόσον για άλλους λόγους προβλέπεται τοποθέτηση στηθαίου ασφαλείας:
| • | για πινακίδες ρυθμιστικές, επικινδύνων θέσεων και σταθερού περιεχομένου πληροφοριακές, η ελάχιστη απόσταση του άξονα του ορθοστάτη πίσω από την όψη του στηθαίου ασφαλείας, πρέπει να είναι 1,00 m |
| • | για πλευρικές πληροφοριακές πινακίδες, η τοποθέτηση γίνεται έτσι ώστε η εξωτερική παρειά τους να απέχει ελάχιστη απόσταση πίσω από την όψη του στηθαίου 1,50 m |
- εφόσον δεν προβλέπεται τοποθέτηση στηθαίου ασφαλείας (βλέπε παράγραφο 2.3.1):
| • | για πινακίδες ρυθμιστικές, επικινδύνων θέσεων και σταθερού περιεχομένου πληροφοριακές η ελάχιστη απόσταση του άξονα του ορθοστάτη από το άκρο του οδοστρώματος πρέπει να είναι ίση με SLV |
| • | για πλευρικές πληροφοριακές πινακίδες, αυτές τοποθετούνται ώστε η εξωτερική παρειά τους να απέχει ελάχιστη απόσταση από το άκρο του οδοστρώματος SLV |
Οι ορθοστάτες των πινακίδων σήμανσης και των κυκλοφοριακών εγκαταστάσεων με Φ > 8 cm, τοποθετούνται σύμφωνα με τους κανόνες ασφάλισης σταθερών εμποδίων σύμφωνα με τις [Π] ΟΜΟΕ-ΣΣΟ.
4. Για αποχετευτικές διατάξεις σε τεχνικά έργα (γέφυρες, σήραγγες) βλέπε ΟΜΟΕ-ΑΣΥΕΟ.

Πίνακες διαστάσεων πλευρικών διαμορφώσεων οδών

Σχήμα Π-1: Πλευρικές διαμορφώσεις οδών με διαχωρισμένες επιφάνειες κυκλοφορίας σε επίχωμα (κλίμακα 1:100).

Σχήμα Π-2: Πλευρικές διαμορφώσεις οδών με διαχωρισμένες επιφάνειες κυκλοφορίας σε θέση τοίχου αντιστήριξης (κλίμακα 1:100).

Σχήμα Π-3: Πλευρικές διαμορφώσεις οδών με διαχωρισμένες επιφάνειες κυκλοφορίας σε θέση γέφυρας (κλίμακα 1:100).

Σχήμα Π-4: Πλευρικές διαμορφώσεις οδών με διαχωρισμένες επιφάνειες κυκλοφορίας σε όρυγμα (κλίμακα 1:100).

Σχήμα Π-5: Πλευρικές διαμορφώσεις οδών με διαχωρισμένες επιφάνειες κυκλοφορίας σε περιοχές κάτω διαβάσεων και σηράγγων μικρού μήκους (κλίμακα 1:100).

Σχήμα Π-6: Διαμόρφωση κεντρικής νησίδας με στηθαίο New Jersey - εσωτερικές λωρίδες καθοδήγησης διατομών α 6 ν σ, α 4 ν σ, β 6 ν σ, β 4 ν σ και γ 4 ν σ (κλίμακα 1:100)

Σχήμα Π-7: Διαμόρφωση κεντρικής νησίδας με μεταλλικά στηθαία - εσωτερικές λωρίδες καθοδήγησης διατομών α 6 ν σ, α 4 ν σ, β 6 ν σ, β 4 ν σ και γ 4 ν σ (κλίμακα 1:100).

Σχήμα Π-8: Διαμόρφωση κεντρικής νησίδας διατομών β 4 ν* σ και γ 4 ν* (κλίμακα 1:100).

Σχήμα Π-9)α: Πλευρικές διαμορφώσεις οδών με ενιαία επιφάνεια κυκλοφορίας (κλίμακα 1:100).

Σχήμα Π-9)β: Πλευρικές διαμορφώσεις οδών με ενιαία επιφάνεια κυκλοφορίας (κλίμακα 1:100).