Προεδρικό διάταγμα 11/1/13 - Άρθρο 1

Άρθρο 1


Συνδεθείτε στην Υπηρεσία Νομοσκόπιο
Είσοδος στην υπηρεσία Νομοσκόπιο.
   
Χρήστης
Κωδικός
  Υπενθύμιση στοιχείων λογαριασμού
   
 
Νέοι χρήστες
Εάν είστε νέος χρήστης, θα πρέπει να δημιουργήσετε ένα ΔΩΡΕΑΝ λογαριασμό προκειμένου να φύγει το παράθυρο αυτό και να αποκτήσετε πλήρη πρόσβαση στην υπηρεσία Νομοσκόπιο.
Δημιουργία νέου λογαριασμού

 

 

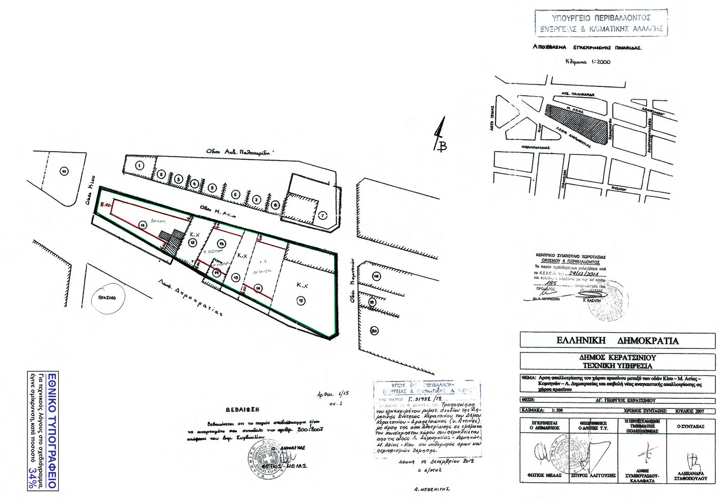
Εγκρίνεται η τροποποίηση του εγκεκριμένου ρυμοτομικού σχεδίου της Δημοτικής Ενότητας Κερατσινίου - Δραπετσώνας (Νομός Αττικής) με άρση της απαλλοτρίωσης σε τμήματα του κοινόχρηστου χώρου που περικλείεται από τις οδούς Λεωφόρου Δημοκρατίας - Κομνηνών - Μικράς Ασίας - Κίου όπως φαίνεται στο σχετικό πρωτότυπο διάγραμμα σε κλίμακα 1:500 που θεωρήθηκε από τον Προϊστάμενο της Διεύθυνσης Τοπογραφικών Εφαρμογών με την 51952/2012 πράξη του και που αντίτυπο του σε φωτοσμίκρυνση δημοσιεύεται με το παρόν διάταγμα.

 

pd.11.1.13



Copyright © 2017 TechnoLogismiki. Με την επιφύλαξη παντός δικαιώματος.