| Συνδεθείτε στην Υπηρεσία Νομοσκόπιο | | | | | Νέοι χρήστες | | Εάν είστε νέος χρήστης, θα πρέπει να δημιουργήσετε ένα ΔΩΡΕΑΝ λογαριασμό προκειμένου να φύγει το παράθυρο αυτό και να αποκτήσετε πλήρη πρόσβαση στην υπηρεσία Νομοσκόπιο. | | Δημιουργία νέου λογαριασμού | | |
1. Επιτρέπεται η χορήγηση άδειας ίδρυσης και λειτουργίας πρατηρίου με μόνιμες ή φορητές αντλίες καυσίμων, εφόσον υφίσταται ιδιωτική έκταση πριν το πρατήριο ή πίσω από αυτό, που μπορεί να χρησιμοποιηθεί ως οδόστρωμα προσπέλασης και προσωρινής στάθμευσης των αυτοκινήτων για τον ανεφοδιασμό του.
2. Η παροχή καυσίμου σε σταθμεύοντα οχήματα μέσω των εφεξής ιδρυομένων πρατηρίων, επί του καταστρώματος της προ αυτών οδού ή επί του πεζοδρομίου της οδού, έχει ως συνέπεια την προσωρινή ή οριστική αφαίρεση της άδειας λειτουργίας.
3. Επιτρέπεται η ίδρυση και λειτουργία πρατηρίων, εφόσον οι αντλίες ή οι διανομείς ευρίσκονται εκτός του διαδρόμου δουλείας διελεύσεως τυχόν υφισταμένων γραμμών μεταφοράς ηλεκτρικής ενέργειας, τάσεως μεγαλύτερης των 66.000 Volt, όπως ο διάδρομος δουλείας έχει καθοριστεί στη συγκεκριμένη θέση από τη Δημόσια Επιχείριση Ηλεκτρισμού σύμφωνα με τις διατάξεις της.
4. Απαγορεύεται εντός της κυρίας εκτάσεως του πρατηρίου η στάθμευση βυτιοφόρων οχημάτων υγρών καυσίμων, πέραν του χρόνου που απαιτείται για τον ανεφοδιασμό από αυτά των δεξαμενών του πρατηρίου επιφυλασσομένων των διατάξεων της παραγράφου 3 του άρθρου 11 του παρόντος.
5. Σε περίπτωση κατά την οποία το πλάτος του διαμορφωμένου ή προβλεπόμενου πεζοδρομίου είναι στις μεν πόλεις πληθυσμού άνω των 5.000 κατοίκων μεγαλύτερο των 5 m, στις δε λοιπές περιοχές μεγαλύτερο των 4 m, επιτρέπεται η ίδρυση και λειτουργία πρατηρίου με εσωτερική απότμηση του πεζοδρομίου για το πέρα των 5 ή 4 m αντιστοίχως, τμήμα του πεζοδρομίου. Η απότμηση του πεζοδρομίου και η χρήση αυτού γενικά λαμβάνει χώρα μετά από άδεια των αρμοδίων προς τούτο αρχών.
6. Απαγορεύεται η εγκατάσταση πρατηρίου υγρών καυσίμων σε οποιοδήποτε χώρο πολυκατοικίας, όπως αυτή ορίζεται στην παράγραφο ε του άρθρου 2 του παρόντος (άρθρο 3 παράγραφος 4 του νόμου 2465/1997, (ΦΕΚ 28/Α/1997)). Επίσης, απαγορεύεται η εγκατάσταση πρατηρίου υγρών καυσίμων εφόσον στο κτίριο άνωθεν του επιπέδου ή των επιπέδων που καταλαμβάνει το πρατήριο στεγάζονται οι προβλεπόμενες χρήσεις του άρθρου 4 του νόμου 2801/2000 (ΦΕΚ 46/Α/2000). Κατά τα λοιπά ισχύουν οι διατάξεις της παραγράφου 2 του άρθρου 4 του νόμου 2801/2000.
7. Η εγκατάσταση και λειτουργία πρατηρίου με αντλίες πετρελαίου, επιτρέπεται εφεξής, της εγκαταστάσεως αυτής υποκείμενης στις διατάξεις του παρόντος και θεωρουμένης ομοίως ως πρατηρίου.
8. Κυρώνονται τα συνοδεύοντα το παρόν σχεδιαγράμματα διαμόρφωσης πρατηρίων, που συντάχθηκαν ως ενδεικτικά υποδείγματα αριθμημένα από 1 έως 13 τα οποία εφαρμόζονται για:
α) Υποδείγματα 1 έως και 3. Τα υποδείγματα αυτά ισχύουν για μεσαία οικόπεδα όπως αυτά ορίζονται στην παράγραφο στ του άρθρου 2 του παρόντος. Οι διαστάσεις στα υποδείγματα αυτά ορίζονται ως εξής: Το μήκος της τραπεζοειδούς νησίδας που διαμορφώνεται επί του πεζοδρομίου, μετρούμενο επί της ρυμοτομικής γραμμής, πρέπει να είναι 6 m τουλάχιστον για πρατήρια που βρίσκονται σε δήμους με πληθυσμό άνω των 5.000 κατοίκων και 5 m για τις λοιπές περιοχές και το ύψος της νησίδας από το κατάστρωμα της οδού ορίζεται σε 15 cm. Το εγκαρσίως προς τον άξονα εισόδου - εξόδου πλάτος του οδοστρώματος προσπελάσεως στο χώρο του πρατηρίου κυμαίνεται από 3,50 έως 8 m. Οι γωνίες στροφής της εισόδου - εξόδου ως προς την οδό κυμαίνονται από 30° έως και 60°. Η πλησιέστερη απόσταση της νησίδας των αντλιών από τη ρυμοτομική γραμμή και από το κράσπεδο του πεζοδρομίου του κτιρίου (σε περίπτωση διπλής προσπέλασης), ορίζεται σε 3,50 m τουλάχιστον. Η απόσταση του σώματος των αντλιών ή των διανομέων από το μέσον της εισόδου - εξόδου επί της ρυμοτομικής γραμμής, ορίζεται σε 5 m τουλάχιστον για πρατήρια που βρίσκονται σε δήμους με πληθυσμό άνω των 5.000 κατοίκων και 4 m για τις λοιπές περιοχές.
β) Υποδείγματα που ισχύουν για γωνιακά οικόπεδα όπως αυτά ορίζονται στην παράγραφο ζ' του άρθρου 2 του παρόντος.
α)α) Υποδείγματα 4, 5 και 5)α, στα οποία οι διαστάσεις ορίζονται ως εξής: Το μήκος της νησίδας που διαμορφώνεται επί του πεζοδρομίου σε κάθε οδό, μετρούμενο επί της ρυμοτομικής γραμμής είναι 5 m τουλάχιστον για τις περιπτώσεις πρατηρίων που βρίσκονται σε δήμους με πληθυσμό άνω των 5.000 κατοίκων και 4 m για τις λοιπές περιοχές και το ύψος της νησίδας από το κατάστρωμα της οδού ορίζεται σε 15 cm. Το εγκαρσίως προς τον άξονα εισόδου - εξόδου πλάτος του οδοστρώματος προσπελάσεως στο χώρο του πρατηρίου κυμαίνεται από 3,50 m έως 8 m. Οι γωνίες στροφής της εισόδου - εξόδου ως προς την οδό κυμαίνονται από 30° έως και 60°. Η πλησιέστερη απόσταση της νησίδας των αντλιών από την νοητή γραμμή που συνδέει τα σημεία εκείνα της εισόδου - εξόδου, που βρίσκονται επί των ρυμοτομικών γραμμών και πλησιέστερα προς το σημείο τομής αυτών καθώς επίσης και η πλησιέστερη απόσταση της νησίδας των αντλιών από το κράσπεδο του πεζοδρομίου του κτιρίου σε περίπτωση διπλής προσπέλασης, ορίζονται σε 3 m τουλάχιστον. Η απόσταση του σώματος των αντλιών ή των διανομέων από το μέσον της εισόδου και της εξόδου (σε περίπτωση διπλής προσπέλασης) επί της ρυμοτομικής γραμμής, ορίζεται σε 5 m τουλάχιστον για πρατήρια που βρίσκονται σε δήμους με πληθυσμό άνω των 5.000 κατοίκων και 4 m για τις λοιπές περιοχές.
Στο υπόδειγμα 5)α η οδός, στην οποία διαμορφώνεται η έξοδος του πρατηρίου είναι μονόδρομος, με φορά προς το σημείο τομής των ρυμοτομικών γραμμών και το πλάτος οδοστρώματος της εξόδου κυμαίνεται από 5 έως 7 m.
β)β) Υποδείγματα 6, 6)α, 6)β, 6)γ, στα οποία οι διαστάσεις ορίζονται ως εξής: Το μήκος της νησίδας που διαμορφώνεται επί του πεζοδρομίου της οδού, στην οποία δημιουργείται η είσοδος του πρατηρίου, μετρούμενο επί της ρυμοτομικής γραμμής είναι 10 m τουλάχιστον για τις περιπτώσεις πρατηρίων που βρίσκονται σε δήμο με πληθυσμό άνω των 5.000 κατοίκων και 8 m τουλάχιστον για τις λοιπές περιοχές. Το μήκος της νησίδας που διαμορφώνεται επί του πεζοδρομίου της οδού, στην οποία δημιουργείται η έξοδος του πρατηρίου, μετρούμενο επί της ρυμοτομικής γραμμής είναι 5 m τουλάχιστον για τις περιπτώσεις πρατηρίων που βρίσκονται σε δήμους, με πληθυσμό άνω των 5.000 κατοίκων και 4 m για τις λοιπές περιοχές. Το ύψος της νησίδας από το κατάστρωμα της οδού ορίζεται σε 15 cm και για τις δύο οδούς. Το εγκαρσίως προς τον άξονα εισόδου - εξόδου πλάτος του οδοστρώματος προσπελάσεως στο χώρο του πρατηρίου κυμαίνεται από 3,50 έως 8 m. Οι γωνίες στροφής της εισόδου - εξόδου ως προς την οδό κυμαίνονται από 30° έως και 60°. Η πλησιέστερη απόσταση της νησίδας των αντλιών από τις ρυμοτομικές γραμμές ορίζεται σε 3,50 m τουλάχιστον, σύμφωνα με το υπόδειγμα. Η πλησιέστερη απόσταση της νησίδας των αντλιών από το κράσπεδο του πεζοδρομίου του κτιρίου ορίζεται σε 3,50 m τουλάχιστον σε περίπτωση μονής διέλευσης και σε 5,50 m τουλάχιστον σε περίπτωση διπλής διέλευσης. Η απόσταση του σώματος των αντλιών ή των διανομέων από το μέσον της εισόδου, επί της ρυμοτομικής γραμμής, ορίζεται σε 6 m τουλάχιστον για τις περιπτώσεις πρατηρίων που βρίσκονται σε δήμους, με πληθυσμό άνω των 5.000 κατοίκων και 5 m για τις λοιπές περιοχές. Στα υποδείγματα 6)α και 6)γ η οδός, στην οποία διαμορφώνεται η έξοδος του πρατηρίου είναι μονόδρομος, με φορά προς το σημείο τομής των ρυμοτομικών γραμμών και το πλάτος του οδοστρώματος εξόδου κυμαίνεται από 5 έως 7 m.
γ)γ) Υπόδειγμα 7. Το υπόδειγμα αυτό εφαρμόζεται όταν η συμβάλλουσα οδός είναι αδιέξοδος και δεν είναι δυνατή η εφαρμογή των υποδειγμάτων 1 έως 3. Στο υπόδειγμα αυτό οι διαστάσεις ορίζονται ως εξής: Το μήκος της νησίδας που διαμορφώνεται επί του πεζοδρομίου της οδού στην οποία δημιουργείται η είσοδος του πρατηρίου, μετρούμενο επί της ρυμοτομικής γραμμής είναι 10 m τουλάχιστον για τις περιπτώσεις πρατηρίων που βρίσκονται σε δήμους με πληθυσμό άνω των 5.000 κατοίκων και 8 m για τις λοιπές περιοχές. Το μήκος της νησίδας που διαμορφώνεται επί του πεζοδρομίου της οδού στην οποία δημιουργείται η έξοδος του πρατηρίου, μετρούμενο επί της ρυμοτομικής γραμμής είναι 3 m τουλάχιστον, για όλες τις περιοχές του παρόντος διατάγματος. Το ύψος της νησίδας από το κατάστρωμα της οδού ορίζεται σε 15 cm. Το πλάτος του οδοστρώματος προσπελάσεως στο χώρο του πρατηρίου εγκάρσια προς τον άξονα της εισόδου κυμαίνεται από 3,50 m έως 8 m και κάθετα στον άξονα της εξόδου κυμαίνεται από 5 έως 7 m. Η γωνία στροφής της εισόδου ως προς την οδό κυμαίνεται από 30° έως και 60°, ενώ η γωνία στροφής της εξόδου ορίζεται σε 90°. Η πλησιέστερη απόσταση της νησίδας των αντλιών από τη νοητή γραμμή που συνδέει τα σημεία εκείνα της εισόδου - εξόδου που βρίσκονται επί των ρυμοτομικών γραμμών και πλησιέστερα προς το σημείο τομής αυτών, ορίζεται σε 3 m τουλάχιστον. Η πλησιέστερη απόσταση της νησίδας των αντλιών από το κράσπεδο του πεζοδρομίου του κτιρίου ορίζεται σε 3,50 m. Η απόσταση του σώματος των αντλιών ή των διανομέων από το μέσον της εισόδου - εξόδου επί της ρυμοτομικής γραμμής, ορίζεται σε 5,50 m τουλάχιστον για τις περιπτώσεις πρατηρίων που βρίσκονται σε δήμους με πληθυσμό άνω των 5.000 κατοίκων και 4,50 m για τις λοιπές περιοχές.
γ) Υπόδειγμα 8. Στο υπόδειγμα αυτό καθορίζονται οι ελάχιστες αποστάσεις από διασταυρώσεις οδών για την εφαρμογή όλων των υποδειγμάτων διαμόρφωσης πρατηρίου υγρών καυσίμων του παρόντος διατάγματος και οι διαστάσεις σε αυτό ορίζονται ως εξής:
α)α) Η απόσταση μεταξύ του σημείου της εισόδου ή εξόδου επί της κρασπεδικής γραμμής, που βρίσκεται πλησιέστερα προς το σημείο τομής των ρυμοτομικών γραμμών από την προβολή επί της κρασπεδικής γραμμής του σημείου τομής των ρυμοτομικών γραμμών ορίζεται σε 5 m τουλάχιστον για τις περιπτώσεις πρατηρίων που βρίσκονται σε δήμο, με πληθυσμό άνω των 5.000 κατοίκων και 4 m για τις λοιπές περιοχές.
β)β) Σε περιπτώσεις που η συμβάλλουσα οδός είναι αδιαμόρφωτη είναι δυνατόν να εφαρμόζονται τα υποδείγματα 1, 2 και 3 με απόσταση της εισόδου ή εξόδου, από το σημείο τομής των ρυμοτομικών γραμμών, μηδενική. Όμως μετά τη διάνοιξη της οδού είναι υποχρεωτική η διαμόρφωση του πρατηρίου σύμφωνα με τις ελάχιστες αποστάσεις του παρόντος υποδείγματος.
δ) Υπόδειγμα 9. Το υπόδειγμα αυτό εφαρμόζεται σε περιπτώσεις πρατηρίων που διαμορφώνονται με εσωτερική απότμηση πεζοδρομίου και εφόσον το πλάτος του πεζοδρομίου για δήμους με πληθυσμό άνω των 5.000 κατοίκων είναι ίσο ή μεγαλύτερο των 5 m, στις δε λοιπές περιοχές είναι ίσο ή μεγαλύτερο των 4 m. Στο υπόδειγμα αυτό οι διαστάσεις ορίζονται ως εξής: Το μήκος της άνω βάσης της τραπεζοειδούς νησίδας που διαμορφώνεται επί του πεζοδρομίου, μετρούμενο παράλληλα στην κρασπεδική γραμμή και σε απόσταση 5 m από αυτή ορίζεται σε 5 m τουλάχιστον για τις έδρες των δήμων, με πληθυσμό έδρας άνω των 5.000 κατοίκων. Το ίδιο μήκος ορίζεται σε 4 m τουλάχιστον για τις λοιπές περιοχές και μετράται επί της παράλληλης προς την κρασπεδική γραμμή και σε απόσταση 4 m από αυτή. Το ύψος της νησίδας από το κατάστρωμα της οδού ορίζεται σε 15 cm. Το εγκαρσίως προς τον άξονα εισόδου - εξόδου πλάτος του οδοστρώματος προσπελάσεως στο χώρο του πρατηρίου κυμαίνεται από 3,50 m έως 8 m. Οι γωνίες στροφής της εισόδου - εξόδου ως προς την οδό κυμαίνονται από 30° έως και 60°. Η πλησιέστερη απόσταση της νησίδας των αντλιών από την άνω βάση της τραπεζοειδούς νησίδας και από το κράσπεδο του πεζοδρομίου του κτιρίου σε περίπτωση διπλής προσπέλασης ορίζεται σε 3,50 m τουλάχιστον. Η απόσταση του σώματος των αντλιών ή των διανομέων από το μέσον της εισόδου - εξόδου, επί της παράλληλης προς το κράσπεδο γραμμής που ορίζεται κατ' επέκταση της άνω βάσης της τραπεζοειδούς νησίδας ορίζεται σε 5 m τουλάχιστον για τις περιπτώσεις των πρατηρίων που βρίσκονται σε δήμους, με πληθυσμό άνω των 5.000 κατοίκων και 4 m για τις λοιπές περιοχές.
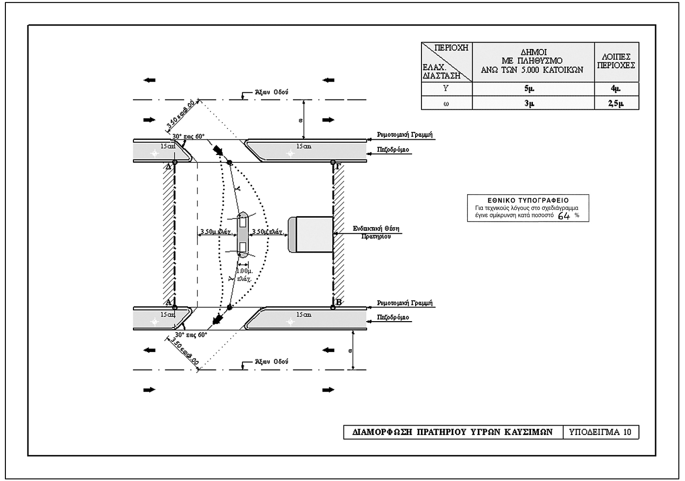
ε) Υπόδειγμα 10. Σε διαμπερή οικόπεδα μπορούν να διαμορφωθούν ανεξάρτητοι είσοδοι - έξοδοι σε κάθε οδό, σύμφωνα με τα υποδείγματα 1, 2, 3 και 9, τηρουμένων πάντοτε των ελάχιστων αποστάσεων του υποδείγματος 8. Επίσης μπορεί να διαμορφωθεί ανεξάρτητη είσοδος - έξοδος στη μία οδό και μόνο είσοδος ή μόνο έξοδος στην άλλη οδό. Σε αυτή την περίπτωση, όπως και στην περίπτωση διαμόρφωσης μόνο εισόδου στη μία οδό και μόνο εξόδου στην άλλη οδό, εφαρμόζονται τα προηγούμενα υποδείγματα σε συνδυασμό με το παρόν υπόδειγμα, όπου οι διαστάσεις ορίζονται ως εξής: Το εγκαρσίως προς τον άξονα εισόδου - εξόδου πλάτος του οδοστρώματος προσπελάσεως στο χώρο του πρατηρίου κυμαίνεται από 3,50 m έως 8 m. Οι γωνίες στροφής της εισόδου - εξόδου ως προς τις οδούς κυμαίνονται από 30° έως και 60° μοίρες. Η απόσταση του πλησιέστερου σημείου της νησίδας των αντλιών από τη νοητή ευθεία που ενώνει τα άκρα της εισόδου - εξόδου επί των ρυμοτομικών γραμμών προς το όριο του οικοπέδου και από το κράσπεδο του πεζοδρομίου του κτιρίου, σε περίπτωση διπλής προσπέλασης ορίζεται σε 3,50 m τουλάχιστον. Η απόσταση του σώματος των αντλιών από το μέσον της εισόδου - εξόδου επί της ρυμοτομικής γραμμής ορίζεται σε 5 m τουλάχιστον για τις περιπτώσεις πρατηρίων που βρίσκονται σε δήμους με πληθυσμό άνω των 5.000 κατοίκων και 4 m για τις λοιπές περιοχές.
στ) Υπόδειγμα 11. Σε περιπτώσεις που στις προτεινόμενες για ίδρυση πρατηρίων θέσεις υφίστανται ή προβλέπονται υποχρεωτικές επί των προσόψεων των ακινήτων παρόδιες στοές, εφαρμόζεται το παρόν υπόδειγμα. Στην περίπτωση αυτή η διαχωριστική γραμμή, του υπό την στοά δημόσιου χώρου από τον ιδιωτικό τοιούτο, επέχει θέση ρυμοτομικής γραμμής. Το μήκος της μικρής βάσης της κεντρικής τραπεζοειδούς νησίδας που διαμορφώνεται, μετρούμενο επί της σε εσοχή οικοδομικής γραμμής (του ισογείου), είναι 3 m τουλάχιστον για όλες τις περιοχές. Το ύψος του τμήματος της τραπεζοειδούς νησίδας, που βρίσκεται υπό τη στοά, δεν δύναται να είναι διαφορετικό από αυτό του πεζοδρομίου για διευκόλυνση της κίνησης των διερχομένων πεζών. Το εγκαρσίως προς τον άξονα εισόδου - εξόδου πλάτος του οδοστρώματος προσπελάσεως στο χώρο του πρατηρίου κυμαίνεται από 3,50 m έως 8 m. Οι γωνίες στροφής της εισόδου - εξόδου ως προς την οδό κυμαίνονται από 30° έως και 60° μοίρες. Η πλησιέστερη απόσταση της νησίδας των αντλιών από την άνω βάση της τραπεζοειδούς νησίδας και από το κράσπεδο του πεζοδρομίου του κτιρίου σε περίπτωση διπλής προσπέλασης, ορίζεται σε 3,50 m τουλάχιστον. Στις περιπτώσεις των πρατηρίων υγρών καυσίμων, λόγω της ειδικής λειτουργικής διάταξης αυτών, δεν είναι απαραίτητη η υλοποίηση της στοάς, παράλληλα με την ανέγερση του κτιρίου του πρατηρίου.
9. Η στα ανωτέρω υποδείγματα θέση του κτιρίου του πρατηρίου και των τυχόν ανεξαρτήτων χώρων ή κτιρίων για την άσκηση συμπληρωματικών δραστηριοτήτων, καθώς και η θέση, η εν γένει διάταξη και το σχήμα και ο αριθμός των νησίδων που μπορούν να τοποθετηθούν στην κύρια έκταση του πρατηρίου (που ορίζεται από τα σημεία Α, Β, Γ, Δ) είναι ενδεικτικά και δύναται να ποικίλει, με σκοπό την επίτευξη της καλύτερης λειτουργικότητας. Στις περιπτώσεις που ολόκληρη η οικοπεδική έκταση διατίθεται για τη χρήση του πρατηρίου και προβλέπεται η δυνατότητα κίνησης των οχημάτων πέριξ του κτιρίου του πρατηρίου, πρέπει απαραίτητα να κατασκευασθεί γύρω από το κτίριο του πρατηρίου κράσπεδο πλάτους 75 cm τουλάχιστον. Σε περίπτωση που το πέριξ του κτιρίου του πρατηρίου κράσπεδο χρησιμοποιείται για εγκατάσταση αντλιών ή διανομέων, το πλάτος του, τοπικά, πρέπει να είναι 1 m τουλάχιστον. Η κλίση του δαπέδου στάθμευσης, στον παρά τη νησίδα αντλιών χώρο ανεφοδιασμού των οχημάτων και σε απόσταση 2.5 m τουλάχιστον περιμετρικά αυτής, δεν υπερβαίνει το επτά τοις εκατό (7%), προς κάθε κατεύθυνση.
10. Σε περίπτωση ιδιόμορφων οικοπέδων (πολυγωνικών, διαμπερών κ.λ.π.) προοριζομένων για την ίδρυση πρατηρίων, επί των οποίων καθίσταται ανέφικτη η ακριβής εφαρμογή των εγκεκριμένων σχεδιαγραμμάτων είναι δυνατή η διαμόρφωση των προσπελάσεων και των χώρων στάθμευσης των πρατηρίων δια συνδυασμού των εγκεκριμένων από το παρόν σχεδιαγραμμάτων τηρουμένων των ελαχίστων αποστάσεων. Επίσης είναι δυνατή η διαμόρφωση των προσπελάσεων (διάταξη εισόδου - εξόδου) των πρατηρίων επί γωνιακών οικοπέδων δια συνδυασμού των εγκεκριμένων από το παρόν σχεδιαγραμμάτων, τηρουμένων των ελαχίστων αποστάσεων με σκοπό την επίτευξη καλύτερης λειτουργικότητας και της καλύτερης εξυπηρέτησης της κυκλοφορίας.
11. Σε περιπτώσεις κατά τις οποίες στις προτεινόμενες θέσεις για ίδρυση πρατηρίων υφίστανται ή προβλέπονται υποχρεωτικές επί των προσόψεων ακινήτων παρόδιοι στοές εφαρμόζονται τα ίδια υποδείγματα 1, 2, 3, 4, 5, 6, 7, 9 και 10 λαμβάνοντας ως οικοδομική γραμμή τη διαχωριστική γραμμή του δημόσιου χώρου και του ιδιωτικού χώρου κάτω από τη στοά.
12. Η κεντρική τραπεζοειδής νησίδα δύναται να επεκταθεί εσωτερικά της ρυμοτομικής γραμμής για τη διαμόρφωση χώρου πρασίνου ή για την τοποθέτηση κάθετης σήμανσης σχετικής με το πρατήριο, υπό την προϋπόθεση ότι τηρείται η ελάχιστη απόσταση μεταξύ της νησίδας αυτής, όπως διαμορφώνεται τελικά, και της πλησιέστερης νησίδας των αντλιών ή των διανομέων ή του πεζοδρομίου του κτιρίου, σύμφωνα με τα παραπάνω υποδείγματα. Εάν στις προτεινόμενες για ίδρυση πρατηρίων θέσεις δεν έχουν διαμορφωθεί τα πεζοδρόμια ούτε ορίζεται το πλάτος αυτών, ύστερα από βεβαίωση της αρμόδιας αρχής, εφαρμόζονται τα εγκεκριμένα σχεδιαγράμματα, όπως αυτά προκύπτουν με διαμόρφωση πεζοδρομίου εις βάρος του οικοπέδου ελάχιστου πλάτους 1 m (υπόδειγμα 12). Στις περιπτώσεις που δεν είναι σαφώς καθορισμένη η ρυμοτομική γραμμή, αλλά έχουν ολοκληρωθεί οι απαλλοτριώσεις, η ρυμοτομική γραμμή καθορίζεται σύμφωνα με τις κείμενες διατάξεις από την αρμόδια Πολεοδομική αρχή οπότε η τραπεζοειδής νησίδα διαμορφώνεται επί της ως άνω καθοριζόμενης ρυμοτομικής γραμμής. Σε περίπτωση που δεν έχουν ολοκληρωθεί οι απαλλοτριώσεις, η τραπεζοειδής νησίδα διαμορφώνεται επί του ήδη διαμορφωμένου πεζοδρομίου με την υποχρέωση προσαρμογής, σε περίπτωση διαπλάτυνσης, στη νέα ρυμοτομική γραμμή.
13. Μετατόπιση ή προσθήκη αντλιών ή διανομέων ή αντίστοιχα μετατόπιση ή προσθήκη δεξαμενών ή αντικατάσταση αυτών στην ίδια θέση λειτουργούντος πρατηρίου επιτρέπεται κατόπιν προηγούμενης έγκρισης της αρμοδίας Υπηρεσίας Μεταφορών και Επικοινωνιών της οικείας Νομαρχιακής Αυτοδιοίκησης, η οποία εκδίδεται με την υποβολή των δικαιολογητικών που αναφέρονται στο άρθρο 17 παράγραφος 4 περιπτώσεις α', β', γ', και δ', χωρίς να απαιτείται άλλη διαδικασία ή άδεια από άλλη υπηρεσία. Για την αντικατάσταση των αντλιών ή διανομέων στην ίδια θέση δεν απαιτείται έγκριση της υπηρεσίας εάν οι αντλίες ή διανομείς που τοποθετούνται πληρούν τους όρους του παρόντος.
14. Σε γωνιακά πρατήρια (υποδείγματα 4, 5, 6 και 7) επιβάλλεται κατά την κρίση της υπηρεσίας, ανάλογα με τις συνθήκες της περιοχής η κατασκευή τοίχου (στηθαίο) ύψους τουλάχιστον 50 cm επί της ρυμοτομικής ή οικοδομικής γραμμής και σε όλο το μήκος των διαστάσεων με τα στοιχεία Ζ και Ζ'.
















15. Η επιλογή του εγκαρσίως προς τον άξονα εισόδου - εξόδου πλάτους οδοστρώματος προσπέλασης στο χώρο του πρατηρίου, της γωνίας στροφής της εισόδου - εξόδου ως προς τις οδούς και του μήκους της τραπεζοειδούς νησίδας που μετράται επί της ρυμοτομικής γραμμής πρέπει να διευκολύνει την απρόσκοπτη είσοδο - έξοδο κάθε είδους οχήματος που πρόκειται να εξυπηρετήσει ο χώρος του πρατηρίου. Στα σχέδια, που θα υποβάλλονται προς έγκριση, θα πρέπει να εμφαίνονται τα ίχνη των τροχιών των οχημάτων αυτών.
16. Στις τραπεζοειδείς νησίδες εφόσον διαμορφώνονται επί του πεζοδρομίου θα προβλέπεται διάδρομος πλάτους 1 m για διέλευση ατόμων με ειδικές ανάγκες. Η διαμόρφωση τους θα γίνεται σύμφωνα με τις ισχύουσες τεχνικές προδιαγραφές.
17. Τα πρατήρια που χρησιμοποιούνται και για ανεφοδιασμό μικρών σκαφών, δύνανται να ιδρύονται, σύμφωνα με τις κείμενες διατάξεις και τις διατάξεις του νόμου περί αιγιαλού και παραλίας, σε θέσεις κοντά σε προβλήτες σκαφών και μαρίνες, μετά και από σύμφωνη γνώμη της αρμόδιας Λιμενικής Αρχής. Η συναίνεση της ανωτέρω υπηρεσίας είναι απαραίτητη, προκειμένου να χορηγηθεί η καταλληλότητα θέσης για την ίδρυση τέτοιου πρατηρίου.
18. Στις περιπτώσεις λειτουργούντος πρατηρίου υγρών καυσίμων, όπου σε όμορο οικόπεδο λειτουργεί άλλη επιχειρηματική δραστηριότητα, πλην πρατηρίου Παροχής Καυσίμων και Ενέργειας της παραγράφου 7 του άρθρου 114 του νόμου 4070/2012, όπως ισχύει, με εξαίρεση αμιγές πρατήριο υγραερίου (LPG), ή αμιγές πρατήριο πεπιεσμένου φυσικού αερίου (CNG), ή μικτό πρατήριο υγραερίου (LPG) και πεπιεσμένου φυσικού αερίου (CNG), επιτρέπεται η επικοινωνία του οικοπέδου του με αυτό του πρατηρίου, τούτου επιτυγχανόμενου μέσω της μερικής κατάργησης της περίφραξης στο κοινό τους όριο, επί μήκους 6 m από το άκρο της ρυμοτομικής γραμμής, για τη χάραξη και κατασκευή ασφαλτοστρωμένης εσωτερικής διόδου επικοινωνίας κατάλληλων προδιαγραφών σύμφωνα με τις κείμενες διατάξεις, έτσι ώστε η ανωτέρω αναφερόμενη όμορη επιχείρηση και το λειτουργούν πρατήριο υγρών καυσίμων να έχουν, είτε τις υφιστάμενες προσπελάσεις των, είτε κοινή σύνδεση με την έμπροσθεν αυτών οδό (ή οδούς), δηλαδή κοινή είσοδο και έξοδο κατά στάδιο ανάπτυξής της.
Στη περίπτωση αυτή, για την έγκριση των ανωτέρω, υποβάλλεται στην οικεία περιφερειακή Υπηρεσία Μεταφορών και Επικοινωνιών αίτηση του εκμεταλλευτή του λειτουργούντος πρατηρίου υγρών καυσίμων, η οποία συνοδεύεται από τα εξής δικαιολογητικά:
α) Τεχνική έκθεση, σε 5 αντίγραφα, του υπεύθυνου κατά το Νόμο Μηχανικού Πανεπιστημιακής Εκπαίδευσης ή Μηχανικού Τεχνολογικής Εκπαίδευσης, η οποία αναφέρεται στην επερχόμενη μεταβολή στο κοινό όριο του πρατηρίου και της όμορης αυτού ιδιοκτησίας, που κάνει χρήση της υπόψη διάταξης.
β) Σχεδιάγραμμα γενικής διάταξης σε 5 αντίγραφα, κατάλληλης κλίμακας, στο οποίο εκτός του οικοπέδου του πρατηρίου υγρών καυσίμων απεικονίζεται και το όμορο αυτού ακίνητο το οποίο κάνει χρήση της υπόψη διάταξης, μέσω της κατασκευής εσωτερικής διόδου επικοινωνίας τους.
Επίσης, στο υπόψη σχεδιάγραμμα θα εμφαίνεται, πλέον της οριζοντιογραφίας της χάραξης της εσωτερικής διόδου επικοινωνίας των παραπάνω ακινήτων και η οριζόντια και κατακόρυφη σήμανση αυτής, ιδιαίτερα αυτή που πρέπει να τοποθετηθεί προ της εισόδου / διέλευσής της από την όμορη του πρατηρίου επιχείρηση στο οικόπεδο του πρατηρίου ή και αντιστρόφως.
Τέλος, στο υπόψη σχεδιάγραμμα θα απεικονίζονται και σχέδια λεπτομερειών, κατάλληλης κλίμακας της εσωτερικής διόδου επικοινωνίας, όπως μηκοτομή και κατά πλάτος τομές αυτής.
γ) Συμβολαιογραφικό έγγραφο από το οποίο θα προκύπτει η συναίνεση του εκμεταλλευτή της επιχειρηματικής δραστηριότητας που λειτουργεί σε όμορο οικόπεδο με αυτό του πρατηρίου υγρών καυσίμων, για τη δημιουργία της εσωτερικής διόδου επικοινωνίας των ακινήτων τους.
δ) Έγκριση της αρμόδιας για την οδό υπηρεσίας, η οποία έχει χορηγήσει τις αρχικές εγκρίσεις κυκλοφοριακής προσπέλασης του υπό λειτουργική σύνδεση λειτουργούντος πρατηρίου υγρών καυσίμων και της όμορης αυτού επιχείρησης, που επιθυμεί να ενταχθεί στις διατάξεις της παρούσας, η οποία περιλαμβάνει επίσης και την έγκριση της υποχρεωτικής εγκατάστασης της οριζόντιας και κατακόρυφης σήμανσης για την ομαλή ρύθμιση της μηχανοκίνητης κυκλοφορίας κατά μήκος της εσωτερικής διόδου επικοινωνίας και ιδιαίτερα στην προ της εισόδου / διέλευσης αυτής, από το πρατήριο υγρών καυσίμων προς την όμορη αυτού επιχείρηση ή αντιστρόφως.
ε) Έγκριση της, κατά περίπτωση, αδειοδοτούσας αρχής της επιχειρηματικής δραστηριότητας που λειτουργεί σε όμορο οικόπεδο με αυτό του πρατηρίου υγρών καυσίμων, για τη δημιουργία της εσωτερικής διόδου επικοινωνίας των ακινήτων τους, με το οικόπεδο του πρατηρίου υγρών καυσίμων ή εναλλακτικά, σχετική Βεβαίωση της αδειοδοτούσας, την όμορη δραστηριότητα, αρχής στην οποία να αναγράφεται ότι συμφωνεί για την ανωτέρω κυκλοφοριακή προσπέλαση του υπό λειτουργική σύνδεση λειτουργούντος πρατηρίου υγρών καυσίμων και της όμορης αυτού επιχείρησης.
Έπειτα από την υποβολή και εξέταση των ανωτέρω δικαιολογητικών από την οικεία περιφερειακή υπηρεσία μεταφορών και επικοινωνιών, χορηγείται η σχετική έγκριση, εφόσον τα παραπάνω δικαιολογητικά είναι πλήρη, ορθά και πληρούν τις κείμενες διατάξεις.
Μετά την υλοποίηση της ανωτέρω αναφερόμενης εγκριθείσας εσωτερικής διόδου επικοινωνίας του λειτουργούντος πρατηρίου υγρών καυσίμων και της όμορης αυτού επιχείρησης, χορηγείται νέα ενιαία άδεια λειτουργίας του πρατηρίου υγρών καυσίμων, η οποία συμπεριλαμβάνει το σύνολο των νομίμων εγκαταστάσεών του, με την υποβολή αίτησης που θα συνοδεύεται από:
α) Νέο Πιστοποιητικό Πυρασφάλειας στο οποίο αναγράφεται η χρονική διάρκεια ισχύος του. Το Πιστοποιητικό αυτό πρέπει να ανανεώνεται πριν από την ημερομηνία λήξεώς του από τη πυροσβεστική υπηρεσία που το χορήγησε, με φροντίδα του εκμεταλλευτή του πρατηρίου.
β) Υπεύθυνη δήλωση του άρθρου 8 του υπεύθυνου κατά το Νόμο Μηχανικού Πανεπιστημιακής Εκπαίδευσης ή Μηχανικού Τεχνολογικής Εκπαίδευσης που επέβλεψε την εκτέλεση των εργασιών κατασκευής της εγκριθείσας εσωτερικής διόδου επικοινωνίας του λειτουργούντος πρατηρίου υγρών καυσίμων και της όμορης αυτού επιχείρησης, στην οποία θα δηλώνεται ότι οι παραπάνω εργασίες εκτελέσθηκαν σύμφωνα με τα εγκριθέντα σχεδιαγράμματα και ότι τηρήθηκαν οι όροι και οι προϋποθέσεις της παρούσας και του προεδρικού διατάγματος 1224/1981, όπως ισχύει.
γ) Άδεια μερικής κατεδάφισης της τυχόν υπάρχουσας περίφραξης του πρατηρίου υγρών καυσίμων, από την οικεία Υπηρεσία Δόμησης, η οποία είχε εκδώσει την άδεια δόμησής της ή την οικοδομική άδεια του πρατηρίου.
ΣΗΜΕΙΩΣΗ: Η παράγραφος 18 προστέθηκε με την παράγραφο 2 του άρθρου 1 της υπ' αριθμόν 656/60/2014 απόφασης (ΦΕΚ 70/Β/2015).
|