Προεδρικό διάταγμα 17/3/11b - Άρθρο 1

Άρθρο 1


Συνδεθείτε στην Υπηρεσία Νομοσκόπιο
Είσοδος στην υπηρεσία Νομοσκόπιο.
   
Χρήστης
Κωδικός
  Υπενθύμιση στοιχείων λογαριασμού
   
 
Νέοι χρήστες
Εάν είστε νέος χρήστης, θα πρέπει να δημιουργήσετε ένα ΔΩΡΕΑΝ λογαριασμό προκειμένου να φύγει το παράθυρο αυτό και να αποκτήσετε πλήρη πρόσβαση στην υπηρεσία Νομοσκόπιο.
Δημιουργία νέου λογαριασμού

 

 

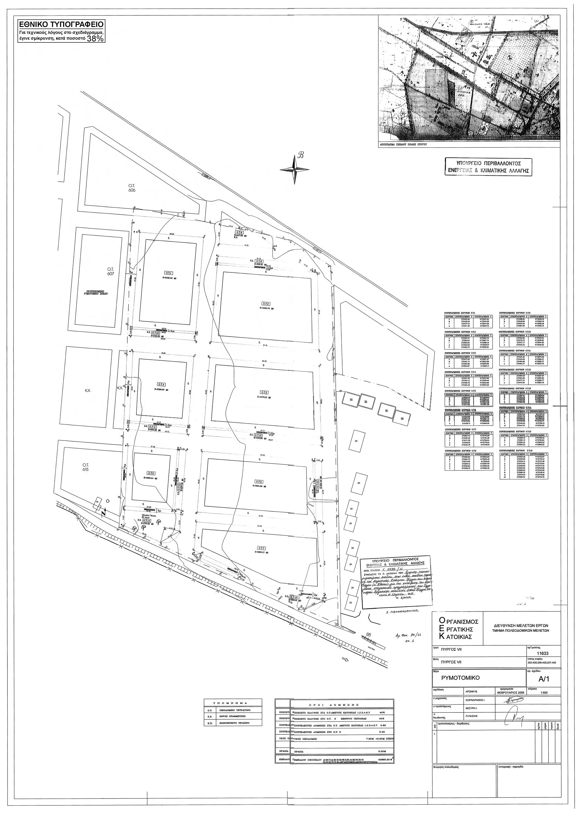
Εγκρίνεται τοπικό ρυμοτομικό σχέδιο στην εκτός σχεδίου περιοχή της Δημοτικής Ενότητας Πύργου του Δήμου Πύργου (Νομού Ηλείας), για την εκτέλεση του επείγοντος στεγαστικού προγράμματος του Οργανισμού Εργατικής Κατοικίας Πύργος VII με τη δημιουργία:

 

α) Των 1, 2, 3, 4, 6 και 7 οικοδομικών τετραγώνων για την ανέγερση κατοικιών.

 

β) Του Οικοδομικού Τετραγώνου 5 στο οποίο επιτρέπονται τα εμπορικά καταστήματα που εξυπηρετούν τις καθημερινές ανάγκες των κατοίκων της περιοχής (παντοπωλείο, φαρμακείο, χαρτοπωλείο κ.λ.π.), αναψυκτήρια, χώροι συνάθροισης κοινού, πολιτιστικά κτίρια και εν γένει πολιτιστικές εγκαταστάσεις και κτίρια κοινωνικής πρόνοιας.

 

γ) Την έγκριση οδών, πεζοδρόμων, χώρων κοινόχρηστου πρασίνου και χώρων στάθμευσης αυτοκινήτων, όπως οι παραπάνω ρυθμίσεις των παραγράφων α, β και γ φαίνονται στο σχετικό πρωτότυπο διάγραμμα σε κλίμακα 1:500, που θεωρήθηκε από τον Προϊστάμενο της Διεύθυνσης Τοπογραφικών Εφαρμογών με την 5938/2011 πράξη του και που αντίτυπό του σε φωτοσμίκρυνση δημοσιεύεται με το παρόν διάταγμα.

 

pd.17.3.11b



Copyright © 2020 TechnoLogismiki. Με την επιφύλαξη παντός δικαιώματος.