| Συνδεθείτε στην Υπηρεσία Νομοσκόπιο | | | | | Νέοι χρήστες | | Εάν είστε νέος χρήστης, θα πρέπει να δημιουργήσετε ένα ΔΩΡΕΑΝ λογαριασμό προκειμένου να φύγει το παράθυρο αυτό και να αποκτήσετε πλήρη πρόσβαση στην υπηρεσία Νομοσκόπιο. | | Δημιουργία νέου λογαριασμού | | |
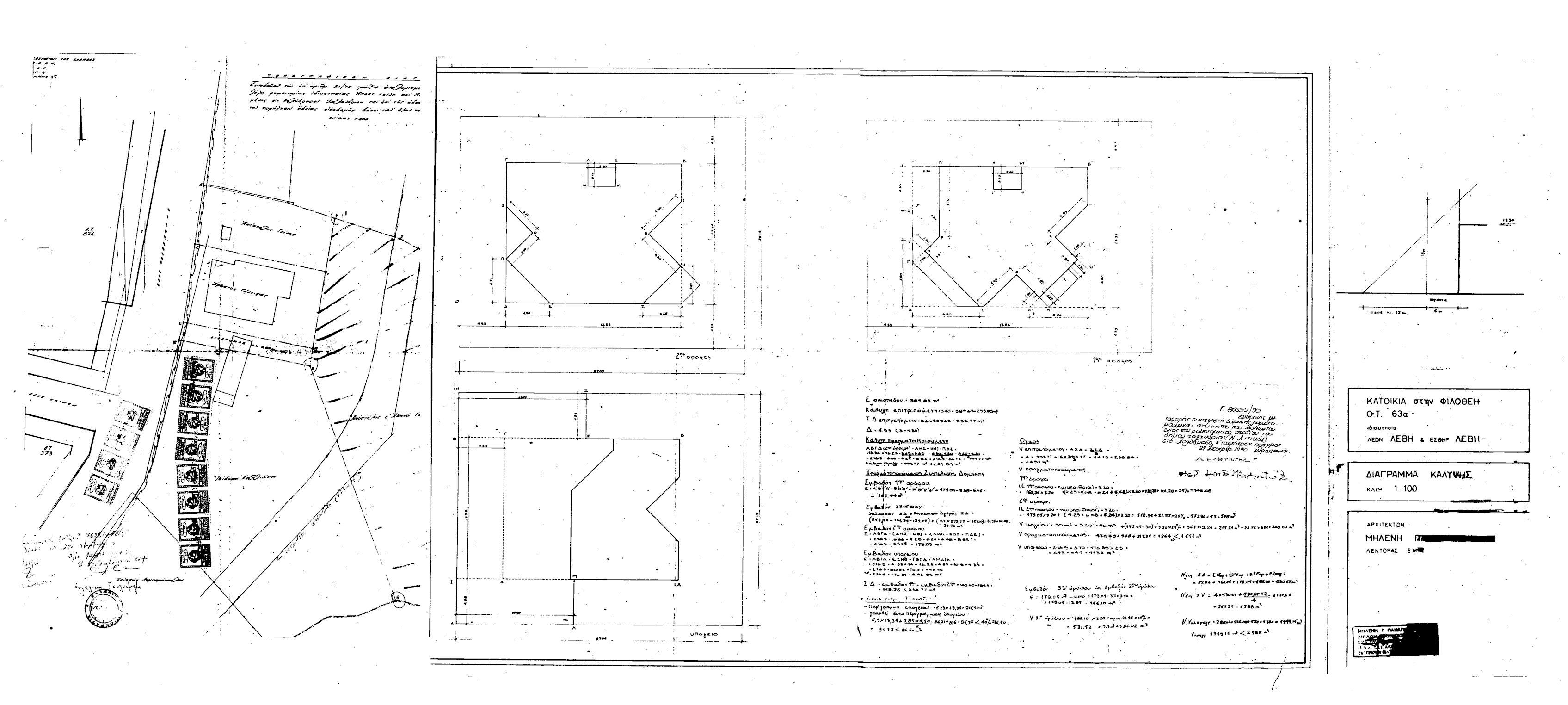
1. Εγκρίνεται η πραγματοποίηση του κατά το προηγούμενο άρθρο 1 μεταφερομένου συντελεστή δόμησης και δη κατά 176,88 m2 από το περιγραφόμενο σ' αυτό βαρυνόμενο ακίνητο, σε άλλο ακίνητό (ωφελούμενο), που βρίσκεται εντός του ρυμοτομικού σχεδίου του Δήμου Φιλοθέης (νομού Αττικής) και ειδικότερα επί της οδού Δαναΐδων αριθμός 10, φερόμενο ως ιδιοκτησία Λέων Λεβή και Εσθήρ Λεβή, όπως το ωφελούμενο ακίνητο φαίνεται με στοιχεία A Β Γ Δ Α στο σχετικό πρωτότυπο διάγραμμα σε κλίμακα 1:100, που θεωρήθηκε από τον Προϊστάμενο της Διεύθυνσης Τοπογραφικών Εφαρμογών με την 86652/1990 πράξη του και που αντίτυπό του σε φωτοσμίκρυνση δημοσιεύεται με το παρόν διάταγμα.
2. Τα ειδικότερα στοιχεία πραγματοποίησης της μεταφοράς συντελεστή δόμησης είναι τα εξής: Συνολική δομήσιμη επιφάνεια, η οποία δύναται να δομηθεί στο ωφελούμενο ακίνητο επιπλέον της επιτρεπομένης βάσει των ισχυόντων στην περιοχή όρων δόμησης 176,88 m2 που αντιστοιχεί σε 290,02 m2 του βαρυνομένου ακινήτου.
3. Τα ειδικότερα στοιχεία του ωφελουμένου ακινήτου μετά τη μεταφορά είναι τα εξής:
α) Εμβαδόν οικοπέδου: 589,63 m2
β) Ποσοστό κάλυψης: 40%
γ) Συντελεστής δόμησης: 0,8999
δ) Μέγιστο επιτρεπόμενο ύψος του κτιρίου: 13,30 m.
ε) Το κτίριο πρέπει να ανεγερθεί εντός του ωφελούμενου ακινήτου σύμφωνα με το διάγραμμα κάλυψης σε κλίμακα 1:100, που θεωρήθηκε από τον Προϊστάμενο της Διεύθυνσης Τοπογραφικών Εφαρμογών με την 86652/1990 πράξη του και που αντίτυπό του σε φωτοσμίκρυνση δημοσιεύεται με το παρόν διάταγμα.
