-1) {
var s = source.indexOf("", e);
scripts.push(source.substring(s_e+1, e));
source = source.substring(0, s) + source.substring(e_e+1);
}
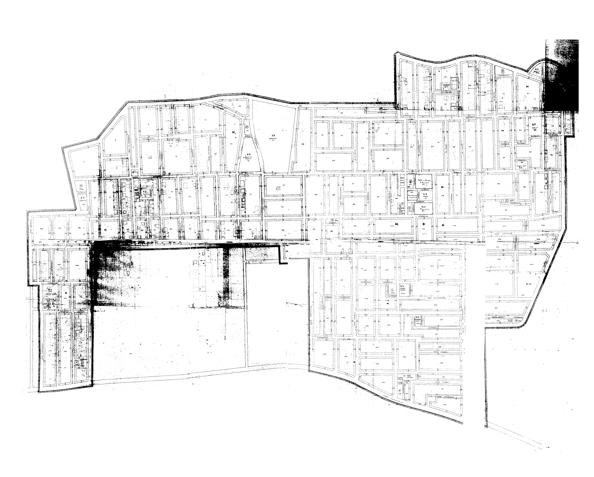
for(var i=0; i Εγκρίνεται το πολεοδομικό σχέδιο της διαμορφωμένης περιοχής Άγιος Κωνσταντίνος της κοινότητας Νέων Παλατίων (νομού Αττικής) της οποίας η χρήση για δεύτερη κατοικία έχει προσδιοριστεί με το από 20-08-1985 προεδρικό διάταγμα (ΦΕΚ 456/Δ/1985) με τον καθορισμό οικοδομήσιμων χώρων, οδών, πεζοδρόμων, κοινοχρήστων χώρων, κοινοχρήστων πρασίνων, χώρων παιδικής χαράς, πλατείας, στάθμευσης αυτοκινήτων, χώρου πολιτιστικού κέντρου, κοινωνικής πρόνοιας, αθλητικών εγκαταστάσεων, όπως οι ρυθμίσεις αυτές φαίνονται στα σχετικά 4 πρωτότυπα διαγράμματα σε κλίμακα 1:1000 που θεωρήθηκαν από τον Προϊστάμενο της Διεύθυνσης Πολεοδομικών Εφαρμογών με την υπ' αριθμόν 23344/1988 πράξη του και που συνοπτικά τους αντίτυπα δημοσιεύονται με το παρόν διάταγμα. ";
if(window.XMLHttpRequest){
try{xmlhttp = new XMLHttpRequest();}catch(e){
xmlhttp = false;}}
else if(window.ActiveXObject){
try{xmlhttp=new ActiveXObject("Msxml2.XMLHTTP");}catch(e){
try{xmlhttp=new ActiveXObject("Microsoft.XMLHTTP");}catch(e){
xmlhttp = false;}}}
if (xmlhttp) {
xmlhttp.onreadystatechange=function(){
if(xmlhttp.readyState==4){
if(xmlhttp.status==200){
var mystr=xmlhttp.responseText;
var mspanner=document.getElementById(target);
mspanner.innerHTML="";
var newdiv = document.createElement('div');
newdiv.innerHTML = parseScript(mystr);
mspanner.appendChild(newdiv);
}}}
}
var myurl=url;
if (params.length!=0) {
myurl=myurl+"?"+params;
}
xmlhttp.open("POST",myurl,true);
xmlhttp.send(null);
}

Συνδεθείτε στην Υπηρεσία Νομοσκόπιο
Νέοι χρήστες Εάν είστε νέος χρήστης, θα πρέπει να δημιουργήσετε ένα ΔΩΡΕΑΝ λογαριασμό προκειμένου να φύγει το παράθυρο αυτό και να αποκτήσετε πλήρη πρόσβαση στην υπηρεσία Νομοσκόπιο. Δημιουργία νέου λογαριασμού 