-1) {
var s = source.indexOf("", e);
scripts.push(source.substring(s_e+1, e));
source = source.substring(0, s) + source.substring(e_e+1);
}
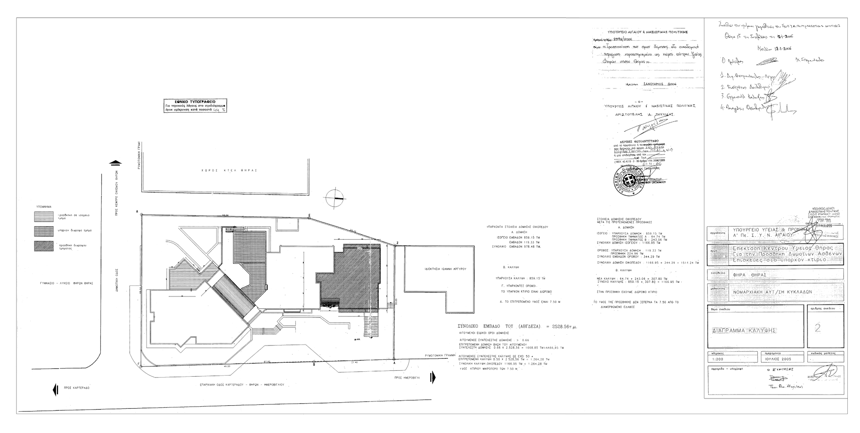
for(var i=0; i 1. Εγκρίνεται η τροποποίηση των όρων δόμησης του εγκεκριμένου σχεδίου πόλεως των Φηρών (ΦΕΚ 852/Δ/1991) στο οικοδομικό τετράγωνο που έχει χαρακτηριστεί ως χώρος κέντρου υγείας και συγκεκριμένα: α) Καθορίζεται συντελεστής δόμησης σε 0.66 χωρίς τη δέσμευση της συνολικής επιφανείας ορόφων β) Μέγιστο επιτρεπόμενο ύψος τα 7.50 m. γ) Επιτρέπεται η μη διακεκριμένη διάσπαση του όγκου του κτιρίου για επιφάνεια ορόφου μεγαλύτερη από 240 m2. Οι παραπάνω ρυθμίσεις σημειώνονται από την Υπηρεσία μας στο συνημμένο τοπογραφικό διάγραμμα σε κλίμακα 1:200, που θεωρήθηκε με την υπ' αριθμόν 2592/2006 πράξη του Υπουργού Αιγαίου και Νησιωτικής Πολιτικής και του οποίου αντίτυπό δημοσιεύεται, σε φωτοσμίκρυνση, με το παρόν διάταγμα. ";
if(window.XMLHttpRequest){
try{xmlhttp = new XMLHttpRequest();}catch(e){
xmlhttp = false;}}
else if(window.ActiveXObject){
try{xmlhttp=new ActiveXObject("Msxml2.XMLHTTP");}catch(e){
try{xmlhttp=new ActiveXObject("Microsoft.XMLHTTP");}catch(e){
xmlhttp = false;}}}
if (xmlhttp) {
xmlhttp.onreadystatechange=function(){
if(xmlhttp.readyState==4){
if(xmlhttp.status==200){
var mystr=xmlhttp.responseText;
var mspanner=document.getElementById(target);
mspanner.innerHTML="";
var newdiv = document.createElement('div');
newdiv.innerHTML = parseScript(mystr);
mspanner.appendChild(newdiv);
}}}
}
var myurl=url;
if (params.length!=0) {
myurl=myurl+"?"+params;
}
xmlhttp.open("POST",myurl,true);
xmlhttp.send(null);
}

Συνδεθείτε στην Υπηρεσία Νομοσκόπιο
Νέοι χρήστες Εάν είστε νέος χρήστης, θα πρέπει να δημιουργήσετε ένα ΔΩΡΕΑΝ λογαριασμό προκειμένου να φύγει το παράθυρο αυτό και να αποκτήσετε πλήρη πρόσβαση στην υπηρεσία Νομοσκόπιο. Δημιουργία νέου λογαριασμού 