Προεδρικό διάταγμα 30/9/92 - Άρθρο 1

Άρθρο 1


Συνδεθείτε στην Υπηρεσία Νομοσκόπιο
Είσοδος στην υπηρεσία Νομοσκόπιο.
   
Χρήστης
Κωδικός
  Υπενθύμιση στοιχείων λογαριασμού
   
 
Νέοι χρήστες
Εάν είστε νέος χρήστης, θα πρέπει να δημιουργήσετε ένα ΔΩΡΕΑΝ λογαριασμό προκειμένου να φύγει το παράθυρο αυτό και να αποκτήσετε πλήρη πρόσβαση στην υπηρεσία Νομοσκόπιο.
Δημιουργία νέου λογαριασμού

 

 

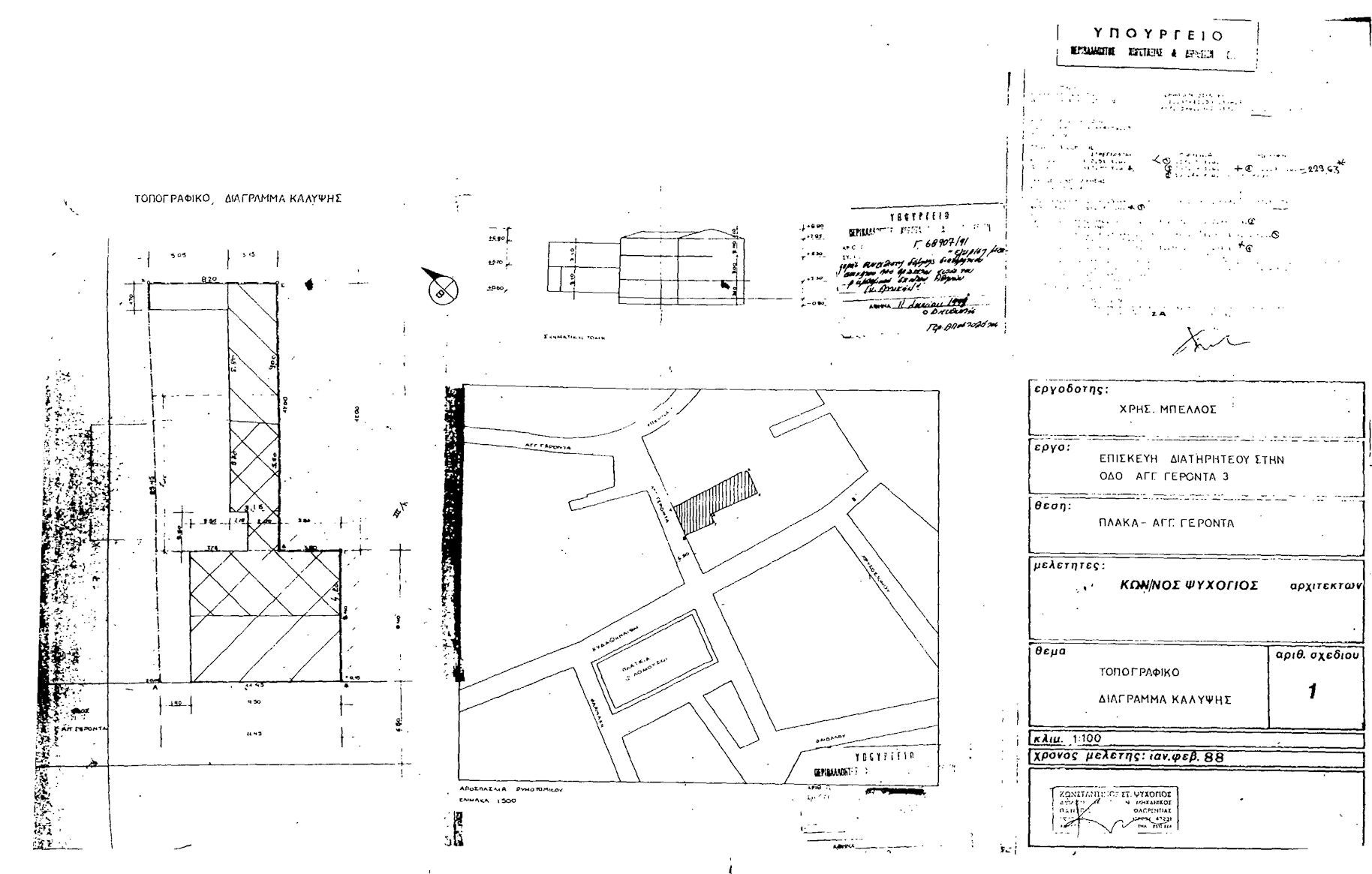
1. Εγκρίνεται η μεταφορά του συντελεστή δόμησης του ακινήτου (βαρυνομένου) που βρίσκεται εντός του ρυμοτομικού σχεδίου Αθηνών (νομού Αττικής) επί της οδού Αγγέλου Γέροντα αριθμός 3 στην Πλάκα, το οποίο έχει χαρακτηρισθεί ως διατηρητέο με το από 24-10-1980 προεδρικό διάταγμα (ΦΕΚ 617/Δ/1980) και του οποίου την αποκλειστική κυριότητα έχει η παραπάνω συναινούσα στη μεταφορά του συντελεστή εταιρεία Εργοδομική Τουριστικές - Ξενοδοχειακές και Οικοδομικές Επιχειρήσεις, Αγίας Πελαγίας ανώνυμη εταιρεία όπως το βαρυνόμενο ακίνητο φαίνεται με στοιχεία Α, Β, Γ, Ε, Ζ, Α στο σχετικό πρωτότυπο διάγραμμα σε κλίμακα 1:100 που θεωρήθηκε από τον Προϊστάμενο της Διεύθυνσης Τοπογραφικών Εφαρμογών με την 68907/1991 πράξη και που αντίτυπο του σε φωτοσμίκρυνση δημοσιεύεται με το παρόν διάταγμα.

 

2. Τα ειδικότερα στοιχεία του βαρυνομένου ακινήτου και της μεταφοράς του συντελεστή δόμησης είναι τα εξής:

 

α) Εμβαδόν οικοπέδου: 232,17 m2

β) Συντελεστής δόμησης: 1,8

γ) Ποσοστό κάλυψης: 70%.

δ) Επιτρεπόμενη δόμηση: 232,17 x 1,8=417,90 m2

ε) Υπάρχουσα δόμηση: 229,63 m2

στ) Μεταφερόμενες δομήσιμες επιφάνειες: 188,27 m2 (23,46 m2 από ισόγειο και 164,81 m2 από ορόφους).

 

pd.30.9.92

 

 

ΣΗΜΕΙΩΣΗ: Το παρόν άρθρο καταργήθηκε με το άρθρο 1 της υπ' αριθμόν 21165/2017 απόφασης (ΦΕΚ 100/ΑΑΠ/2017).

 



Copyright © 2020 TechnoLogismiki. Με την επιφύλαξη παντός δικαιώματος.