Προεδρικό διάταγμα 31/5/01 - Άρθρο 1

Άρθρο 1


Συνδεθείτε στην Υπηρεσία Νομοσκόπιο
Είσοδος στην υπηρεσία Νομοσκόπιο.
   
Χρήστης
Κωδικός
  Υπενθύμιση στοιχείων λογαριασμού
   
 
Νέοι χρήστες
Εάν είστε νέος χρήστης, θα πρέπει να δημιουργήσετε ένα ΔΩΡΕΑΝ λογαριασμό προκειμένου να φύγει το παράθυρο αυτό και να αποκτήσετε πλήρη πρόσβαση στην υπηρεσία Νομοσκόπιο.
Δημιουργία νέου λογαριασμού

 

 

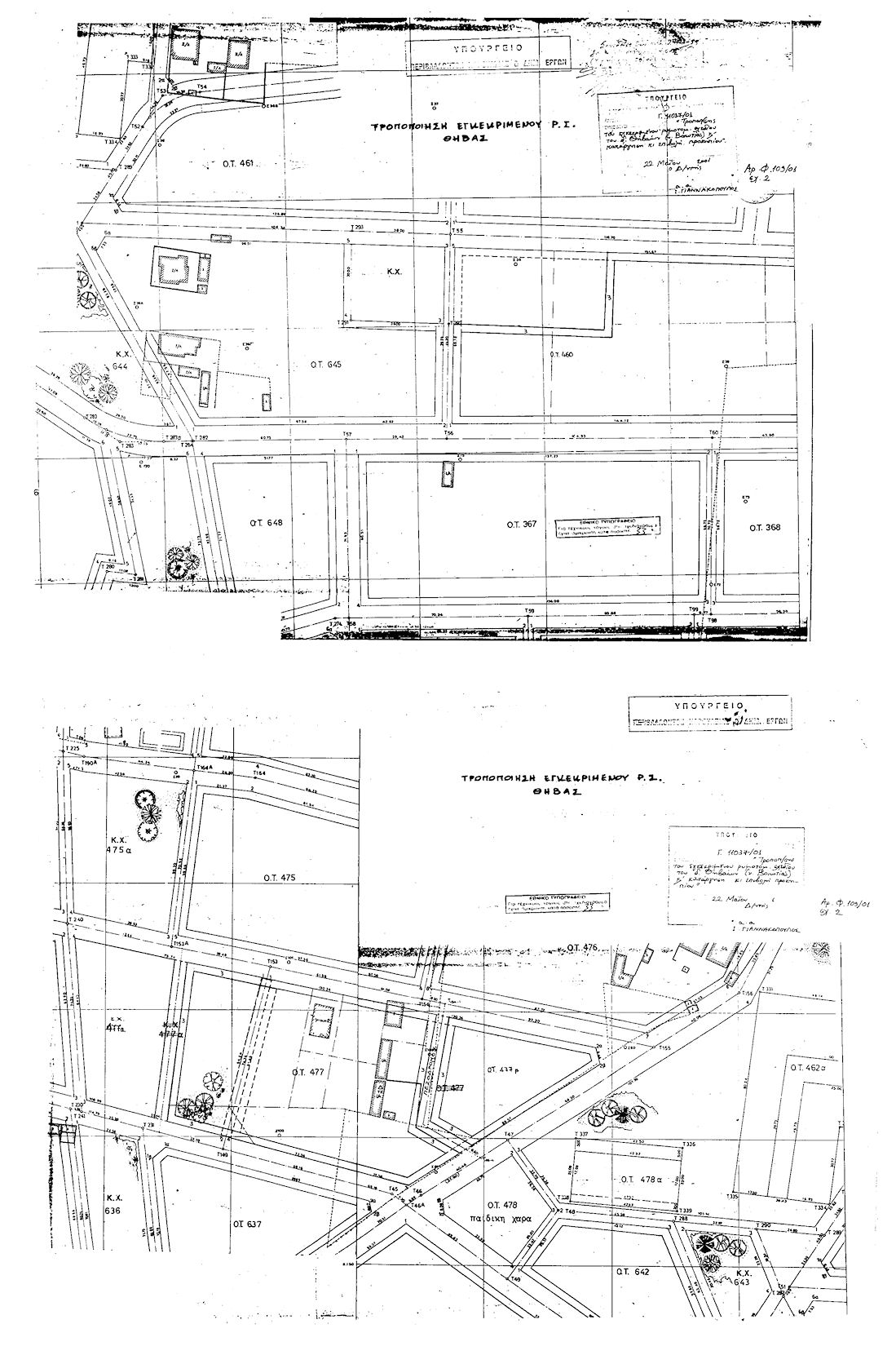
Εγκρίνεται η τροποποίηση του εγκεκριμένου ρυμοτομικού σχεδίου του Δήμου Θηβαίων (νομού Βοιωτίας) και ειδικότερα στα οικοδομικά τετράγωνα 460, 477 και 477Α, με τον καθορισμό κοινοχρήστου χώρου, τη μετατροπή τμήματος του κοινοχρήστου χώρου σε οικοδομήσιμο την κατάργηση πεζοδρόμου και την έγκριση νέων πεζοδρόμων, τη δημιουργία νέων οικοδομικών τετραγώνων, όπως οι ρυθμίσεις αυτές φαίνονται στα 2 σχετικά πρωτότυπα διαγράμματα σε κλίμακα 1:500 που θεωρήθηκαν από τον Προϊστάμενο της Διεύθυνσης Τοπογραφικών Εφαρμογών με την υπ' αριθμόν 11037/2000 πράξη του και που αντίτυπά τους σε φωτοσμίκρυνση δημοσιεύονται με το παρόν διάταγμα.

 

pd.31.5.01



Copyright © 2020 TechnoLogismiki. Με την επιφύλαξη παντός δικαιώματος.