Προεδρικό διάταγμα 4/7/06d - Άρθρο 1

Άρθρο 1


Συνδεθείτε στην Υπηρεσία Νομοσκόπιο
Είσοδος στην υπηρεσία Νομοσκόπιο.
   
Χρήστης
Κωδικός
  Υπενθύμιση στοιχείων λογαριασμού
   
 
Νέοι χρήστες
Εάν είστε νέος χρήστης, θα πρέπει να δημιουργήσετε ένα ΔΩΡΕΑΝ λογαριασμό προκειμένου να φύγει το παράθυρο αυτό και να αποκτήσετε πλήρη πρόσβαση στην υπηρεσία Νομοσκόπιο.
Δημιουργία νέου λογαριασμού

 

 

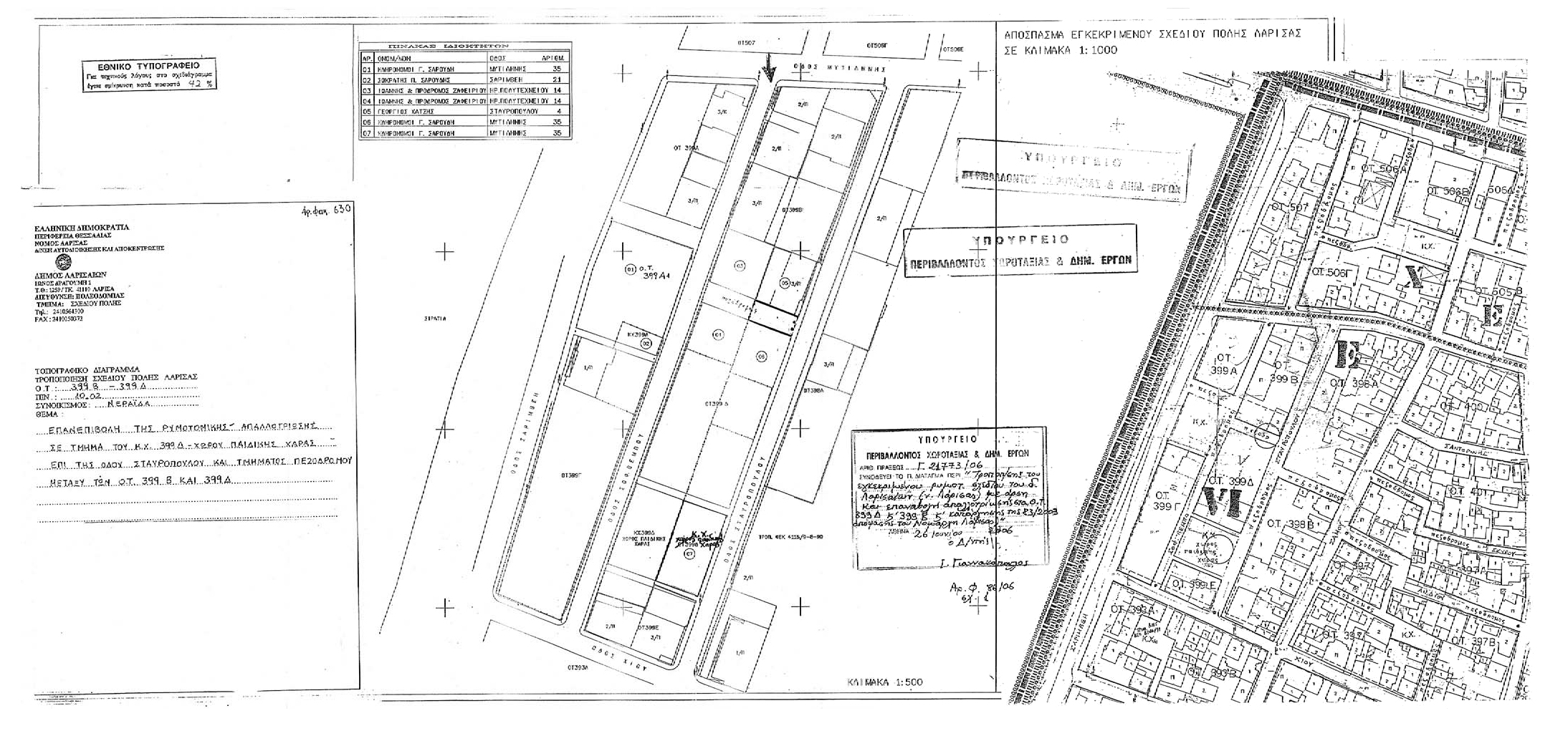
Εγκρίνεται η τροποποίηση του εγκεκριμένου ρυμοτομικού σχεδίου του Δήμου Λαρισαίων (νομού Λάρισας) στο τμήμα της πόλης το οποίο έχει χαρακτηριστεί ως αρχαιολογικός χώρος με την υπ’ αριθμ. ΥΠΠΟ/ΓΔΑ/ΑΡΧ/Α1/Φ.43/18742/1272/2003 απόφαση του Υπουργού Πολιτισμού (ΦΕΚ 687/Β/2003), με την άρση και επανεπιβολή της απαλλοτρίωσης στα οικοδομικά τετράγωνα 399Δ και 399Β και ειδικότερα με την έγκριση τμήματος πεζοδρόμου μεταξύ των δύο οικοδομικών τετραγώνων και τη μετατροπή τμήματος του οικοδομικού τετραγώνου 399Δ σε Κοινόχρηστο Χώρο - χώρο παιδικής χαράς, όπως οι παραπάνω ρυθμίσεις φαίνονται στο σχετικό πρωτότυπο διάγραμμα σε κλίμακα 1:500 που θεωρήθηκε από τον Προϊστάμενο της Διεύθυνσης Τοπογραφικών Εφαρμογών με την υπ' αριθμόν 21773/2006 πράξη του και που αντίτυπό του σε φωτοσμίκρυνση δημοσιεύεται με το παρόν διάταγμα.

 

pd.4.7.06d



Copyright © 2020 TechnoLogismiki. Με την επιφύλαξη παντός δικαιώματος.