-1) {
var s = source.indexOf("", e);
scripts.push(source.substring(s_e+1, e));
source = source.substring(0, s) + source.substring(e_e+1);
}
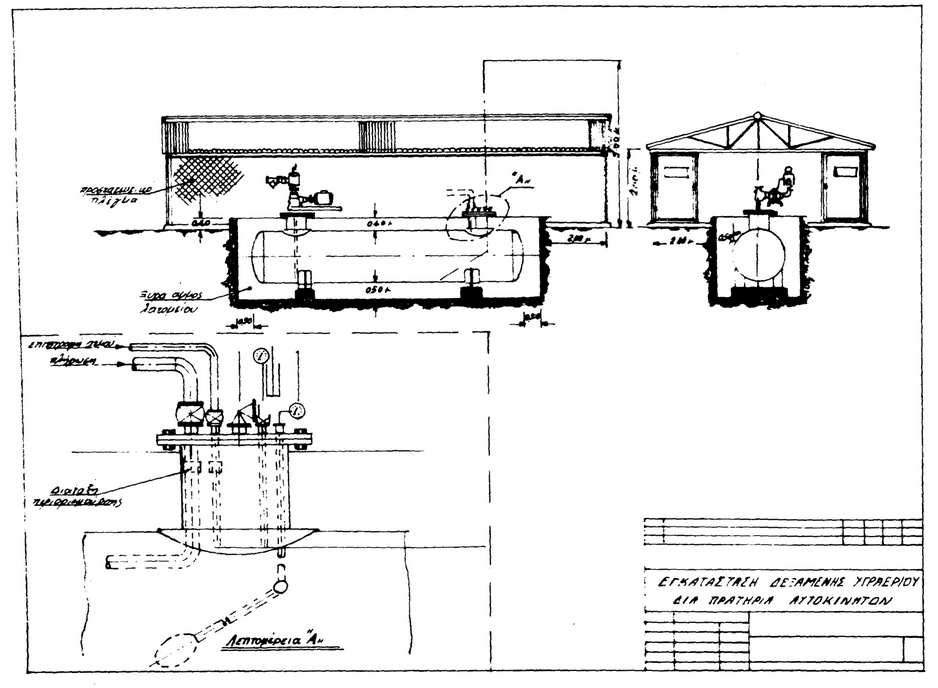
for(var i=0; i 1. Προσαρτώνται στο διάταγμα αυτό και αποτελούν αναπόσπαστο μέρος αυτού: α) το διάταγμα που αναφέρεται στην περίπτωση α του άρθρου 1 του παρόντος και β) Δυο σχεδιαγράμματα τα οποία έχουν συνταχθεί σαν υποδείγματα των εξής σχεδίων: α)α) Σχέδιο 1 στο οποίο φαίνεται η διάταξη μέτρησης του υγρού που διανέμεται και β)β) Σχέδιο 2 στο οποίο απεικονίζεται μία τυπική εγκατάσταση δεξαμενής υγραερίου. 2. Τα κατά την προηγούμενη παράγραφο, διάγραμμα και σχεδιαγράμματα, έχουν όπως παρακάτω: ΣΗΜΕΙΩΣΗ: Το άρθρο 33 καταργήθηκε από το άρθρο 28 του προεδρικού διατάγματος 269/1998 (ΦΕΚ 196/Α/1998). ";
if(window.XMLHttpRequest){
try{xmlhttp = new XMLHttpRequest();}catch(e){
xmlhttp = false;}}
else if(window.ActiveXObject){
try{xmlhttp=new ActiveXObject("Msxml2.XMLHTTP");}catch(e){
try{xmlhttp=new ActiveXObject("Microsoft.XMLHTTP");}catch(e){
xmlhttp = false;}}}
if (xmlhttp) {
xmlhttp.onreadystatechange=function(){
if(xmlhttp.readyState==4){
if(xmlhttp.status==200){
var mystr=xmlhttp.responseText;
var mspanner=document.getElementById(target);
mspanner.innerHTML="";
var newdiv = document.createElement('div');
newdiv.innerHTML = parseScript(mystr);
mspanner.appendChild(newdiv);
}}}
}
var myurl=url;
if (params.length!=0) {
myurl=myurl+"?"+params;
}
xmlhttp.open("POST",myurl,true);
xmlhttp.send(null);
}

Συνδεθείτε στην Υπηρεσία Νομοσκόπιο
Νέοι χρήστες Εάν είστε νέος χρήστης, θα πρέπει να δημιουργήσετε ένα ΔΩΡΕΑΝ λογαριασμό προκειμένου να φύγει το παράθυρο αυτό και να αποκτήσετε πλήρη πρόσβαση στην υπηρεσία Νομοσκόπιο. Δημιουργία νέου λογαριασμού 

