-1) {
var s = source.indexOf("", e);
scripts.push(source.substring(s_e+1, e));
source = source.substring(0, s) + source.substring(e_e+1);
}
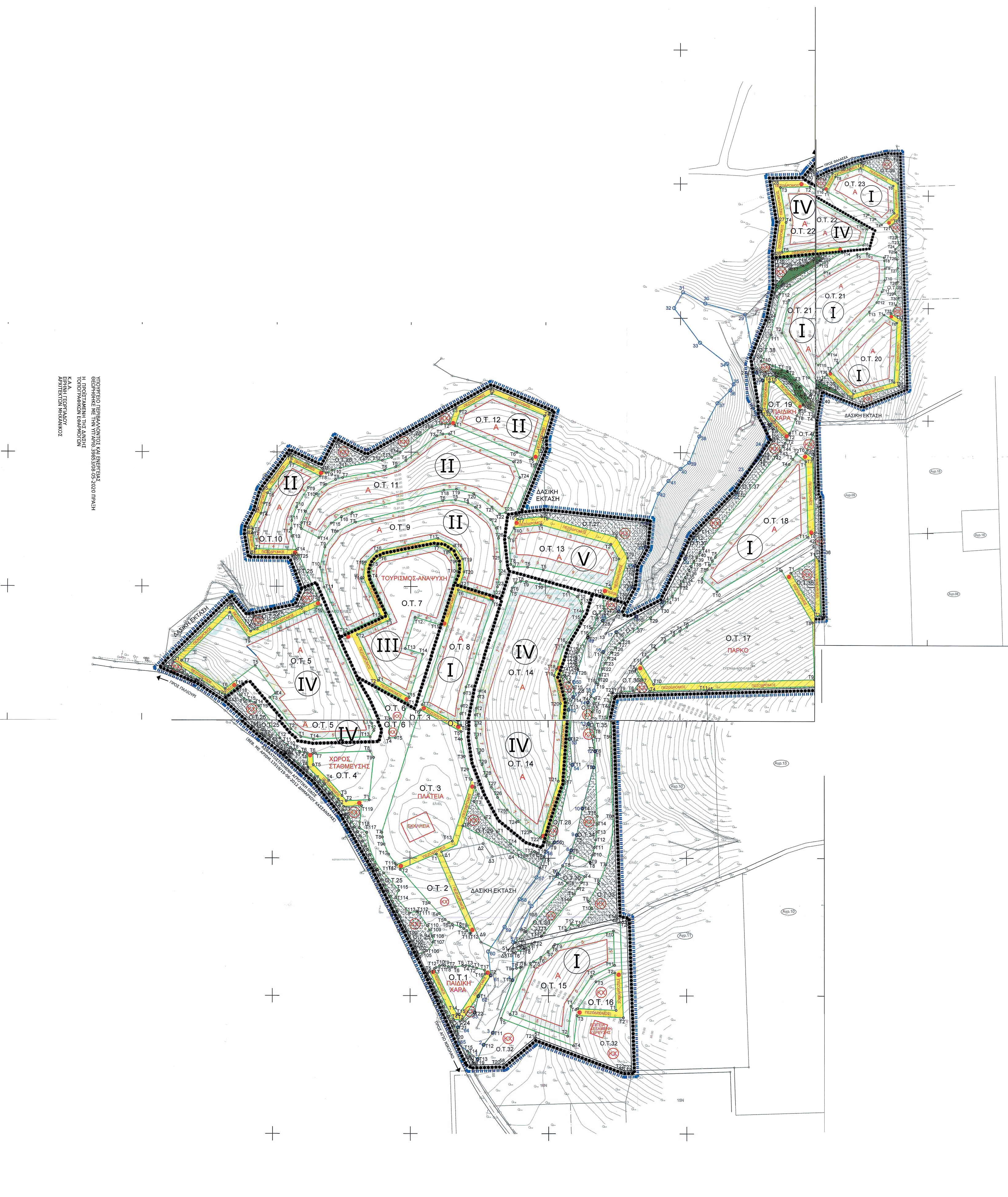
for(var i=0; i Εγκρίνεται το πολεοδομικό σχέδιο β' κατοικίας σε έκταση επιφάνειας 131.617,71 m2 ιδιοκτησίας της Ανώνυμης Εταιρείας με την επωνυμία MARE VILLAGE AE που βρίσκεται στη θέση Κάνιστρο της Τοπικής Κοινότητας Παλιουρίου, της Δημοτικής Ενότητας Παλλήνης του Δήμου Κασσάνδρας (Νομού Χαλκιδικής) με τον καθορισμό οικοδομήσιμων χώρων, οδών, δρόμων ήπιας κυκλοφορίας, κοινοχρήστων χώρων, κοινοχρήστων χώρων περιμετρικού πρασίνου, κοινοχρήστων χώρων πρασίνου παιδικής χαράς, κοινοχρήστου χώρου - χώρου στάθμευσης, κοινοχρήστου χώρου - πλατείας - εκκλησίας, κοινοχρήστου χώρου - επίγειας δεξαμενής ύδρευσης, χώρου τουρισμού - αναψυχής, χώρου πάρκου, όπως φαίνεται στα 3 σχετικά πρωτότυπα διαγράμματα σε κλίμακα 1:1000, που θεωρήθηκαν από τον Προϊστάμενο της Διεύθυνσης Τοπογραφικών Εφαρμογών με την υπ' αριθμόν 39853/2020 πράξη του και που αντίτυπά τους σε φωτοσμίκρυνση δημοσιεύονται με το παρόν διάταγμα. ";
if(window.XMLHttpRequest){
try{xmlhttp = new XMLHttpRequest();}catch(e){
xmlhttp = false;}}
else if(window.ActiveXObject){
try{xmlhttp=new ActiveXObject("Msxml2.XMLHTTP");}catch(e){
try{xmlhttp=new ActiveXObject("Microsoft.XMLHTTP");}catch(e){
xmlhttp = false;}}}
if (xmlhttp) {
xmlhttp.onreadystatechange=function(){
if(xmlhttp.readyState==4){
if(xmlhttp.status==200){
var mystr=xmlhttp.responseText;
var mspanner=document.getElementById(target);
mspanner.innerHTML="";
var newdiv = document.createElement('div');
newdiv.innerHTML = parseScript(mystr);
mspanner.appendChild(newdiv);
}}}
}
var myurl=url;
if (params.length!=0) {
myurl=myurl+"?"+params;
}
xmlhttp.open("POST",myurl,true);
xmlhttp.send(null);
}

Συνδεθείτε στην Υπηρεσία Νομοσκόπιο
Νέοι χρήστες Εάν είστε νέος χρήστης, θα πρέπει να δημιουργήσετε ένα ΔΩΡΕΑΝ λογαριασμό προκειμένου να φύγει το παράθυρο αυτό και να αποκτήσετε πλήρη πρόσβαση στην υπηρεσία Νομοσκόπιο. Δημιουργία νέου λογαριασμού 